Откатные ворота из профлиста
Сдвижные разновидности имеют большую функциональность, ведь им для раскрытия не требуется много места. Этот вариант идеально подойдет для небольших дворов или тесных проездов.
Раздвижные ворота из профлиста, сделанные непосредственно своими руками, потребуются тем, кто часто выезжает за пределы своего участка. Их главное преимущество – отсутствие верхних направляющих, что дает возможность проезжать и очень высоким машинам. Причем в зимний период их владельцу не понадобится очищать большое пространство для того, чтобы распахнуть створки.
Откатные ворота с калиткой (или без нее) обычно снабжают электрическим приводом, поскольку вручную одну большую створку отодвигать не слишком удобно.
Есть, впрочем, у данной системы и ряд недостатков:
- в фундамент необходимо закладывать арматуру;
- придется купить немало дополнительных и довольно дорогих комплектующих;
- изготовление и в равной степени установка откатных ворот повлечет большие траты.
Распашные ворота из профлиста – сооружаем своими руками
В первую очередь необходимо подготовить:
- чертежи;
- план-схему с привязкой к местности;
- инструменты;
- материалы.
Делая расчет, помните, чем уже подъезд к дому, тем шире следует делать проем. Вообще же работая над эскизом, учитывайте, какой именно тип транспорта будет въезжать во двор.
Наиболее оптимальные габариты выглядят так:
- длина обеих створок не больше 4-х метров;
- высота до 2-х.
Для того чтобы изготовить ворота по этим размерам самостоятельно, запаситесь следующим:
- два подходящих по размеру куска профильной трубы с учетом погружения в фундамент (сечение минимум – 100×100 мм, толщина стенки – не меньше 4 мм);
- материал на внешний каркас ворот (также квадратная труба 40 на 25 мм);
- уголок для распорок 20 на 20 мм;
- собственно профнастил;
- саморезы к нему;
- бетонный раствор;
- антикоррозийная грунтовка и краска;
- ножницы для металла;
- электросварка;
- шуруповерт;
- болгарка;
- лобзик;
- дрель;
- ватерпас;
- рулетка;
- штыковая и совковая лопаты.
Если вы намерены делать ворота с элементами ковки, приобретите также и их (готовые продаются в строительных магазинах).
Петли привариваем сразу к столбам для ворот, если они уже установлены вместе с оградой. В противном случае работы по монтажу опор следует провести в таком порядке:
- квадратные трубы грунтуют и красят в два слоя;
- по краям ворот роют ямы под фундамент (не менее 1 мера глубиной);
- на дно насыпать слой щебня с песком;
- опоры установить вертикально и закрепить арматурою непосредственно в ямке и сверху;
- залить бетон;
- оставить его до первичного схватывания (15 суток).
В этом случае петли приваривают лишь после застывания раствора.
Каркас самих ворот собирают на ровной площадке. Порядок действий следующий:
- квадратную трубку разделывают по размерам;
- ее торцы болгаркой обрезают под 45 градусов;
- раму собирают и прихватывают сваркой;
- измеряя диагонали, проверяют правильность углов;
- дефекты устраняют и затем производят окончательную сварку;
- внутри каркаса по углам устанавливают косые распорки;
- затем фиксируют 2 поперечины для дополнительной жесткости;
- швы шлифуют болгаркой;
- раму окрашивают.
Обшивка делается только после полного высыхания декоративного слоя. Как вариант – монтируют листы металла уже после установки створок на петли. Саморезы в профнастил закручиваются только в местах его прилегания к основе. На метр квадратный достаточно 6 точек фиксации.
Как видим, делать распашные ворота непосредственно из профнастила не так уж и сложно.
Изготовление ворот из пиломатериала
Для формирования каркаса потребуются доски толщиною 40 или 50 мм и шириною 150 мм. Лучше, если они будут сосновые. Их так же, как и в случае с профильной трубой, подрезают под ширину и высоту воротного проема.
Также на ровной плоскости, или на выставленных в одной горизонтальной плоскости кирпичах или блоках их собирают в каркас. Единственное отличие – соединение и крепление. Для этого концы стыкуемых элементов придется подготовить. То есть создать соединение – в пол доски. На фото ниже этот способ показан
Здесь очень важно точно выдержать размеры запилов. Для увеличения прочности крепления можно использовать металлические уголки, которые устанавливаются по углам каркасной конструкции

Соединение в пол доски
После чего все элементы собираются в прямоугольную конструкцию и соединяются между собой саморезами. Вместо последних можно использовать болты, под которые придется высверлить отверстия.
Далее для придания жесткости собранных створок устанавливаются промежуточные элементы. Вариантов в плане конфигурации расположения этих элементов здесь также немало. Добавим, что в их качестве можно использовать доски толщиною 25-30 мм. Если обшивка деревянных ворот – доски, то промежуточный элемент может быть один, установленный по диагонали полотна. Жесткость создастся за счет самой обшивки.
Что касается последней, то чаще всего доски устанавливаются по вертикали. Их верхние торцы можно сделать прямыми, скругленными или придать любую другую формы для повышения декоративности деревянных ворот. Крепление – саморезы или болты.
Видео описание
В видео показано, как сделать ворота из дерева своими руками:
Монтаж деревянных ворот
Здесь та же технология, что и с воротами из профилированной трубы. Только вместо труб для опор используются брусы или бревна, подземная часть которых хорошо гидроизолируется. Для этого можно использовать битумную мастику, нанесенную в несколько слоев, рубероид, сложенный в два или три слоя, или использовать комбинированный вариант из этих двух материалов.
О том, как правильно установить столбы для ворот своими руками, уже было рассказано выше. Напомним: столбы выставляются по вертикали и бетонируются в подготовленных углублениях. То есть, все то же самое.
А вот что касается крепления створок к стойкам, то здесь применяются специальные петли для деревянных ворот. Они представлены в большом ассортименте в строительных магазинах, многие умельцы изготавливают их своими руками. Так что последние можно приобрести на строительном рынке, они дешевле, а по прочности не уступят заводским.

Петли для деревянных ворот
Петли крепятся сначала к воротным полотнам, затем последние устанавливают к опорам, выравнивают и через петли крепят к ним саморезами. После чего деревянное изделие полностью покрывается антисептическим составом, которое предотвратит быстрое гниение древесины, увеличив срок эксплуатации воротных конструкций. Как только нанесенный материал просохнет, ворота можно красить или лакировать.
На этом можно считать, что тема – как сделать ворота на даче своими руками – закрыта.
Видео описание
В видео показано несколько вариантов красивых деревянных домов:
Дополнительные операции
На этом сам процесс изготовления ворот не заканчивается. Есть еще несколько элементов, которые необходимо установить. Это замок, щеколда и ручка для открывания. С металлическими воротами придется опять использовать электросварку. А вот на деревянные эти элементы можно «посадить» на саморезы или болты.
Видео описание
В видео показаны задвижки, замки и стопоры, установленные на распашных воротах:
Итак, мы с вами разобрались в теме – как сделать ворота самостоятельно. Нельзя сказать, что этот процесс прост. В нем очень много нюансов, от которых зависит качество конечного результата. Поэтому стоит задуматься над тем, а смогу ли я сделать дачные ворота такими, о которых мечтаю. Может быть, перевалить груз ответственности на плечи мастеров.
Достоинства и недостатки профилированных труб
Среди главных преимуществ профильных изделий, используемых в производстве ворот, эксперты выделяют:
- невысокую цену;
- высокую прочность при легком весе;
- возможность самостоятельного монтажа (металлопрофиль легко режется, сваривается и соединяется самонарезающими шурупами).
На участке
К недостаткам профильных изделий относят:
- подверженность ржавлению при взаимодействии с атмосферными осадками, обусловливающими образование коррозии;
- неудобство в грунтовании и окрашивании поверхности трубопроката, что влечет за собой увеличение временных затрат на установку труб.
Фигурный металлоштакетник
Изготовление калитки своими руками: этапы работ, фото
Пока фундамент набирает необходимую прочность, можно приступить к сборке калитки.
Сварка рамы
Для изготовления рамы своими руками необходимо подготовить:
- профильную трубу 60х30 или40х40;
- профнастил для поперечин;
- сварочный аппарат;
- состав, защищающий металл от коррозии;
- краску;
- инструмент для резки металла.
Согласно подготовленной заранее схеме из трубы нарезаются заготовки, края которых нужно сделать под углом в 45 градусов. Предварительно профильную трубу следует очистить от ржавчины металлической щеткой.
Чтобы придать конструкции большую жесткость и облегчить установку замка, между большими сторонами рамы, по ее высоте вставляются две поперечины.
Чтобы углы рамы получились прямыми, ее заготовки рекомендуется закрепить в самодельном кондукторе, который можно сделать своими руками:
- Из листа толстой фанеры вырезается полотно, размеры которого на 50 мм должны превышать размеры будущей калитки.
- Прижимать элементы рамы к полотну будут струбцины, которых должно быть в два раза больше, чем сварных швов.
Замерив диагонали рамы и проверив все углы, между ее нижней и верхней перемычками устанавливаются сначала поперечины, а затем струбцины. Необходимо проследить, чтобы струбцины были расположены на небольшом расстоянии от места сварки.
Еще раз тщательно проверив параллельность сторон, можно приступать к сварке. Струбцины нужно будет убрать только после того, как остынут все швы.
Сваренный каркас обрабатывается антикоррозийным составом и к нему сплошным швом привариваются петли. После того как рама будет покрашена, ее изготовление можно считать законченным.
Монтаж калитки из металлопрофиля

С помощью электросварки петли крепятся на намеченные места опорных столбов и после проверки на открывание и закрывание обвариваются сплошным швом. Правильно установленная рама самопроизвольно открываться и закрываться не будет.
Далее по измеренным меркам вырезается металлопрофиль и крепится к раме при помощи саморезов. В готовую конструкцию врезается замок.
Установка замка на калитку и ворота из металлопрофиля
Выбирать замок следует исходя из того, в какую сторону открывается калитка или ворота. Если она будет открываться наружу, то приобрести необходимо врезной замок. Если полотно будет открываться внутрь, то замок может быть и накладным, и врезным.
Установка ручки и замка производится на высоте примерно в 90 см.
- Вдоль длинных, отмеченных на полотне сторон замка с помощью болгарки делаются прорези.
- По размеченной полосе коротких сторон дрелью высверливаются отверстия, которые должны быть расположены как можно ближе друг к другу.
- С помощью напильника отверстие доводится до нужной формы.
- Борфрезом по металлу для сердечника выпиливаются круглые отверстия.
- Высверливаются отверстия для монтажных винтов, и замок устанавливается на калитку или ворота.
Теперь в опорный столб необходимо врезать вторую часть замка. Для этого замок закрывается и отмечается место, куда будет заходить запорный элемент.
Если в замке отсутствует приемный блок, то в опоре просто высверливается отверстие, которое до нужной формы доводится напильником. Для замка с приемным блоком дополнительно нужно будет сверлить отверстия для крепежей.
Какими могут быть ворота из профнастила для дачи?
Выполнять заборы для дачи из профнастила своими руками намного выгодней, чем заказывать работу специализированной бригады. Эта задача вполне осуществима благодаря простоте обращения с самим материалом, а качество такого произведения практически лидирует среди всех возможных и доступных бюджетных вариантов. Если с конструкцией забора обычно принципиально различных способов строительства немного, то для ворот есть выбор.
Ворота можно сделать распашные, что является самым простым в реализации, раздвижные или откатные. Первый вариант доступен при наличии места для створок на участке (если открывать внутрь) или на дороге (при открытии наружу). Если у вас небольшие размеры створок, то это место найдется в любом случае, а реализовать такую задумку просто, потому что требуется только установить пару стоек, на них навесить каркас, обитый профлистом.
Откатные и раздвижные конструкции применимы там, где пространства для распахнутых створок нет. Но строительство таких ворот осложняется необходимостью установки сложных механизмов и некоторыми требованиями к участку. Например, по траектории отката створки остальное ограждение (забор) должно быть исключительно ровным, без каких-либо углов и выступов, а также довольно длинным, если у вас откатываются все ворота сразу в одну сторону (т.е. одна сплошная створка).
Фото забора для дачи из профнастила своими руками, sovetmaster.com
Фото ворот из профнастила своими руками, sovetmaster.com
Фото ворот из профлиста с элементами ковки, sovetmaster.com
Фото ворот и калитки из профнастила своими руками, sovetmaster.com
Фото забора из профнастила, sovetmaster.com
Изготовление распашных ворот

Изготовление распашных ворот
Для работы потребуются:
-
профлисты С8 или С10;
- стальные уголки 50х50 мм;
- трубы диаметром 80 мм;
- рулетка;
- оцинкованные саморезы;
- болгарка и сварочный аппарат;
- наждачная бумага;
-
антикоррозийный состав;
- петли;
-
ручной бур;
- щебень;
- цемент и песок.
Шаг 1. Изготовление рамы

Схема каркаса распашных ворот
Сначала составляют чертеж: рисуют раму ворот, продумывают расположение распорок, ширину и количество створок ворот, другие параметры. Стандартная рама представляет собой прямоугольник с 2-3 поперечными или диагональными распорками. Ширина одной створки варьируется от 1 до 2 м, высота ворот равняется 1,5-1,7 м. Эти параметры могут изменяться в зависимости от ширины проема, высоты забора и вида ворот. Для изготовления рамы необходима ровная площадка минимум 2х2 м. Из труб толщиной от 2 мм и диаметром 40 мм варят прямоугольный каркас.

Варианты распашных ворот
Из труб меньшего диаметра делают 2 или 3 укрепляющие перемычки. Они могут располагаться вертикально, горизонтально или по диагонали рамы. Если ворота одностворчатые, количество перемычек увеличивается. По углам рамы и в местах крепления распорок можно приварить отрезки металлических прутьев, чтобы придать конструкции дополнительную жесткость. Часто в целях упрочнения каркаса по внутреннему периметру рамы приваривают металлические уголки.

Изготовление рамы
Последними приваривают петли, после чего места сварки зачищают болгаркой, раму ошкуривают наждачной бумагой и грунтуют. Завершающий этап – окрашивание. Обшивать створки можно сразу или на завершающем этапе, когда каркас ворот будет установлен в проеме. Второй вариант более удобный, поскольку облегчает процесс монтажа.
Шаг 2. Установка столбов
Установка столбов
Участок под ворота расчищают и выравнивают, размечают положение опорных столбов. Столбы необходимо вкопать на треть их длины, при этом следует учитывать, что надземная часть опор должна быть примерно на полметра выше, чем полотно ворот. Диаметр ям не нужно делать слишком большим, достаточно 20 см. Подготавливают стойки: железные трубы диаметром 80 мм очищают от ржавчины, обрабатывают антикоррозийным составом, нижнюю часть обмазывают битумной смесью.

Установка столбов
На дно насыпают слой песка и щебня, опускают трубы и выставляют их по высоте и по вертикали. Чтобы они не сдвинулись во время бетонирования, по бокам устанавливают распорки из брусков или кирпич. Еще раз проверяют расположение стоек уровнем, затем забивают ямы щебнем на треть высоты и заливают до верха бетонным раствором. Распорки убирают через несколько часов, когда бетон немного упрочнится. Верх трубы обязательно закрывают заглушкой.

Установка столбов
Чтобы выложить кирпичные столбы, копают ямы квадратной формы, заполняют их битым кирпичом, камнем и крупным щебнем, посередине вставляют стальную трубу небольшого диаметра или арматурные пруты. Они должны возвышаться над грунтом на 30-40 см. Заливают яму бетоном, а когда он высохнет, застилают основание куском рубероида.

Столбы
К выступающей трубе приваривают еще одну на высоту столба и вокруг нее начинают выкладывать кирпич. На высоте 20 см от основания между кирпичами вмуровывают металлическую закладную со стороны проема, затем точно такую же крепят в верхней части столба. К этим закладным будут привариваться стойки ворот.
Шаг 3. Крепление и обшивка рамы
Возле каждого столба кладут толстые бруски или кирпичи, опирают на них раму и выставляют по уровню. По петлям на раме определяют места крепления петель на столбах и приваривают их. Убирают подпорки и проверяют движение створок. Если конструкция движется легко, не скрипит, ничего не цепляет, можно приступать к обшивке. Для этого снимают раму, укладывают ее на ровную поверхность и подрезают профлисты по размеру ворот. Укладывают лист от угла, вкручивая саморезы в углубление волны.

Распашные ворота
Закончив с полотном, прикручивают ручки, вставляют замок, крепят декоративные элементы. Готовые ворота снова навешивают на столбы и проверяют легкость хода. Чтобы укрепить конструкцию и защитить ее от ветровой нагрузки, несущие столбы рекомендуется соединить вверху металлическим профилем или балкой. На этом установка ворот считается завершенной.
Процесс установки распашных ворот
Прежде чем сделать крепкие ворота из профнастила своими руками, следует подготовить чертеж с указанием точных размеров. При этом необходимо учесть вид автотранспорта, который будет проезжать через возведенную конструкцию, а также наличие калитки.


Кроме тщательного составления чертежа, потребуется заранее закупить и обработать материал для работы, а также приготовить необходимые инструменты:
- профильные трубы разного сечения;
- металлические уголки;
- профиллированные листы;
- саморезы, болты, заклепки;
- цемент;
- грунтовка и краска по металлу;
- электроинструменты;
- сварочный аппарат.
Перед началом работ профильные трубы следует осмотреть на наличие дефектов, зачистить коррозийные места наждачной бумагой и нарезать на части, в соответствии с размерами, указанными в чертеже конструкции.









Установка опоры
В случае, если ворота из профнастила требуется установить на забор с готовыми металлическими столбами, то каркас ограждения можно зафиксировать прямо на них. Чтобы это проделать, к существующим опорам привариваются петли, и собранная стальная конструкция вешается на них.
Если же каркас приходится возводить с самого начала, процесс установки столбов выглядит другим образом:
- Измеряется требуемое расстояние и ставится разметка с учетом расчетов в чертеже.
- Роются 2 округлые ямки под фундамент, ширина которых составляет около полуметра, а глубина – не менее одного метра.
- Дно ямок засыпается песком или мелким щебнем и тщательно утрамбовывается.
- В подготовленные лунки ставятся опорные столбы строго в вертикальном положении, добиться которого можно при помощи строительного уровня. Их можно временно зафиксировать кусками арматуры, чтобы они не отклонялись в стороны.
- Столбы заливаются бетонным раствором.
Для полного затвердевания смеси необходимо выждать несколько недель, после чего приступать к дальнейшему выполнению установочных работ.
Изготовление рамы





Раму для конструкции изготавливают на ровной поверхности, вооружившись сварочным аппаратом для соединения заранее нарезанных заготовок из профильных труб.
Для надежной фиксации частей на внутреннюю стыковку каркаса приваривают металлические уголки, а также дополнительно две поперечные перекладины. Затем следует закрепить на рамную конструкцию навесы и засовы.
После того как рама готова, необходимо тщательно отшлифовать сварочные швы, весь каркас обезжирить с помощью растворителя, загрунтовать и покрыть краской.
Установка обшивки

Дождавшись полного высыхания краски на раме, можно приступать к фиксации на нее обшивки из заранее нарезанных листов профнастила. Они крепятся к каркасу конструкции при помощи саморезов или специальных заклепок. При этом, лучше их устанавливать в местах углубления материала, таким образом, они будут менее заметными.
После того, как обшивка из профиля своими руками установлена на раму, конструкция вешается на петли и производятся завершающие этапы работы, такие как монтаж замков на ворота и крепление украшающих элементов.
Конструкция ворот
Распашные ворота из профилированного листа представляют собой металлическую раму из профиля, уголка или труб, обшитую профнастилом и закрепленную на двух прочных стойках. Конструкция большой ширины чаще всего имеет две створки, маленькие ворота состоят из одного полотна. Во многих моделях есть встроенные калитки, что экономит место и материалы. В качестве опорных стоек могут выступать кирпичные столбы, столбы из блоков, монолитные бетонные опоры, асбестоцементные и металлические трубы.

Ворота из профлиста и профиля
Для обшивки створок больше всего подходит профилированный лист марки С8 и С10 толщиной от 0,4 до 0,8 мм. Рекомендуется выбирать листы с полимерным защитным покрытием, поскольку обычные оцинкованные не так долговечны. К тому же полимерное покрытие имеет множество вариантов расцветки и текстуры. Для декора ворот можно использовать кованые и сварные узорчатые решетки, которые приваривают по верхнему или нижнему краю рамы.

Ворота из профлиста
Помимо распашной конструкции из профнастила делают откатные ворота. Собрать и установить их самостоятельно тоже несложно, хотя этот процесс займет больше времени. Распашные ворота считаются наиболее простым и дешевым вариантом, для устройства откатных необходима специальная фурнитура и направляющая балка, что существенно повышает затраты на материалы.
Типы конструкций
Все типы данных ворот состоят из двух или одной створок, которые при помощи петель крепятся к раме. В зависимости от типа створок, различают следующие виды конструкций:
каркасные с сеткой – такой тип ворот хорошо подойдет там, где нужно оградить территорию с растениями, или просто не допустить постоянного затенения. При этом сетка стоит достаточно дешево, легко монтируется, не нуждается в постоянном уходе и может похвастаться еще рядом преимуществ;

Кованые ворота и калитка смотрятся элегантно и роскошно
- с профнастилом – фото ворот из профнастила с ковкой или другими элементами показывают, что такая конструкция привлекательно выглядит и надежно защищает территорию. Сам профнастил отличается большой долговечностью и надежностью, а также широким ассортиментом цветовых решений. Неудивительно, что именно такой тип конструкций в последнее время пользуется все большей популярностью;
- со сварным решетчатым каркасом – такой тип конструкции отличается стильным видом и используется, чаще всего, именно в декоративных целях. Но не стоит недооценивать прочность подобного каркаса, он отлично переносит механические повреждения;

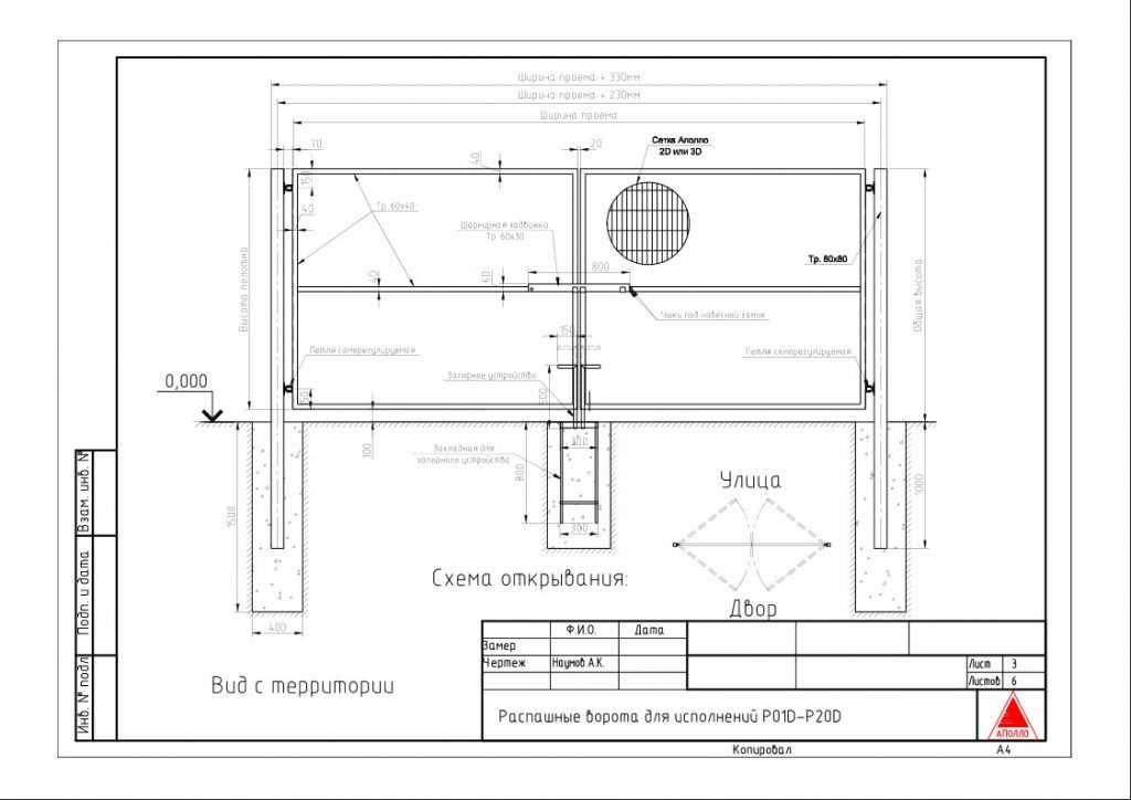
Монтажные размеры распашных ворот и калитки из сварной сетки
с утеплением – чаще всего устанавливаются в гаражах для защиты автомобиля от сильных морозов. В качестве утеплителя можно использовать полипропиленовые плиты или обычные деревянные доски. Металлическая оболочка в таком случае может быть двойной или одинарной.

Двустворчатые распашные ворота – наиболее распространенный вариант подобных конструкций
По количеству створок можно провести следующую классификацию:
- одностворчатые – характеризуются большим весом и нуждаются в устройстве усиленного опорного столба. Такой тип конструкции не слишком популярен, так как далеко не каждые петли выдерживают вес сплошного металлического полотна, да и монтировать его сложно. Из преимуществ можно выделить большую прочность, а из недостатков – необходимость в укрепленном фундаменте и держателях, а также потребность в большом количестве свободного пространства для открывания и закрывания ворот;
- двустворчатые – самый распространенный вариант. Монтаж распашных металлических ворот с калиткой из профнастила отлично подойдет для гаража, складского или производственного помещения. Основные достоинства – это простота конструкции и легкость в эксплуатации и обслуживании;

Металлические распашные ворота со встроенной в створку калиткой
двустворчатые с калиткой – самый удобный и часто используемый вариант. Калитка позволяет свободно пропускать на территорию людей без необходимости открывать основные створки.

















































