Санитарные нормы
Перед началом строительства дачного туалета, нужно убедиться, что будущая постройка будет соответствовать определенным санитарным нормам и правилам гигиены.
- Удаленность клозета от колодца или скважины должна составлять не менее 30 м во избежание загрязнения воды. Кроме того, если местность неровная, туалет должен стоять уровнем ниже источников питьевой воды.
- Если на участке есть постройки, предназначенные для мытья (баня, душ), расстояние до них должно быть не менее 8 м.
- Если на территории есть помещение для содержания животных, его удаленность должна составлять не менее 4 м.


- Также стоит позаботиться о культурных растениях. Минимальная удаленность от деревьев – 4 м, от кустарников – не менее 1 м.
- Туалет не должен источать какие-либо неприятные запахи. Определяя место для будущей постройки, должна учитываться роза ветров.
- Выгребная яма, если она имеется, должна быть хорошо изолирована, чтобы не допустить смешивания нечистот с грунтовой водой. Лучший вариант – предусмотреть в качестве ее дна специальную емкость.
- Удаленность ямы от жилых построек должна составлять максимально возможное значение, минимально – 5 м.


- Удаленность туалета от соседских участков должна быть не менее 1 м.
- Для туалетного домика необходимо продумать, как провести освещение. Вся проводка должна быть тщательно обработана специальной смесью, отталкивающей воду.
- Очистка ямы должна проводится сразу по мере необходимости. Для этого можно воспользоваться услугами ассенизаторской машины или применить химическое средство, разлагающее отходы, которое также будет служить профилактикой развития грибка и других вредных микроорганизмов. Если ни тот, ни другой вариант невозможны, яму нужно накрыть металлическими листами для перегнивания нечистот.


О выгребе

Устройство уличного туалета
Подробнее о выгребных ямах, ухищрениях при их постройке и способах обходиться без выгреба вовсе поговорим ниже; вообще же септик локальной канализации – большая отдельная тема.
А пока – см. схему на рис., пригодную для дворового туалета и хозблока
Обратите внимание на отражатель 1, для туалета он совершенно необходим, т.к. направляет сброшенные фекалии в переднюю часть ямы
Далее они потихоньку сползают в карман под выкачку, по пути перерабатываясь бактериями. Без отражателя весь биоценоз в яме перепутается, и понадобится примерно вдвое больший ее объем. Серые стоки выводятся в яму без отражателя, но тоже в переднюю часть. Глухая бетонная коробка 4 и глиняный замок 3 на даче также совершенно необходимы для предотвращения инфильтрации в грунт, а назначение ревизионно-прочистной дверцы 2 пояснений не требует.
Какие бывают дачные туалеты без выгребной ямы
Большой ассортимент дачных туалетов затрудняет выбор владельцев. Если вы ещё не знаете, какой вид купить для дачи, предлагаем вместе с нами выяснить все плюсы и минусы каждой модели.
Что это такое: дачный торфяной или сухой туалет
Дачный сухой туалет – это название уличного отхожего места, в котором размещён стульчак с крышкой. Отходы жизнедеятельности собираются в легко извлекаемую ёмкость. Рядом, в удобном доступе, обычно ставят контейнер с торфом для присыпки нечистот.
Из плюсов дачного торфяного биотуалета можно выделить следующее:
- полное уничтожение запаха;
- предотвращение размножения насекомых;
- многие впоследствии используют отходы, перемешанные с сухим материалом, как удобрение;
- это один из наиболее бюджетных вариантов;
- такую модель можно установить в любом месте участка, поскольку он никак не влияет на подземные воды.
Контейнер нужно очищать не реже двух-трёх раз в неделю. Содержимое можно просто вылить в яму с компостом или бак, в котором содержимое следует ещё раз пересыпать смесью торфа и земли.
Сухой материал в целях экономии и для увеличения объёма можно перемешивать с землейФОТО: commons.m.wikimedia.org
Для удобной выемки ёмкости, в задней стенке туалета обычно делают небольшую дверцу ФОТО: sad24.ru
Какие ещё бывают туалеты для дачи без запаха и откачки
Ещё один неплохой вариант для дачи – химический клозет, состоящий из двух модулей. В верхнем установлено сиденье, ёмкость с водой и устройство для смыва. Нижний оборудован абсолютно герметичным контейнером для отходов, поэтому неприятные запахи полностью исключены.
Когда резервуар будет полностью заполнен, его обязательно нужно очистить. Для этого придётся вылить отходы в специально отведённое место и заново наполнить водой, добавив новую порцию реагентов.
Отметим следующие преимущества биотуалетов:
- компактность;
- простота установки;
- гигиеничность;
- высокая износостойкость.
По отзывам потребителей, существенный недостаток у биотуалета для дачи только один: постоянные траты на реагенты. Стоимость модели напрямую зависит от объёма резервуаров и наличия дополнительных опций, например, индикатора заполнения контейнера, электропомпы для смыва жидкости.
Современные биотуалеты выглядят довольно симпатично ФОТО: biotualeto.ru
Для туалетов лучше выбирать биологические экологически чистые реагенты ФОТО: youla.ru
Не многие дачники знают о существовании электрических туалетов для приусадебного участка. Современные модели состоят из двух независимых контейнеров для приёма твёрдых и жидких отходов жизнедеятельности. Жидкие выводятся в землю или испаряются. Также возможно подключение к канализации. Твёрдые высушиваются до порошкообразного состояния компрессором.
Выделим несколько основных преимуществ электрических моделей:
- главным плюсом моделей является их редкая очистка, опорожнять резервуар нужно не чаще, чем два раза в год;
- ёмкости не требуют применения химических или биологических реагентов.
Из негативных особенностей следует выделить высокую стоимость и необходимость подводки электричества для работы резервуаров. Кроме того, потребуется монтировать вентиляцию для каждого контейнера.
Устройство электрического туалета для дачи ФОТО: greendom74.ru
Остатки твёрдых отходов после высушивания компрессором ФОТО: lewisgray.com
Статья по теме:
5 Будка для туалета – как сделать красивую постройку у себя на даче
Лучше всего выбирать в качестве материала для строительства туалетной будки именно дерево. Среди основных положительных качеств данного материала можно выделить экологичность, легкость в обработке, противостояние размножению грибков и плесени, способность сохранять тепло, а также устойчивость к перепадам температур. Обычно домик выполняется с использованием четырех основных типов пиломатериалов:
- 1. Каркасный брус.
- 2. Шпунтованные доски для стульчака и напольного покрытия.
- 3. Обрезная доска для выполнения наружной обшивки.
- 4. Рейки или необрезные доски для работы с крышей.
Отлично проявили себя такие разновидности древесины, как водонепроницаемая фанера, а также ориентированно-стружечная плита. К слову, ОСП идеально подходит для создания реек, которые можно использовать в качестве каркаса или обрешетки.
Чтобы сделать дачный туалет как можно более красивым и привлекательным, многие декорируют эту часть сооружения различными методами. Одним из самых популярных является оформление при помощи криволинейных участков, которые выполняются шлюпочной доской по морскому типу. Однако данная древесина не везде будет выполнять свои функции одинаково хорошо. Так, шлюпочные доски лучше всего использовать на территориях с большим количеством осадков, тогда как для ветреных участков необходимо приобрести шпунтованное дерево.

Туалетная будка в японском стиле — красота!
Какую бы древесину вы не использовали, в обязательном порядке ее необходимо будет обработать специальными антисептиками, задача которых заключается в предотвращении развития гнилостных процессов. Для этих целей обычно используются биоциды, после чего дерево пропитывается водно-полимерными эмульсиями
Важно обрабатывать доски именно в таком порядке, поскольку клей, который будет наноситься в дальнейшем на древесину, не позволит биоцидам равномерно распределиться по поверхности в виде тончайшей пленки. Дополнительно можно нанести горячий битум или обычную битумную мастику на те деревянные конструкции, которые обращены к выгребной яме или соприкасаются с грунтом
Существует несколько основных архитектурных типов, подходящих для туалетной кабинки:
- Домик.
- Шалаш.
- Скворечник.
- Избушка.
Все перечисленные виды особых различий между собой не имеют, поскольку любая из них смотрится очень красиво и стильно. К примеру, кабинка в виде шалаша, в которой стены одновременно являются и крышей. Среди основных положительных свойств данного сооружения можно выделить небольшое количество используемых материалов для строительства, легкость всей конструкции в целом, прочность, долговечность, а также стойкость к сильному ветру и осадкам. Однако и некоторые недостатки присутствуют. В первую очередь следует выделить существенно большая площадь земли, где будет располагаться туалет. Кроме этого необходимо правильно подобрать высоту, в противном случае можно удариться головой о боковую поверхность. Поэтому подобные строения обычно достигают трех метров в высоту.
Самой популярность и востребованной является конструкция под названием «скворечник». Земли требуется очень мало, сам же процесс строительства, о котором мы подробно поговорим чуть ниже, сложностью не отличается. Как и все прочие здания с односкатной крышей, скворечники далеко не лучшим образом держат тепло. Однако эта прочная и крепкая будка отлично подойдет в качестве летнего туалета.
Не меньшей популярностью пользуются клозеты, выполненные в стиле, который называется «домик». Домик даже прочнее скворечников, но если вам требуется минималистичный туалет без излишеств, то свой выбор рекомендуется сделать именно в пользу скворечника. Ведь домики идеально подходят для того, чтобы воплотить в реальность свои дизайнерские мечты.
Последний тип, который нашел применение в строительстве туалетов, называется «избушка». Это крайне сложная конструкция, но среди ее достоинств можно выделить прочность и надежность, а также сопротивление любым капризам природы. Избушку можно украшать как угодно, но даже и без декора данная постройка будет смотреться очень красиво и оригинально на вашем дачном участке. Эргономичность и функциональность находятся на высоте, поскольку хозяева имеют возможность установить различные дополнительные полезные элементы и приспособления, в том числе полки, рукомойник и даже вешалку.
Разновидности
Существует несколько видов туалета для дачи.
С выгребной ямой
Это самый простой и распространенный вид уличного летнего туалета. В земле делается углубление около 1,5–2 м, над которым устанавливается небольшое деревянное сооружение. Отходы накапливаются в этой яме, а со временем, ферментируясь, разлагаются. Если яма наполняется слишком быстро и содержимое не успевает разлагаться, можно прибегнуть к помощи ассенизаторской машины. Деревянный домик может быть выполнен в оригинальном дизайне, чтобы украсить участок, например, он может выглядеть как «Теремок» или «Мельница».
Люфт-клозет
Это одна из разновидностей предыдущего варианта. Строят такой туалет чаще всего примыкающим к дому или к другим отапливаемым сооружениям на участке, например, с хозблоком. Его конструкция включает в себя приемную воронку, сточную трубу, выгребную яму и вентиляцию – люфт-канал для вытягивания воздуха. Чтобы воздух проходил по каналу, его для этого располагают около дымохода. Продвигаясь по сточной трубе, воздух попадает в нагреваемую часть дымохода, а затем наверх к специальному отверстию для вентиляции. Несомненным плюсом является то, что такой туалет – теплый и может использоваться в зимнее время года.


Пудр-клозет
Его конструкция не предусматривает выгребную яму. Углубление под туалетом представлено в виде бочки. Этот вариант подойдет для участков с высоким расположением внутренних вод, где нет возможности вырыть яму. Для нейтрализации запахов используются зола, опилки, торф, ими посыпаются нечистоты по необходимости, «припудриваются». По мере заполнения бочки, ее нужно опорожнить. Перемешав нечистоты с торфом, их впоследствии можно использовать как удобрение.


Торфяной туалет
По своему устройству напоминает пудр-клозет, поскольку предполагает использование торфа для нейтрализации запахов. Конструкция представляет из себя обычный унитаз, наполнителем которого является торф. Вместо труб используется специальная емкость, которая накапливает отходы. Установить такой вариант можно как на территории дома, так и в специально оборудованном домике на участке
Для нейтрализации запахов важно обеспечить постройку вентиляционным отверстием


Биотуалет
Самый простой вид обустройства дачного туалета. Это переносная кабинка, имеющая емкость со специальным средством для перерабатывания отходов.


Туалет с химическим наполнителем
Похож на предыдущий мобильный вариант, но в этом случае для утилизации отходов используется не био-наполнитель, а химическое вещество. Его нельзя впоследствии использовать для удобрения почвы.
Главный фактор, по которому делается выбор из существующих вариантов – глубина прохождения грунтовых вод. Если их уровень проходит на глубине более, чем на 2,5 м, даже когда идут дожди или паводки, установить можно любой из видов. Если уровень вод выше, чем эта отметка, лучше не выбирать варианты с выгребной ямой.


Виды дачных туалетов
Рассмотрим три типа: люфт – пудр клозеты, биотуалеты.
Люфт-клозет
Получил своё название от вентиляционного канала, совмещённого с дымоходом. За счёт его нагрева образуется тяга. Естественно, никаких запахов. Летом для создания тяги в нижний отдел дымохода встраивают простейший нагреватель типа лампы накаливания на 15 – 20 Вт.
Яма периодически откачивается.
Должен иметь одну наружную стену, в ней устраивается форточка.
Рис. 3. 1 – дымоход; 2 – люфт-канал; 3 – утеплённая крышка; 4 – стандартный канализационный люк; 5 – вентиляционная труба; 6 – глиняный замок; 7 – кирпичные стены.
Рис. 4. Внутридомовой люфт-клозет с индивидуальной вентиляцией
Довольно сложная, но безупречная в санитарном отношении конструкция. Расчёт объёма такой: при очистке раз в год 1 куб на человека: при четырёх – 0,25 куба. При любых расчётах глубина не менее 1 метра: уровень содержимого не должен быть менее 50 см от земли.
Яма герметична: по глиняному замку заливается бетонное дно, стены также бетонные или обкладываются кирпичом. Внутренние поверхности изолируют битумом. Вентиляционное отверстие всегда должно быть выше обреза трубы, по которой поступают отходы.
Конечно, такая схема не совсем вписывается в понятие дачный домик, но этот тип туалета не вызовет претензий ни у соседей, ни у органов местной власти
Это очень важно!. Такая же конструкция уличного типа
Такая же конструкция уличного типа.
Рис. 5; 1 – вентканал; 2 – герметичная крышка; 3 – глиняный замок; 4 – герметичная оболочка ямы; 5 – содержимое; 6 – отбойная доска; 7 – вентиляционное окно.
Конструкций стульчака достаточно много, выпускается именно для таких туалетов и санфаянс.
Рис. 6. Унитаз для люфт-клозетов.
Диаметр внутреннего отверстия 300 мм, крышка в комплект не входит.
Очистка
Со временем в яме образуется ил, который не даёт жидкости дренировать. В результате яма быстро заполняется.
Для того чтобы его восстановить фильтрацию, народные умельцы советуют перемешать содержимое химическими способами: негашёной известью, карбидом кальция, дрожжами. Положительный эффект может наблюдаться в 1 – 2 случаях из 10. В остальных – крупные неприятности.
Сегодня есть широчайший ассортимент биологических средств и стимуляторов для выгребных ям, которые без шума и пыли ликвидируют ил, превратят содержимое в компост, пригодный для выращивания даже овощных культур.
Конечно, для этого нужно время: не менее 2 – 3 лет в зависимости от среднегодовой температуры, точного соблюдения инструкции производителя, особенно по срокам внесения. От запаха можно избавиться в течение нескольких недель.
Если это не имеет практического смысла или противоречит культурным традициям, вызов спецавтомобиля решит все проблемы. Когда такие визиты покажутся затратными, время подумать о другом варианте, который рассмотрим ниже.
Санитарные нормы
Возводить дачный туалет своими руками с выгребной ямой придётся с учётом того, что при среднесуточном стоке менее 1 кубометра она может иметь открытое дно, свыше – только закрытое.
Освобождается она от содержимого не реже 2 раз в год. Сигнал для этого – уровень содержимого менее 35 см от уровня земли.
Дезинфекция выгребных ям уличных уборных проводится смесью такого состава.
- Известь хлорная 10%.
- Гипохлорид натрия 5%.
- Нафтализол 10%.
- Креолин 5%
- Метасиликат натрия 10%.
Чистая сухая хлорка запрещена: выделяет смертельно опасный хлор при увлажнении.
Пудр-клозет
Здесь яму заменяет ёмкость небольшого размера. Имеются вёдра с герметичной крышкой, которую снимают перед процедурой. По её окончанию содержимое «припудривают» органическим материалом. Запах при открытой крышке есть, особенно в жаркое время. Использование биопрепаратов его существенно снижает.
Рис. 7. 1 – вентиляционное окошко; 2 – крышка; 3 – стульчак; 4 – ёмкость; 5 – деревянный каркас; 6 – основа каркаса; 7 – гравийно-щебневая засыпка; 8 –дверь.
Преимущества такой конструкции в том, что уличный туалет для неё не обязателен. Это может быть уголок хозяйственной постройки, подвала. Наличие вентиляционного окошка или трубы обязательно.
Пудр-клозет легко трансформируется в компостный и обратно. Рациональное решение – комбинация его с душем или хозяйственным помещением.
Рис. 8. Совмещённое строение.
Современные модели представляет Елена Малышева.
Электрический туалет оставляет после себя горстку золы, но использовать её в качестве удобрений нельзя. Это относится и к химическим устройствам.
Особенности строительства туалета на даче своими руками из разных материалов: чертежи и фото готовых строений
Построить туалет на участке можно из любых материалов, кроме того, это прекрасный способ утилизировать остатки, которые остались после возведения жилого дома.
Как построить туалет на даче своими руками из металла
Для каркаса клозета из металла можно взять уголки, а обшивку выполнить из древесины или любых иных надёжных аналогов. Строительство состоит из следующих этапов.
- Для жёсткого каркаса нам понадобятся асбестоцементные трубы, обработанные с внешней стороны битумной мастикой, которая защитит поверхность от разрушения. Их необходимо вкопать по углам строения на глубину до 70 см.
- Заполнить трубы на треть бетоном.
- Вставить по центру каждой трубы металлические уголки строго вертикально и дополнить трубы бетоном для надёжной фиксации.
- Сварить каркас из вертикальных опор и горизонтальных перемычек. Для них подойдут стальные уголки 50×50 мм². Необходимо предусмотреть уклон крыши от 10º до 30º.
- Установить на основание каркас и соединить сваркой или болтами все элементы.
- Обработать весь металл от коррозии.
- Обшить каркас и кровлю профнастилом при помощи саморезов по металлу с прорезиненными шайбами.
- Можно дополнительно утеплить каркас пенопластом толщиной до 30 мм.
- Внутреннюю отделку можно выполнить любым материалом, в том числе и деревом.
- Для пола подойдёт шлифованная доска толщиной до 50 мм. Обязательно следует сделать подиум.
- Для дверного каркаса подойдут стальные уголки или брус.
- Обработать древесину защитными пропитками.
ФОТО: apsheronsk.reklama-kuban.com
ФОТО: tosno-stroy.ru
ФОТО: ua.all.biz
ФОТО: krov-torg.ru
На видео можно более подробно ознакомиться с процессом строительства туалета из профнастила:
Watch this video on YouTube
Туалет на даче своими руками из кирпича: чертежи, размеры
Если вы решите использовать туалет не только летом, но и в холодный период, кирпич – это лучшее решение. Кроме того, он, в отличие от древесины, прослужит не один десяток лет. При желании, клозет можно дополнительно утеплить. Получится настоящее капитальное строение.
Туалет, построенный из кирпича, чертежи, схемы и фото которого представлены в нашей галерее, имеет крышу с небольшим уклоном. Её обязательно нужно вывести за периметр каркаса на расстояние около 150 мм.
ФОТО: rukozhopim.ru
ФОТО: rukozhopim.ru
ФОТО: beton021.ru
ФОТО: svoimi-rykami.ru
Весь процесс строительства ямы и туалета из кирпича можно посмотреть на видео:
Watch this video on YouTube
Деревянный туалет для дачи своими руками: чертежи и размеры
Если вы планируете построить отхожее место из древесины, её обязательно следует обработать защитной пропиткой. Брус сечением не менее 40×60 мм используют для каркаса, в качестве обшивки подойдёт любой материал. Мы подобрали несколько интересных чертежей с размерами, которые можно взять на вооружение.
ФОТО: hozferma.ru
ФОТО: beton021.ru
ФОТО: vashbiotualet.ru
ФОТО: pinterest.ru
Как своими руками сделать основание из бетона для туалета на даче: размеры, чертежи
Многие владельцы предпочитают покупать готовые кабинки из дерева, для которых потребуется сделать фундамент с ямой самостоятельно. Основание из бетона – это лучшее решение, оно прослужит не один десяток лет. В зависимости от размета туалета, наличия дополнительных пристроек и типа грунта, можно выбрать один из наиболее удобных вариантов.
ФОТО: remontiruj-info.ru
ФОТО: stroypomochnik.ru
ФОТО: nedvigdom.ru
4 Старые баки и покрышки – как их можно использовать в строительстве туалетов?
Интересно отметить, что пластиковые септики и бетонирование стен – это далеко не единственные способы создания выгребной ямы. Так, уличный туалет вполне может быть сделан при помощи предметов, которым, казалось бы, место на свалке. Очень часто выгребные ямы делаются с использованием автомобильных покрышек. Преимущество заключается в быстроте выполнения всех работ, к тому же процесс откачки не отличается большой сложностью. Однако некоторые негативные моменты имеются. Туалет с подобными шинами применяется лишь тогда, когда жильцы находятся на даче периодически, например, только на выходных. В противном случае потребуется слишком часто откачивать накопившиеся отходы.
Такая яма выполняется достаточно быстро. Котлован необходимо сделать на 20 см больше, нежели диаметр резины. Опять же укладывается слой дренажа в виде осколков камней и щебня на дне выкопанной ямы. После этого ровным слоем укладываются использованные покрышки вплоть до поверхности грунта. По мере увеличения количества шин, вокруг их постоянно засыпается и трамбуется дренаж из мелкозернистого песка и щебня.
При желании можно сделать небольшой ленточный фундамент для усиления будущей постройки. Делается это также достаточно быстро и просто, ведь нам необходимо только выкопать траншею глубиной до полуметра по периметру клозета, куда в дальнейшем будем заливать бетон. Без дренажа обойтись не получится даже здесь, поэтому засыпаем песок и щебенку, после чего тщательно их утрамбовываем. Обязательным условием является наличие гидроизоляционного слоя, выполняемого, как правило, из плотной полиэтиленовой пленки.

А ведь эти покрышки под выгребную яму вполне могли оказаться на свалке, но сыграли свою роль
Теперь нам остается лишь усилить фундамент при помощи арматурной сетки, залить выкопанные траншеи бетонным раствором, подождать его полного высыхания и застелить рубероидом. Данный материал необходим для отделения бетона от деревянной поверхности, которая устанавливаться в дальнейшем, при возведении кабинки туалета.
Именно на этом ленточном фундаменте и будет строиться наземная часть сооружения. Чтобы несколько упростить данный процесс, можно в первую очередь установить деревянную раму, играющую роль основы, а уже после этого устанавливать остальные части кабинки, в зависимости от понравившегося типа домика.
Напоследок расскажем об еще одном достаточно интересном способе. Некоторые умельцы научились применять даже металлические бочки, дно у которых полностью срезано, для обустройства туалетных ям. Сам процесс практически ничем не отличается от методов, описанных выше. Бочки устанавливаются одна на другую, параллельно засыпая дренажем и тщательно его утрамбовывая.
Однако металлические конструкции для использования в выгребных ямах не очень востребованы. Это связано в первую очередь с тем, что металл под воздействием многочисленных бактерий, очень подвержен коррозии. В результате, уже через несколько лет бочки начинают корродировать, что приводит к необходимости их замены. Соответственно, уличный туалет, выполненный из металла, будет служить далеко не так долго, как вам того хотелось бы.
Как очистить уборную
Очистка туалетов, расположенных на улице, иногда становится серьезной проблемой. Специфика в том, что содержимое ямы имеет густую консистенцию, ведь туда не сливаются жидкие отходы из кухни или ванной. Даже в выгребной яме массы слеживаются, с годами густеют еще больше и по приезде ассенизаторской машины их приходится разбавлять водой, чтобы откачать.
В септиках, где продукты жизнедеятельности задерживаются фильтрующей подушкой, их рекомендуется перерабатывать с помощью современных бактериальных средств. Они продаются в виде таблеток или порошков и помимо бактерий содержат торфяные и другие добавки, подавляющие неприятные запахи. Подобные составы лучше применять с первого дня пользования туалетом, а не дожидаться, когда он доверху наполнится неизвлекаемой жижей.

Строительство дачного туалета
Принципы создания проекта
Главный момент, которым нужно руководствоваться, создавая проект туалета на даче – прорисовка всех деталей. Четкое указание размеров, формы и типа строения – гарантия успешного воплощения проекта в жизнь. Кроме того, есть некоторые нормативы, которые нельзя упускать из вида.

- Расстояние от туалета до места водоотведения должно составлять не менее 30 м.
- Жилые и хозяйственные строения должны находиться на расстоянии более 15 м от туалета. Исключение составляет септик с системой биоочистки туалета.
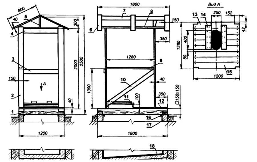
- Размеры дачного туалета: высота туалета не может превышать 2, 5 м, длина варьироваться в пределах 1,2 – 1,8 м, ширина – 1 – 1, 2 м.
- Глубина выгребной ямы должна составлять не менее 1,5 — 2 м, диаметр 2 – 2,5 м.
Кирпич
О достоинствах данного материала знают многие. Кирпич отличается прочностью, надежностью, долгим сроком эксплуатации, устойчивостью к влаге и солнцу, способностью сохранения тепла. Кроме того, летом в домах из кирпича прохладно, а экологическая чистота делает его, бесспорно, самым востребованным материалом для строительства. Чтобы возвести туалет на даче из кирпича, вам необходимо позаботиться о фундаменте
Также, очень важно делать качественную кладку. В качестве кровельного материала для туалета используйте шифер, это самый простой и надежный вариант
Дерево
Поскольку это самые популярные конструкции туалетов на даче, то и вариаций их форм существует несколько:
- Шалаш. Конструкция имеет привлекательный внешний вид и обладает прочностью. Будьте уверены в том, что такой туалет прослужит вам долго, поскольку не боится ни снега, ни дождя, ни порывов ветра. К минусам стоит отнести некоторое неудобство нахождения в нем. Высокие люди могут ударяться головой об потолок, постоянно придется нагибаться при входе и выходе.
- Теремок или скворечник. Относится к самым простым проектам дачного туалета. Для его сооружения потребуется не очень много материалов. Из минусов – плохо сохраняет тепло и легко пропускает ветер, поэтому зачастую таким туалетом можно пользоваться в летний период.
- Домик. Постройка обладает прочностью и достаточно теплая, если сравнивать с теремком. На его создание также уйдет минимум материалов, а уникальность формы допускает создание художественной отделки.
- Избушка. Относится к сложным проектам дачных туалетов. Для его реализации потребуется большое количество материалов и затрат трудовых ресурсов. Но, тем не менее, в результате вы получите прочное сооружение, способное выдержать любые неблагоприятные условия. Также, каждый член вашей семьи отметит удобство пользования таким видом сооружения.
Металл
Данный вариант дачного туалета подойдёт для тех, кто имеет ограниченный бюджет и хочет соорудить его по-быстрому. Для строительства используют металлические листы, которые, возможно, остались после возведения дома, или покупаются новые
Важно не забыть о внутренней обшивке туалета, поскольку в холодно время года, вам будет несладко в таком помещении
Преимуществом такого строения является то, что с ним вполне сможет справиться даже новичок
Внимание необходимо уделить стульчаку для дачного туалета, который лучше всего соорудить из древесины, для удобства сидения на нем
Порядок строительства и обустройства туалета

Порядок строительства и обустройства туалета
Первый этап – подготовка ямы. Обычно делается квадратная яма со сторонами в 100 см и глубиной порядка 2 м. Прежде чем приступать к рытью выгреба четко выделите его пределы.

Первый этап – подготовка ямы
Стены и низ конструкции подлежат усилению. Для решения этой проблемы можно использовать бетонные кольца либо кирпич, также применяются бутовый камень, доски и пр. На дно выгреба насыпается щебенка и тщательно утрамбовывается. На щебенке обустраивается кирпичная кладка либо же делается бетонная стяжка.

Стены и низ конструкции подлежат усилению
Второй этап – обустройство выгребной ямы. Внутренние стенки выгреба подлежат обязательной влагоизоляции. Такая обработка предотвратит проникновение отходов из ямы в грунтовые воды. Для гидроизоляции стены достаточно заштукатурить либо проконопатить.
Третий этап – подготовка фундамента для туалетного домика. Традиционно такие домики устанавливаются на основания столбчатого типа. Углы строения должны опираться на кирпичные столбы, укрытые рубероидом в качестве гидроизоляционного материала.
Четвертый этап – подготовка рамной конструкции. Основа домика собирается из деревянных балок. Предварительно их необходимо обработать грунтовкой и покрасить. Подобная обработка предотвратит преждевременное гниение древесины. Соберите раму и установите ее на кирпичное основание. Выставьте на раму 4 стойки. Обязательно убедитесь в вертикальности их размещения. Для получения надежной фиксации используйте болты. Дополнительно укрепите конструкцию при помощи металлических пластин. Установите балки для кровли, а также стойки для монтажа дверей.

Четвертый этап – подготовка рамной конструкции
Крыша должна иметь небольшой уклон. Для его обеспечения сделайте передние стойки немного длиннее задних. Над выгребом обустройте каркас из деревянных брусков под будущее сидение. Кровлю нужно укрыть рубероидом и выбранным финишным материалом. Чаще всего используется шифер.
Пятый этап – обшивка конструкции. Прибейте к каркасу вертикальные бруски или доски под вагонку, сайдинг или другой выбранный вами материал. Доски крепятся на расстоянии в 150 мм друг от друга. Основание для сидения и внутреннюю поверхность стен тоже нужно обшить вагонкой или другим желаемым материалом.

Пятый этап – обшивка конструкции
Шестой этап – установка дверей. Сбейте дверь, закрепите петли в соответствующих местах и навесьте полотно. При желании установите фурнитуру и дополнительные элементы в виде порожка, наличников и т.п.

Шестой этап – установка дверей
Седьмой этап – обустройство освещения дачного туалета. Чтобы уборной было удобно пользоваться в любое время суток, к ней нужно подвести электричество. Светильник выбирайте на свое усмотрение.

Седьмой этап – обустройство освещения дачного туалета
Также над дверью нужно вырезать окошко желаемой формы. Через него помещение будет освещаться в дневное время.
Восьмой этап – обустройство вентиляции
Чтобы дачный туалет не стал источником неприятных запахов, отравляющих жизнь, уделите должное внимание обустройству вентиляционной системы

Восьмой этап – обустройство вентиляции
Купите пластиковую трубу диаметром 100 мм и закрепите ее на задней стенке домика при помощи хомутов. Один конец такой трубы нужно заглубить в выгреб примерно на 100 мм, а второй вывести наружу. Для этого вам необходимо предварительно подготовить подходящие отверстия в подиум-сидение и крыше. Длину трубы подбирайте такую, чтобы она возвышалась над кровлей примерно на 20 см. Зашпаклюйте места прохождения трубы через перекрытия. На оголовок вентиляции устанавливается специальная насадка-дефлектор.
Это традиционный вариант дачного туалета с выгребной ямой. При желании вы можете отдать выбор в пользу другой конструкции, к примеру, люфт-клозета либо же пудр-клозета.

















































