Обустройство дома 8х8: рекомендации по формированию пространства
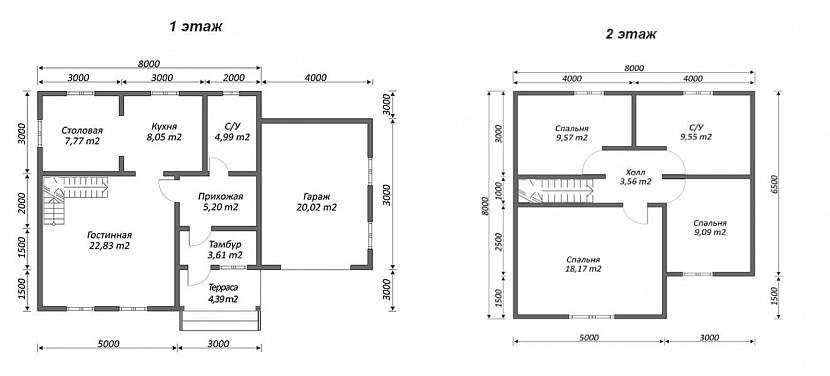
Характеристика удачной планировки жилого пространства – удобство для всех проживающих в доме. С этой целью рекомендуется располагать помещения вокруг прихожей, чтобы каждый мог свободно попасть в любую комнату, не проходя анфиладу спален и кладовок. Центральное расположение прихожей в проекте дома 8х8 также экономит площадь всей постройки: в отличие от традиционных длинных коридоров, проходящих через весь этаж, помещение компактно и функционально.

Компактный холл второго этажа вмещает лестницу, окно и двери во все помещенияИсточник glezer.ru

Небольшой коридор переходит в гостиную: планировка одноэтажного дома 8х8Источник martand.ru
Гостиную рекомендуется располагать в качестве «разделителя» между общественными и приватными помещениями: с одной стороны располагается кухня и прихожая, с другой – спальни и детские комнаты. Светлая и просторная, эта комната нередко становится центральным помещением в доме, поэтому рекомендуется использовать высокие потолки. Гостеприимным хозяевам стоит подумать над объединением кухни с гостиной, чтобы расширить пространство для размещения большой компании.
Веранды, мансарды и эркеры лучше всего смотрятся в качестве «продолжения» холлов и гостиных. Затейливые архитектурные формы, оригинальное остекление и обилие декора целесообразно в освещённых помещениях большого метража.

Выступающие эркеры и мансардная крыша увеличивают площадь дома на 60 см с каждой стороны, при этом планировка не отличается вместительностьюИсточник bdomstroy.ru
Санузлы рекомендуется разделить на гостевые и приватные, первые лучше расположить между спальнями и детскими хозяев дома. Гостевой обычно меньше приватного, он уместно смотрится между кухней и гостиной.
Примеры проектов
Востребованными являются проекты 6×8, где мансарда используется не как чердачное помещение, а как жилое, ввиду наличия в них всех требуемых условий для проживания одного-двух хозяев либо семьи из 5–6 человек. Концептуальная установка – на активное использование площади, позволяет выполнить планировку лаконичной, целостной.
В домах 6×8 проект предполагает гостиную, кухню, санузел (в том числе и раздельный), гардеробной, спальни либо кабинета на первом этаже. Мансарда располагает 1–2 спальнями или спальней с гостиной. Веранда, балкон добавят полезной площади к постройке 6×8 м.
При этом жилые комнаты обустраиваются на солнечной, преимущественно западной стороне. Кухня, другие хозяйственные помещения в проекте 6×8 выполняются глухими при отсутствии возможности установить окна. Естественное освещение мансарды обеспечивают большие оконные рамы, а сохранность тепла – двух- и трехслойная конструкция окон.
Проект 1
Выгодным вариантом для проживания многодетной семьи станет проект, где для всех помещений выделена максимально возможная площадь. Такой бюджетный каркасный дом 6 на 8 м имеет жилую комнату на первом этаже, соседствующую с ней кухню, переходящую в гостиную, прихожую и террасу. Размеры гостиной позволяют вместить и гостей, и всех членов семьи. А спальня отдается старшему поколению ввиду трудностей, испытываемых пожилыми людьми при подъеме по ступенькам.
Мансарда отдана под все спальни. Погабаритней выбирают родители, а помещение чуть меньше подойдет для 1 ребенка. При наличии нескольких детей, расчет жилой площади диаметрально противоположный, что не мешает отдыху как взрослых, так и их потомкам.
Соединение между первым этажом, мансардой происходит за счет небольшой прихожей, что также экономит место, делает доступ к спальням свободней. Таким образом, внешне компактный проект приобретает расширенное внутреннее пространство за счет грамотной компоновки комнат.
Проект 2
Для загородного дома либо семейной пары из 2 человек креативное решение – проект дома из бруса 6х8, где мансардный этаж целиком отдан под объемную спальню, а на первом этаже деревянного коттеджа разместились кухня, габаритная гостиная, терраса, тамбур, санузел.
Спальня занимает площадь в 25 кв. м., которых хватит для установки двуспальной кровати, гардероба, другой необходимой мебели. Эстетически привлекательный фасад и простор в помещениях дарят жильцам ощущение комфорта.
Проект 3
Семье из 3-4 человек потребуется две спальни, зона отдыха, кухня и удобства. Совмещенный санузел на первом этаже легче монтируется, практичней в эксплуатации. К тому же экономит полезную площадь дома 6×8. Коммуникационные линии, помимо электричества, проводятся исключительно на первом этаже, что является еще одним фактором экономии. В гостиную свет поступает из трех больших окон, что визуально еще больше ее расширяет. Тамбур отделен межкомнатной перегородкой с прихожей. Он может использоваться как гардеробная.
Мансарда в доме 6×8 соединяется лестницей с первым этажом через прихожую. Две спальни сопряжены холлом, имеют равные размеры. Окна пропускают естественное освещение.
Наличие большого числа вариантов по типу материала, компоновке помещений делает проект 6×8 востребованным, особенно при застройке в черте города, желании владельцев иметь комфортное жизненное пространство при минимальных затратах. Мансарда уменьшает затраты жильцов на возведение, обогрев, придает дому эстетической привлекательности.
Обзор типовых проектов 8х8
Типовой проект дома с мансардой 8х8 рассматривается как оптимальный вариант для семьи из 3-4 человек. Площадь такого жилья находится в пределах от 90 до 120 квадратов. На ее размер значительное влияние оказывает размер полезной площади мансарды, который, в свою очередь, зависит от конструкции крыши.
Типовые проекты учитывают особенности грунтов данного региона и возможность подключения коммуникаций (газа, электричества). Внутренняя планировка основывается на максимальном использовании полезного пространства. В проекте 8х8 с мансардой допускаются определенные изменения, согласно потребностям будущих жильцов. Так, во время согласования заказчик выбирает удобную для его потребностей планировку, а также материалы для кровли, отделки фасада и внутренних стен.

Типовой проект с мансардойИсточник juliz.pl
Если не удается подобрать подходящий готовый вариант, на помощь придет проект по индивидуальному заказу. Будущий владелец сможет создать дом своей мечты, определив конфигурацию всех элементов проекта: крыши, мансарды, гаража, террасы. При желании добавляются новые элементы, например, эркер на фасаде или балкон на мансардном этаже. Проект размером 100 квадратов смотрится компактно, но вмещает все необходимые комнаты, в число которых входит:
- Прихожая с коридором или небольшой холл с лестницей, санузел.
- Гостиная и кухня. Иногда планируется кухня-столовая (за счет уменьшения гостиной).
- Дополнительная комната. В зависимости от нужд хозяев, это может быть гостевая спальня, кабинет, гардеробная. Потребуется место для котельной и кладовой. Санузел может вмещать как душевую кабину, так и ванну.

Проект с мансардой и террасойИсточник drevolog.ru
- Мансардный этаж. Его возможности скромнее и ограничиваются двумя-тремя спальнями (включая детскую) и санузлом.
- Дополнительные опции. Дом с мансардным этажом становится более практичным, если в проект добавить цоколь. Неплохое дополнение — терраса, ширина которой ограничивается 3-4 м.
- Гараж. Его габариты могут достигать 3х8 м, в случае, если хозяину понадобится место под верстак или иное оборудование. Иногда рядом с гаражом сооружается навес, удобное место для обслуживания автомобиля.
Видео описание
О выборе красивого дома из пеноблоков в следующем видео:

Проект с гаражомИсточник www.master-rus.ru
Идеи планировки и зонирования пространства
Если проект дома 8 на 8 с мансардным этажом сделан профессионально и может похвастаться отличной планировкой, в нем будет уютно всем члена семьи. В дополнение к рациональному распределению жилой площади используются следующие приемы, повышающие комфорт:
Кухня совмещается с гостиной. Объединенное пространство — идеальный вариант для приема гостей, обеспечивающий свободу общения.

Три в одном: гостиная, кухня, столоваяИсточник pic2.me
- Обустраивается терраса. На ней можно устроить удобную летнюю кухню. Популярны застекленные и утепленные террасы; их используют как дополнительную комнату.
- Гостиная со вторым светом. Эффект уменьшает площадь мансарды, но визуально увеличит пространство гостиной (или гостиной-кухни).

Гостиная-кухня со вторым светомИсточник blog.parisattitude.com
- Большое количество окон в проекте. Благодаря такому решению комнаты не только лучше освещаются, но и выглядят просторнее и свежее.
- Организация камина на мансарде гарантирует роскошные зимние вечера.
- Использование пространства под лестницей. Если позволяют размеры, под лестницей устраивают кладовую, а то и гардеробную.

Визуализация 1-го этажа проекта 8х8Источник phpdugbookmarks.info
- В доме с цоколем веранду может заменить крыльцо с защитным козырьком. Оно планируется длиной во всю стену, или на манер угловой веранды.
- Котельная с отдельным входом — практичный вариант, избавляющий от неудобств.
Видео описание
О вариантах жилья 10х10 из пеноблоков в следующем видео:

Бюджетный проект в современном стилеИсточник www.inlevel.lv
Заключение
Проект 8х8 с мансардой, возведенный из пеноблоков, в любом случае выйдет дешевле, чем аналогичная постройка в два этажа. Габариты такого дома предоставляют множество возможностей для удобной планировки. Привлекают и возможности мансарды в плане использования разнообразных интерьерных решений. Оригинально обыграть можно все: наклонные стены и окна, ниши, перекрытия и балки. В интерьер мансардного пространства идеально вписываются встроенные шкафы-купе и стеллажи, а современные строительные и отделочные материалы превращают мансарду в комфортную комнату для жилья.
Материалы для строительства
Для строений 6×8 м существует несколько основных постулатов, обеспечивающих уют, надлежащие эксплуатационные характеристики:
- толщина несущих стен в пределах 30 см, а межкомнатных перегородок – не более 10–12 см;
- необходим точный просчетдополнительной нагрузки, оказываемой на стены дома, где мансарда используется под жилую площадь;
- проект каркасного дома 6х8 с мансардой предполагает использование облегченныхотделочных материалов (сайдинг, вагонка), негабаритной мебели;
- тепло- и гидроизоляция должны быть продуманы до мельчайших нюансов, чтобы нивелировать потерю тепла, появление конденсата в помещении.
Особенности материала несущих стен влияют на качество жизни в доме 6×8, а также на его устойчивость к неблагоприятным геологическим, климатическим условиям. Каждый тип конструкции со своими преимуществами, недостатками, что позволяет выбрать наиболее релевантный вариант.
Проект 6×8, где предполагается мансарда, может быть выполнен из современных либо классических материалов. К первым относится газо, пенобетон. Их преимуществами считают легкость моделирования форм, возведения в целом. Кирпич, газобетон характеризуется отличными изоляционными свойствами, защищая владельца от шума, холода снаружи здания. Проект 6×8 и мансарда из пеноблоков дешевле кирпичного варианта, а климатический уют идентичен.
Дом из бруса 6х8 с мансардой не будет пропускать тепло: зимой в нем не холодно, а летом – не жарко. Его специфика в том, что он «дышит», обеспечивая климат-комфорт внутри. А оригинальность дизайна, гармоничное сочетание с природным ландшафтом оценят не только владельцы, но и их гости.
Наиболее быстровозводимым является каркасный дом 6х8 с мансардой. Его можно установить за несколько месяцев, а работы проводятся при любой погоде. Недостаток лишь в необходимости использовать качественные отделочные материалы. Но такие конструкции не требуют усадки, строительство здания 6×8 производится с использованием облегченных типов фундамента, что экономит бюджет.
Проект
Составляя проект дома 8х10 м, чаще всего спальные комнаты размещают внутри мансардного этажа, где они менее всего доступны постороннему глазу. Если обратиться к варианту, строящемуся из пеноблоков, можно обнаружить, что на общую площадь в 124 кв. м. доля жилого пространства составляет менее 70 м2. Подобное решение позволяет создать крупную и внешне просторную мансарду, но сравнительно небольшую кухню. Вряд ли там удобно будет размещать столы для больших семей. Зато мансардный этаж оснащают тремя спальнями.

Рассмотрим другой проект: дом величиной 10х8 м делается из бруса либо деревянного сруба. Дом отличается рациональным использованием всей площади, обеспечен достаточно просторной кухней, есть три спальни. Общая территория составляет 126 кв. м., на нежилые помещения приходится 38 кв. м. Если возникает необходимость, всегда можно преобразовать одну спальню в пространство для детей.


Многие заказчики предпочитают каркасный дом, поскольку в нем объединены три основных преимущества:
- доступная цена;
- изящество;
- практичность.
При этом построить каркасную конструкцию можно за очень малое время. Застройщики могут выбирать между финской и канадской технологиями. В первом случае используются специальные щиты, которые практически полностью готовы к использованию. Иногда даже на строительную площадку привозят совершенно готовые стены, в которые уже встроили окна и двери.
Канадская схема практикуется в основном не индивидуальными заказчиками, а строительными компаниями, которые создают целые коттеджные поселки на значительной территории.


При выборе каркасно-панельной схемы обустройства стройматериал монтируется самостоятельно, затем его обрабатывают и создают теплозащиту. Экономически такое решение относительно выгодно, но придется смириться с повышенной трудностью работы.
Каркасно-щитовой тип без привлечения строительной индустрии немыслим: только на промышленных установках могут быть подготовлены необходимые составные части будущего дома. Зато планка требований к квалификации строителей понижается. Качественный материал эксплуатируется достаточно долго, понижаются затраты на обогрев постройки.
Варианты планировок дома 8х8
Востребованы следующие варианты планировочных решений:
- одноэтажные;
- с мансардой;
- с террасой;
- двухэтажные и т.д.
Одноэтажные дома
Одноэтажные здания подходят для небольших семей. Планировочные решения предусматривают прихожую в центральной части, вокруг размещают остальные комнаты. Кухню рекомендуют объединять с гостевой комнатой. Дом можно дополнить остекленной верандой.
Конструкционная планировка одноэтажного строения проста, поэтому разведение коммуникационных систем требует меньших финансовых вложений. В одноэтажном доме нет лестницы, что позволяет оставить полезную площадь под обустройство дополнительных зон отдыха, кладовок. Затраты на монтажные и проектировочные работы также уменьшаются.

При подготовке планировочного решения дома необходимо учитывать, что для большого пространства сложно избежать проходных помещений. Можно сделать гостиную с 2 входами и тамбур. Спальные и комнаты для детей можно разместить в отдалении от входной зоны.
Дома с мансардой
с мансардой позволяют обустроить дополнительную детскую, комнату отдыха, вторую спальную либо гостевую комнату. В мансарде можно обустроить ванную, хозблок.
В качестве фундамента для строения из газоблоков используется монолитная железобетонная плита. В качестве внешней отделки здания можно использовать декоративную штукатурку, окрашивание, каменные блоки, фасадные доски и т.д. В некоторых проектах можно встретить встроенный гараж.

Двухэтажные дома
Двухэтажные жилые здания предполагают обустройство 2 санузлов (на разных этажах), можно спроектировать просторные кладовые, хозблоки рядом с лестничным пролетом. На первом этаже стандартно размещается гостевая-столовая и кухня; зоны разделяют с помощью перегородок. При необходимости сохранения большего пространства они объединяются, выполняется визуальное зонирование пространства. На втором этаже можно обустроить террасу, на первом — пристроить веранду,
Дома с террасой
Здания с открытой террасой не требуют изменения системы отопления стандартного проекта. При этом создается добавочная площадь для отдыха, приема гостей в летний период. По проектному решению можно остеклить террасу и дополнить встроенной системой отопления для использования пространства в зимний период, обустройства зимнего сада, расширения жилой части здания и т.д.

При выборе террасы надо определить стилевое решение, конфигурацию. Универсальна открытая терраса, дополненная навесом, примыкающая одной стороной к строению. Данная конструкция оптимальна для дачной постройки, т.к. недостаточно защищает от осадков, ветра.
При постройке веранды вокруг всего дома в летний период можно обеспечивать прохладу в помещениях, данный проект подходит для теплых климатических условий. На террасе можно разместить столы, кресла, протянуть шезлонги.

Для капитального жилого здания рекомендуется использовать застекленные террасы. Место подходит для летней спальной, зоны отдыха, гостевой комнаты. Рекомендуется выполнить качественную декоративную отделку помещений.
Оригинально выглядит проект с террасой в стиле модерн. В некоторых случаях возможно остекление не только стен, но и крыши для создания панорамной конструкции. В постройках в современном стиле можно спроектировать раздвижные двери купейного типа.

Выбор материала и технологии строительства
Прежде чем начать строительство коттеджа 8 на 12 нужно определить материал для возведения стен. При выборе стоит учитывать следующие критерии:
- Цена. Расходы будут меньше, если воспользоваться легкими материалами. Тогда не нужен будет мощный фундамент.
- Теплоизоляция. Прежде чем выбрать материал нужно выполнить расчет теплопроводности стен, с учетом местных температурных режимов.
- Трудозатраты. Уменьшение затрат при использовании в возведении стен крупных блоков, а не мелкоштучных материалов. Скорость строительства домов повышается в 3 – 4 раза.
- Расходы на отделочные работы. Современные материалы не требуют дополнительной отделки.
Среди строительных материалов, чаще всего применяемых для возведения коттеджей 8 на 12 выделяют:
- Клееный или профилированный брус. Коттеджи из бруса экологичны и эстетичны, с отличной звукоизоляцией и теплопроводностью. Строения прочны и надежны, возводятся быстро, не требуют мощного фундамента.
- Ячеистые бетоны. Пенобетон и газобетон имеют сходные технические свойства и подходят для строительства малоэтажных домов 8 на 12 и мансардных этажей.
В последнее время при строительстве домов 8 на 12 лидирует каркасная технология. Каркасный дом, построенный по новой методике экологичен, не подвержен усадке, возводится быстро, не требует мощного фундамента, обладает высокой теплопроводностью.
Дома 8 на 12 отличаются хорошей планировкой, функциональностью и удобством. Они подойдут для большой семьи.
Особенности планировки домов
Универсальных планировочных решений, подходящих всем, не бывает, и у каждой семьи имеются собственные представления о комфорте, и собственные требования по количеству, назначению и размеру комнат. Все эти требования учитываются при доработке типового проекта.
Так же важен внешний вид жилья, при этом разнообразие стилей и их архитектурных воплощений не зависит от планировки. Один и тот же двухэтажный проект может иметь вид классической английской постройки или альпийского шале. Для семьи с двумя детьми площадь между жилыми и хозяйственными помещениями может распределяться следующим образом:
Для гостиной стараются выделить минимум 20 квадратов.

Гостиная со вторым светомИсточник norgehouse.com
- Родительская и детская спальни. Площадь родительской спальни закладывается не меньше 12 квадратов, детской — от 18 м2, поскольку детям нужно пространство не только для сна, но и для игр; также необходима рабочая зона для выполнения домашних заданий.
- На кухню и санузел выделяется 14-16 м2.
В планировке дома 8 на 9 в одноэтажном или мансардном варианте важно продумать расположение хозяйственных помещений. Рекомендуется располагать кухню рядом с входом, а санузел и бойлерную — рядом с ней
В проекте с мансардой или вторым этажом важно выбрать рациональное место для лестницы; это поможет полнее использовать площадь.

Использование пространства под лестницейИсточник enamai.lt
О доме 8х9 для постоянного проживания в следующем видео:
Приемы планировки
При проектировании домов небольшой площади часто используют конструктивные решения, улучшающие соотношение цена/качество. В число распространенных приемов входит:
Открытая планировка. Предпочтение объединенного пространства (чаще всего это кухня-гостиная или кухня-столовая) выгодно по двум причинам. Во-первых, оно создает столь необходимое в небольшом доме ощущение простора. Во-вторых, площадь коридоров снижается (или они совсем отсутствуют), что позволяет увеличить размеры значимых комнат.

Совмещение кухни, столовой и гостинойИсточник interiorsmall.ru
Разнообразие материалов. Для стен чаще выбирают брус или штучные материалы: пено- и газобетонные, керамические блоки; распространено и использование каркасной технологии. Фундамент закладывается ленточный, монолитный или свайный, что определяется характеристиками грунта, особенностями проекта и отделки.

Интерьер в стиле шалеИсточник toddwatts.co
Оптимизация коммуникаций. Длину коммуникаций стараются минимизировать, чтобы уменьшить расходы на разводку канализации и водопровода. Для этого мокрые комнаты (ванная и кухня) в одноэтажном доме проектируются в смежных помещениях. С этой же целью в жилье с мансардой или вторым этажом мокрые комнаты располагают друг над другом.

Столовая зона в открытой планировкеИсточник chidaneh.com
Заключение
Среди готовых проектов 8х9 одноэтажные дома станут наименее выгодным, в экономическом смысле, выбором. В таких постройках затраты на организацию фундамента и кровли составят не менее 30% от общего строительного бюджета. Гораздо выгоднее выбор дома с мансардой или вторым этажом, поскольку такие проекты обладают большей полезной площадью с меньшими затратами на квадратный метр. В этих домах планировочные решения более разнообразные и интересные по реализации.
Количество этажей
Для определения этажности будущего дома нужно предварительно взвесить все за и против той или иной планировки.
Выбор одноэтажного коттеджа 8 на 12 обойдется значительно дороже, чем дом с мансардой. Чтобы получить здание такой же площади нужно увеличить площадь фундамента и кровли, а это существенные затраты. Но если в семье есть пожилые люди одноэтажное здание то, что нужно.
Мансарда позволит разделить планировку коттеджа на общую зону и личные апартаменты членов семьи. Такой план дома 8 на 12 станет логичным решением для небольшого участка. Недостатком проекта здания с мансардой являются небольшая высота аттиковой стены и скаты кровли, уменьшающие полезное пространство.
Двухэтажный дом хоть и дороже, но в таком здании есть два полноценных и пригодных для проживания уровня.
Одноэтажный
При планировке коттеджа 8×12 нужно учесть минимальный перечень необходимых помещений:
- Гостиная.
- Спальня для каждого члена семьи.
- Кухня.
- Раздельный или совмещенный санузел.
- Входной тамбур или закрытая веранда, для исключения зимой образования конденсата за счет перепада температур.
- Котельная для размещения отопительного оборудования.
В качестве примера может послужить проект одноэтажного дома 8 на 12 для постоянного проживания. Визуально планировку коттеджа можно разделить на две части: зону отдыха и личные апартаменты.
В первой части располагается прихожая со встроенным шкафом-купе, помещение топочной, небольшой холл, плавно переходящий в огромную гостиную с камином, местом отдыха и обеденным столом. Под кухню отделено смежное помещение почти в 8 м2. В другой части располагается три спальни и общий санузел с ванной и душевой кабиной.
Двухэтажный
В сравнении с одноэтажными зданиями 8 на 12, проект двухэтажного дома может похвастаться отличной планировкой. Огромные площади позволяют поместить все необходимые помещения с большим комфортом. Дома с такой планировкой предпочитают большие семьи. Пространство дома включает дневную и ночную зону. На первом уровне по проекту располагаются:
- просторная гостиная, полученная за счет объединения кухни, столовой и зоны отдыха;
- кабинет, который при желании может быть переоборудован в комнату для гостей или членов семьи старшего поколения;
- помещение топочной, которое может использоваться как домашняя мастерская;
- совмещенный санузел;
- прихожая;
- большой холл с лестницей на второй этаж.
Второй этаж с тремя спальнями, просторным холлом, ванной комнатой, туалетом и гардеробной, согласно проекту, отводится под личное пространство обитателей дома.
С цоколем
Проекты домов 8 на 12 с цокольным этажом выбирают владельцы небольших участков со сложным рельефом. В этом случае приходиться экономить каждый метр земельного надела. Преимущества проекта : площадь для размещения нежилых помещений и значительная экономия при строительстве, так как часть стен находится в грунте. Цоколь обходится намного дешевле, чем возведение полноценного этажа. Дополнительное пространство можно использовать под вместительный гараж, бильярдную, спортзал и даже винный зал.
Красивые примеры
Предлагаем вашему вниманию несколько наиболее характерных вариантов домов с мансардой размером 6х8 м2:
Отличный пример уютного каркасного домика, выполненного в европейском стиле. Особого внимания заслуживает приятная цветовая гамма: сочетание светлых, практически белых, и коричневых тонов создает умиротворенное настроение и придает ощущение легкости, воздушности всей конструкции. Маленькое аккуратное крыльцо представляется логичным завершением всей конструкции.

- Угловое крыльцо и утепленная веранда встречают всех, кто заходит в этот уютный домик, выполненный из деревянного бруса. Фундамент из эстетических соображений облицован имитацией кирпича, что гармонично сочетается по цвету с черепичной крышей. Расположение помещений внутри дома классическое, а мансарда разделена на две спальни.
- В этом примере интересно расположение окон в мансарде: навес в виде маленькой двускатной крыши над окном несет не только эстетическую, но и практическую функцию. Опять же следует отметить хорошее сочетание цвета черепицы и «искусственного» кирпича.


- Что мешает сделать в мансарде не только окна, но и полноценный балкон с двускатной крышей? Данный проект интересен не только оригинальным решением в отношении мансарды, но и общим видом конструкции: здание производит впечатление одновременно уюта и стабильности. Вместо веранды автор проекта предпочел широкое удобное крыльцо, которое при желании можно застеклить.
- А это уже нестандартный подход к решению поставленной задачи: загородный дом размером 6х8 м2 с оригинальными конструктивными особенностями крыши и просторной летней верандой, которая может выполнять роль гостиной. В данном примере можно видеть отличное сочетание цветов и практическую завершенность всех элементов конструкции.


Про особенности составления проекта дома с мансардой 6 на 8 смотрите в следующем видео.
Особенности
Пеноблочные дома с мансардой все чаще можно увидеть среди загородных построек. Возрастающая популярность подобного рода домов легко объяснима. Материал, используемый для строительства, отличается замечательными свойствами, а мансарда позволяет выкроить лишние квадратные метры для активного жилого использования. Огромное разнообразие типовых проектов позволяет подобрать вариант для максимально комфортного жилья, а если такого варианта все же не нашлось, всегда можно сделать индивидуальный заказ на разработку проектной документации и строительства.
По сути блоки состоят из цемента, воды, песка и пенообразователя, за счет которого и образуется та самая закрытая пористая структура. Как видно из состава, здесь нет ничего такого, что могло бы выделять токсичные испарения.


За счет пористой структуры, а также внушительных размеров строительных элементов (при минимуме швов) в домах из пеноблоков поддерживается максимально комфортный микроклимат. Зимой – не холодно, летом – прохладно! Каких-либо особых вложений в теплоизоляцию стен подобного рода постройки не требуют.
В своей эксплуатации пеноблочные дома очень неприхотливы. Гниль и пожары им не страшны, ведь они устойчивы к таким негативным воздействиям. Простую невзрачную серую постройку из пеноблоков всегда можно замаскировать финишной отделкой – покраской или декоративными отделочными материалами, так что эстетический вопрос тоже решен.
Планировка домов с мансардой подразумевает использование дополнительного пространства чердака – главное, чтобы перекрытия верхнего жилого этажа были надежными и прочными
Особое внимание стоит уделить каркасу крыши, ее тепло- и гидроизоляции. Хорошо сделанная крыша прослужит не одно десятилетие, а плохая – соберет немало денежных средств на устранение своих дефектов
Решение об обустройстве мансарды зачастую продиктовано тем, что нет возможности сделать дополнительный этаж, а пространство для жизни просто необходимо. Верхние комнаты получаются весьма специфичными, со скошенными стенами. На некоторых людей, в особенности детей, такие стены производят психологически давящее впечатление. Частично решить проблему сковывающего пространства можно с помощью установки дополнительных специальных окон. Стоят они недешево, но вполне окупают тот панорамный вид на звезды, который открывается после их установки.




Оптимизация пространства небольшой площади до 30 кв.м.
Основная идея оптимизирования жилой площади – извлечь максимальную пользу от каждого свободного метра.
Чертежи и планировка небольших проектов предоставляют дополнительные возможности для обустройства помещения внутри. А разумный подход к расположению мебели – гарантия создания свободного пространства и уюта.
Дом 5х4
Минимальный размер строительного сооружения, чаще всего используется в качестве бани с предбанником, но не редкость и круглогодичное проживание.
Дома 4х5 строят из бруса, планировка здания предвидит одну основную внутреннюю стену, которая делит пространство помещения на 2 зоны: бытовая и зона отдыха.
Оптимизация пространства в домике исполняется с помощью многофункциональной мебели, а также при задействовании всех свободных уголков.
Например, расположение посуды и других предметов осуществляется на стеллажах, которые заблаговременно включают в план будущей постройки. Таким образом, отпадает необходимость установки габаритных тумбочек и кухонных шкафчиков.
Для оптимизации зоны отдыха используйте кровать небольших размеров со стойкой на 4 ножках. Так, пространство под кроватью послужит местом для горизонтальных шкафчиков (тумбочек для одежды).
Дополнительное пространство предоставляет проект дома 4 на 5 с мансардой. Мансарда подарит открытую площадку, которая станет хранилищем обуви хозяина или будет местом для летнего чаепития.
Пенобетонные сооружения редко предвидят в схеме разделительную стенку, поскольку она занимает много места, и без того маленькое помещение становится меньше. Поэтому законченное здание имеет только 1 комнату. Для оптимизации пространства используют дополнительные плиты ДСП или МДФ либо разделяют помещение на зоны с помощью мебели и шторок.
Дом 5х5
Размер здания ненамного больше предыдущего, соответственно и оптимизация помещения осуществляется аналогичными способами. Дополнительно дом из бруса 5 на 5 позволяет сконструировать так называемые «тайники», куда можно сложить малоиспользуемые вещи.
Например, в бытовой зоне, где предположительно будет кухня, в полу делают кладовку. Такую же кладовую можно внести в проект дома 5 на 5 с мансардой, которая послужит укрытием для хранилища, расположенного внутри лестничного подъёмника.
Для хранения вещей применяют и саму лестницу, пусть даже в 3 ступеньки. Нужно всего лишь ступеньки делать со съёмными поверхностями, а основу выложить из досок. В таких «хранилищах» хозяюшка может прятать бытовые предметы (веники, совки, швабры), а мужчина спрячет запчасти от машины или садовую электротехнику.
Выгоднее сразу при проектировании жилья выделить место под террасу, которую можно использовать в качестве летней кухни.
Дом 5 на 5 из пеноблоков выгоднее сооружать в 2 этажа, обустроив бытовую зону на 1 этаже, а комнату для отдыха – на верхнем ярусе. При разумной обстановке и грамотном использовании пространства 2-й этаж дополнительно делится на зоны.
Приоритетным вариантом для небольших домов является объединение санузла в 1 цельное помещение. Все нюансы и дополнительные зоны желательно заранее вносить в проектировочный план жилья.
Дом 5х6
Проект дома 5 на 6 предусматривает использование мебельных комплектов, которые занимают пространство возле смежных стен по периметру дома. Такими предметами быта считают комплект кухонной или спальной мебели с угловым переходом. При использовании углового комплекта, на кухне появляется место для размещения гостей, сохраняя при этом пространство помещения.
Угловая мебель под сидения имеет дополнительные ящики, которые позволят хозяйке хранить там редко используемый, объёмный кухонный инвентарь. Спальную часть помещения из бруса 5 на 6 можно также обставить раздвижной мебелью. Так, поставив вместо кровати мягкий раскладной диван, можно не только оптимизировать пространство, но и разместить гостей за праздничным столом, который до этого походил на небольшой журнальный столик.


















































