Если квартира приобретена в ипотеку
Права владельца в этом случае ограничены, так как квартира находится под залогом у банка. Изменение конфигурации жилья может быть запрещено либо все работы должны согласовываться с банком. При предоставлении документации для согласования в уполномоченные органы необходимо будет предоставить письменное согласие банковской организации. Для этого также нужно подать заявление и заплатить комиссию за его рассмотрение (в среднем, 2000 – 5000 рублей). Понадобится согласие от страховой компании. Если по ипотечному договору подобная процедура согласования работ с банком не предусмотрена, гражданину необходимо сначала полностью погасить кредит, а затем проводить работы по перепланировке жилья.
Процедура перепланировки квартиры довольно дорогостоящая. Необходимо будет потратиться на разработку проекта и его узаконивание. Полная стоимость будет зависеть от места расположения квартиры, типа собственности, перечня организаций, чье разрешение потребуется. Легализация самовольной перепланировки обойдется существенно дороже, с учетом уплаты всех штрафов и оформления бумаг.
Зачем столько ограничений: как быть с правами на собственность?
Собственники, которые в силу различных законодательных ограничений не могут перепланировать квартиру так, как это было задумано, возмущаются тем, что государственные структуры ограничивают права собственников жилья. Законодатели объясняют, что ограничения призваны защитить целостность конструкций дома от возможных разрушений, к которым могут привести непродуманные и неправильные с точки зрения строительных норм изменения. Таким же образом запреты позволяют исключить нанесение ущерба соседям, если речь идет о изменениях в инженерной инфраструктуре здания.
Если владелец жилья не является специалистом по строительству и не знает все тонкости инфраструктуры, он не сможет точно определить ожидаемую нагрузку на базовые конструкции с учетом технического состояния конкретного дома. Нередки случаи, когда перепланировка ставит под угрозу само здание или имеет следствием нарушение гидроизоляции, вследствие чего постоянными становятся утечки и прочие проблемы.
Чтобы расширить полезную площадь, многие владельцы квартир мечтают о том, чтобы вынести батареи и даже трубы водопровода на предварительно обустроенный балкон или лоджию. Однако это категорически запрещено, так как прямым следствием может стать промерзание жилого помещения или разрыв труб, в результате чего весь многоквартирный дом рискует остаться без отопления. В этом случае от владельца незаконно перепланированного жилья могут, помимо прочего, потребовать возмещения ущерба всем, кто пострадал в результате перепланировки.
Если перепланировка была выполнена без согласований, но при этом и без нарушения действующих нормативов, достаточно высоки шансы ее узаконить или признать законной в судебном порядке. При этом придется проходить стандартную процедуру, но уже в осложненном и более дорогостоящем варианте. Поэтому разумнее все же узаконить перепланировку изначально, чтобы затем уже с чистой совестью приступать к выполнению работ.
Свободная планировка не такая уж свободная
Невероятно, но факт
Юридически вообще не существует такого понятия, как «свободная планировка».
Начать нужно с расстановки точек над “i” в вопросе о свободных планировках. Квартиры со свободной планировкой сейчас занимают большую часть рынка недвижимости, это предложение воспринимается покупателями как преимущество – они думают, что со свободной планировкой им доступны любые смелые идеи и дизайнерские решения. Но это не совсем так.
Если вы посмотрите на поэтажный архитектурный план или на план БТИ, то увидите там такую же планировку, как и в обычной квартире – вот санузел, вот комната, вот кухня. А посетив уже готовую квартиру в новостройке, якобы «рекомендованную» планировку вы увидите ещё лучше – на месте будущих стен, скорее всего, будет выложен кирпичный ряд. И в случае, если вы захотите этот ряд сместить, подправить или вообще убрать – это и будет перепланировка. Так что начать её гораздо легче, чем кажется – можно и самому не заметить.

Таким образом, свободная планировка – не столько преимущество, сколько недостаток. Ремонт придётся брать в свои руки, а свобода творчества будет изначально ограничена. В плюсе, грубо говоря, окажется только застройщик, который просто передаст некоторые свои обязанности (например, по возведению стен) радостному покупателю.
Допустим, вы всё-таки не собираетесь ни перед чем останавливаться в создании квартиры своей мечты, и готовы сделать перепланировку где и как угодно. Сначала не забудьте сообщить о своём решении, чтобы потом не получить предписание (кстати, даже в таком случае всё равно нужно будет заплатить штраф – до двух с половиной тысяч рублей). Если обнаружится факт проведения несогласованной перепланировки, вас могут попросить вернуть всё в исходное состояние – а в 2013-м году в Москве даже был случай, когда за демонтаж несущей стены квартиру отсудили у собственников. В общем, узаконенная перепланировка по итогу наверняка обойдётся вам гораздо дешевле.
Конечно, некоторые небольшие изменения в квартире можно провести, не заявляя о них в соответствующие надзорные органы, но и не нарушая при этом закон. А именно:
-
устанавливать остекление на балконе или лоджии, не изменяя при этом фасад,
-
заменять ванну на душевую кабину,
-
сносить перегородки, не являющиеся несущими,
-
заделывать, переносить, расширять и уменьшать дверные проёмы во внутренних перегородках квартиры, если они не несущие и не межквартирные,
-
перемещать кухонную плиту в пределах кухни.
Кроме того, поклейка новых обоев, замена окон или установка новой сантехники, естественно, тоже в согласовании не нуждаются.

Заявить придется о таких работах, которые изменяют внутреннюю конфигурацию помещения. То есть, без согласования нельзя:
-
увеличивать или уменьшать число или площадь имеющихся комнат,
-
устраивать дополнительные подсобные помещения,
-
производить какие-либо изменения с инженерными коммуникациями,
-
оборудовать новые или переносить имеющиеся санузлы.
О таких работах следует не только заявить – для них придётся разработать проектную документацию, а для неё получить техническое заключение о том, что перепланировка в вашей квартире возможна. Если не хочется заниматься согласованием перепланировки самостоятельно, сейчас полно организаций, которые с радостью (пусть и не бесплатно) возьмут эту работу на себя.
Итак, перепланировка возможна, желаема и разрешена. Приступим?
Действующие законы и нормативные акты

Проведение перепланировки квартиры требует соблюдения действующего законодательства.
В России есть ряд нормативных актов, которые регламентируют стандарты перепланировки квартир, нарушать которые нельзя:
- строительные и санитарные нормы (СНиП, СанПиН),
- ГОСТы, своды правил (СП).
Общие положения прописываются в ЖК РФ, где указано, что подразумевается под понятием перепланировка квартиры.
Согласно закону, перепланировка – изменение формы помещения, предусматривающее внесение данных в технический паспорт.
Нет общего федерального закона о перепланировке, поэтому каждый субъект РФ имеет свои региональные законы. В любом случае, переустройство жилья должно согласовываться с местными органами власти.
Переустройство квартиры включает в себя следующие изменения:
- размеров помещения,
- расположения коммуникаций,
- любых параметров, отмеченных в паспорте квартиры.
Список всех действий, подлежащих согласованию, перечислен в ст. 25 и 26 ЖК РФ. Если владелец квартиры во время проведения ремонта нарушит нормативы, то он будет привлечен к ответственности по ст.7.21 и 7.22 КоАП РФ.
В 2017 году в закон о перепланировке серьезных изменений внесено не было. Среди нововведений следует отметить, что теперь заявитель может не предоставлять техпаспорт на помещение и заключение органа, осуществляющего охрану памятников культуры.
Документ на право владения жильем должен быть зарегистрирован в ЕГРН, если это так, то его также можно не подавать.
Кроме этого сокращено число инстанций, в которых необходимо проводить согласование, отменено согласование некоторых работ, ранее считавшихся переустройством жилья.
Не надо согласовывать свои действия при установке кондиционера, остеклении балкона или лоджии, перестановке встроенной мебели.
Положение о переустройстве и перепланировке жилых помещений
Согласно ЖК РФ региональные власти самостоятельно утверждают «Положение о переустройстве и перепланировке жилых помещений».
Согласно этому документу, а также другим правовым актам, и проводится переустройство жилья. Указанное положение разрабатывается местными властями, но оно не должно противоречить Жилищному и Гражданскому кодексу РФ.
Этот правовой акт предусматривает порядок получения документа о разрешении на переустройство квартиры или отказ в проведении перепланировки.
Оговариваются в нем и правила приемки перестроенной квартиры.
Варианты перепланировки: форматы жилья и технические нормативы
Даже при условии жестких нормативных ограничений у собственников жилья есть немало возможностей для внесения изменений в конфигурацию квартиры. Уже разработано немало типовых проектов для перепланировки разного вида жилья, и при желании можно воспользоваться ими, слегка оптимизировав под свои нужды. Многие интересные решения можно обнаружить на профильных сайтах, в открытом доступе имеются описания работ, а также методики контроля их проведения.
Стоит помнить о том, что, создавая ваше жилье, проектировщики реализовывали собственный замысел, и прилагали усилия, чтобы добиться единства всех систем, взаимной связи помещений в плане функциональности, а также оптимального распределения нагрузки на несущие конструкции. Задумав перепланировку, собственник жилья, в любом случае, ставит под сомнение первоначальную логику. Достичь желаемого результата можно лишь в том случае, если удастся найти новый баланс между площадями и размещением помещений, их назначением и эксплуатационными возможностями.
Варианты перепланировки во многом зависят также от типа жилья и степени износа. В «хрущевке» проекты и виды работ могут оказаться несколько иными, чем, например, в «сталинке». Так, если собственник желает объединить две квартиры в старом доме (но не принадлежащим к категории «ветхих» или «аварийных»), скорее всего, с получением разрешения у него возникнут сложности. В то время как во многих новостройках это можно делать беспрепятственно, поскольку проектировщики изначально предусмотрели такой вариант перепланировки.
Создавая из одного большого помещения две маленькие комнаты, необходимо позаботиться, чтобы в каждую из них попадал дневной свет – идею кабинета с искусственным освещением никто не одобрит. Хороший вариант – неполные перегородки или раздвижные системы, позволяющие при необходимости снова объединять помещения.
На пике популярности в квартирах разного типа – создание студий путем объединения разных зон и создание гостиных-столовых с включением кухонной зоны в жилое пространство. Теоретически это возможно, но если на кухне газовая плита, придется позаботиться о наличии двери, изолирующей это помещение от жилых комнат. Опытные дизайнеры знают множество хитростей и подходов к перепланировке самых, казалось бы, неудачных квартир.
Варианты перепланировки квартир различной площади
Среди самых радикальных решений расширения жилплощади стоит выделить создание квартиры студии. Для этого все стены, которые не являются несущими (за исключением стен санузла), сносят и заменяют легкими полупрозрачными перегородками. Такой вариант отлично подходит, если в квартире проживает один человек или молодая пара.
Рассмотрим различные варианты перепланировки трех-, двух- и однокомнатной квартиры.
Перепланировка трехкомнатной квартиры в хрущевке
Перепланировка трехкомнатной квартиры в панельном доме займет у вас немало сил и времени. Поэтому перед тем как начинать монтаж, разработайте максимально детальный план и согласуйте его с соответствующими службами. Это поможет вам избежать лишних хлопот и сэкономить на стоимости перепланировки квартиры.

Трехкомнатная квартира до и после перепланировки
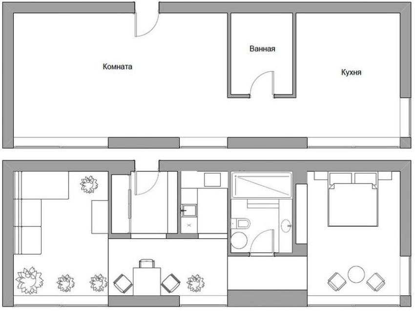
Но что, казалось бы, можно улучшать в квартире, где есть целых 3 комнаты? Часто бывает, что проживая вдвоем или втроем, семья не нуждается в таком количестве комнат, а вот размеры кухни оставляют желать лучшего. В таком случае производят (как видно на многочисленных фото) перепланировку 3-х комнатной квартиры хрущевки, совмещая смежную жилую комнату с кухней. Примеры удачных решений для квартир этого типа вы можете увидеть на фото перепланировки 3-комнатной квартиры 64 кв. м или другой площади.
В процессе перепланировки квартиры, объединение кухни и комнаты в одну зону происходит практически безболезненно. Все, что вам для этого необходимо – сделать согласование перепланировки квартиры самостоятельно.
Особое внимание стоит уделить перепланировке 3-х комнатной квартиры серии П-44Т. В квартире такого типа есть лоджия, которая может отлично способствовать расширению пространства

Совмещение в хрущевке кухни и гостиной позволило получить просторную обеденную зону
Варианты перепланировки двухкомнатной квартиры
Наиболее часто встречающиеся в интернете – фото перепланировки 2-х комнатной квартиры хрущевки, демонстрирующие полное или частичное объединение всего пространства. Однако для семей с детьми этот вариант практически не рассматривается, поскольку перепланировка двухкомнатной квартиры в хрущевке призвана повысить уровень комфорта, а не наоборот.
В квартире, где 2 комнаты смежные, вариантов перепланировки (фото хрущевок хорошо демонстрирует такой тип квартир), не так уж и много. Здесь нужно подумать о том, есть ли вариант безболезненно разделить комнаты с помощью, например, небольшого холла или гардеробной, или же придется кардинально все менять. В любом случае вам придется пожертвовать в процессе обустройства частью площади одной из комнат. Но, в данном случае, оно того стоит.
Одним из удачных вариантов перепланировки 2-х комнатной квартиры является разделение большой комнаты на две маленьких. Это отличное решение для семьи с двумя разнополыми детьми, у каждого из которых появится возможность иметь свою отдельную комнату. Вторая комната в этом случае отводится под спальню родителей. Кухне предстоит выполнять роль и гостиной, поэтому ее целесообразно объединить с лоджией или балконом.

Пример перепланировки двухкомнатной квартиры 60 кв.м в трехкомнатную
Перед тем как принять окончательное решение, просмотрите как можно больше фото перепланировки 2 х комнатной квартиры хрущевки, представленные в интернете.
Перепланировка однокомнатной квартиры в хрущевке
Как ни удивительно, но возможно сделать и перепланировку однокомнатной квартиры. Фото удачных решений доказывают целесообразность таких вложений. Вариантов перепланировки однокомнатной квартиры достаточно много, и все они направлены на визуальное и фактическое расширение пространства.
В зависимости от цели, которой вы добиваетесь, действовать можно в двух направлениях:
- перепланировка студии в однокомнатную квартиру;
- перепланировка однокомнатной квартиры в двухкомнатную.

Удачная перепланировки однокомнатной квартиры площадью 50 кв.м
Также бывает наоборот, когда хозяева хотят сделать из однокомнатной квартиры студию. В этом случае действовать нужно по стандартной схеме объединения кухни и комнаты. Образец проекта перепланировки квартиры такого типа несложно найти в интернете. Цена проекта перепланировки квартиры этим способом является самой низкой.
Если планировка вашей квартиры не совсем соответствует вашим пожеланиям, то это можно изменить. Достаточно собрать все необходимые документы и провести перепланировку. Конечно, это займет немало сил и времени, однако вы сможете расширить ту часть квартиры, которая наиболее востребована именно в вашей семье. А это, безусловно, положительно скажется на вашем комфорте проживания в ней.
Решение проблемы через суд
Согласовать незаконную перепланировку может быть очень сложно. В некоторых случаях МФЦ (Мои документы) будет категорически отказываться предоставлять положительное решение. Если для этого на самом деле нет никаких оснований, можно попробовать решить проблему через суд. То же самое верно и в том случае, если не согласовывают проект еще не выполненной перепланировки.
Порядок действий
О том, зачем узаконивать перепланировку было сказано уже выше – в противном случае можно лишиться своей недвижимости, пусть это и самый крайний случай, до которого на самом деле доходит очень редко. Если же в МФЦ отказываются согласовывать перепланировку, придется выполнять следующие действия:
- Получить письменный отказ в МФЦ.
- Собрать документы.
- Подготовить исковое заявление.
- Направить иск и документы в суд.
- Оплатить госпошлину.
- Получить решение суда.
- Дождаться, пока решение вступит в силу.
- С решением и документами обратиться в МФЦ.
- Получить разрешение на перепланировку.
- Произвести перепланировку и оформить новый техпаспорт.
Документы
Для обращения в суд потребуются такие бумаги:
- Исковое заявление.
- Квитанция об оплате госпошлины.
- Паспорт заявителя.
- Документы на квартиру.
- Техпаспорт.
- Отказ, полученный в МФЦ.
- Проект перепланировки.
- Доверенность представителя и его паспорт.
Расходы
Обращение в суд тоже стоит денег, хотя на фоне основных затрат на согласование перепланировки сумма будет крайне незначительной. Оплатить придется только госпошлину в размере 300 рублей (). Следует отметить, что если заявитель планирует пользуется услугами представителя, нужно заранее предусмотреть в доверенности возможность выступать в качестве доверенного лица в суде. В противном случае придется оформлять еще одну доверенность за очередные 2-5 тысяч рублей.
Пример: Собственник квартиры не мог заниматься вопросами согласования самостоятельно и попросил об этом друга. Была оформлена доверенность за 3 тысячи рублей, согласно которой друг мог представлять интересы доверителя при сборе документов и предоставлении их в МФЦ. Про суд не было ни слова. Как следствие, если понадобится обращаться в судебную инстанцию, потребуется новая доверенность, что предполагает дополнительные расходы в размере тех же 3-х тысяч рублей.
Сроки
Срочно согласовать все и оформить документы невозможно. Даже если заранее подготовить все бумаги, заявление будет рассматриваться в МФЦ 45 дней. Иногда срок бывает несколько меньше, но лишь в редких случаях он составит менее 1 месяца. Причем все это время заявление не лежит просто так. Запрашиваются заключения контролирующих структур, проводится анализ полученной информации и так далее.
В случае с обращением в суд, к указанным выше срокам стоит добавить еще 3 месяца на то, чтобы обратиться в суд после получения отказа, 2 месяца на рассмотрение дела и 1 месяц на то, чтобы дождаться, пока решение суда вступит в силу.
Существуют различные фирмы, которые заявляют, что сделают все вместо клиента за пару дней. Иногда – это действительно правда. Но чаще всего такие компании просто обманывают людей, берут деньги и ничего не дают взамен, ссылаясь на некие неожиданные обстоятельства. Пользоваться услугами подобных компаний или нет – дело каждого.
Варианты перепланировки: форматы жилья и технические нормативы
Даже при условии жестких нормативных ограничений у собственников жилья есть немало возможностей для внесения изменений в конфигурацию квартиры. Уже разработано немало типовых проектов для перепланировки разного вида жилья, и при желании можно воспользоваться ими, слегка оптимизировав под свои нужды. Многие интересные решения можно обнаружить на профильных сайтах, в открытом доступе имеются описания работ, а также методики контроля их проведения.
Стоит помнить о том, что, создавая ваше жилье, проектировщики реализовывали собственный замысел, и прилагали усилия, чтобы добиться единства всех систем, взаимной связи помещений в плане функциональности, а также оптимального распределения нагрузки на несущие конструкции. Задумав перепланировку, собственник жилья, в любом случае, ставит под сомнение первоначальную логику. Достичь желаемого результата можно лишь в том случае, если удастся найти новый баланс между площадями и размещением помещений, их назначением и эксплуатационными возможностями.
Варианты перепланировки во многом зависят также от типа жилья и степени износа. В «хрущевке» проекты и виды работ могут оказаться несколько иными, чем, например, в «сталинке». Так, если собственник желает объединить две квартиры в старом доме (но не принадлежащим к категории «ветхих» или «аварийных»), скорее всего, с получением разрешения у него возникнут сложности. В то время как во многих новостройках это можно делать беспрепятственно, поскольку проектировщики изначально предусмотрели такой вариант перепланировки.
Создавая из одного большого помещения две маленькие комнаты, необходимо позаботиться, чтобы в каждую из них попадал дневной свет – идею кабинета с искусственным освещением никто не одобрит. Хороший вариант – неполные перегородки или раздвижные системы, позволяющие при необходимости снова объединять помещения.
На пике популярности в квартирах разного типа – создание студий путем объединения разных зон и создание гостиных-столовых с включением кухонной зоны в жилое пространство. Теоретически это возможно, но если на кухне газовая плита, придется позаботиться о наличии двери, изолирующей это помещение от жилых комнат. Опытные дизайнеры знают множество хитростей и подходов к перепланировке самых, казалось бы, неудачных квартир.
Что запрещено?
Перечисленные ниже запрещенные виды изменений по СНИПам также, как и разрешенные варианты, указанные выше, также не являются абсолютно исчерпывающим списком. Однако ориентироваться стоит именно на представленные ограничения:
- Переносить газовую плиту в жилое помещение. Сюда также относится вариант с объединением кухни и другого жилого помещения. Это возможно только при условии, что на кухне не используется газовое оборудование. Например, установлена только электрическая плита.
- Снос несущих элементов, включая сюда как стены, так и балки, опоры или любые другие типы аналогичных конструкций.
- Уничтожение вентиляции или ее разрушение любым другим способом (пусть даже и не намеренное).
- Изменение площади ванной, туалета, балкона или лоджии за счет жилых помещений. Как следствие, можно изменить площадь указанных объектов за счет, например, коридора (нежилое помещение), но нельзя это сделать за счет зала, спальни, гостиной и так далее. Следует учитывать, что это правило действует в обе стороны. Так, например, нельзя не только увеличить площадь балкона за счет зала, но также нельзя и увеличить зал за счет балкона.
- Любые работы в помещениях, из-за которых будет ограничен доступ к общим коммуникациям. Например, нельзя зашивать трубы в коробку так, чтобы ее нельзя было быстро снять или открыть.
- Полностью переносить кухню на территорию любого жилого помещения.
- Размещение приборов отопления, включая сюда как батареи, так и теплый пол на балконах и лоджиях.
- Любые работы по перепланировке в квартирах, которые находятся в аварийных домах, запланированных под снос в течение ближайших трех лет. В этом правиле есть исключения. Например, если в результате перепланировке общая прочность конструкции увеличится – такие изменения согласуют.
- Любые работы по перепланировке без получения согласия со стороны всех совладельцев жилья. Также сюда относятся и любые работы, которые могут затронуть интересы соседей без их согласия.
- Любые работы, в результате которые пожарная безопасность снизится.
- Любые работы, в результате которых фасад станет хуже выглядеть и/или снизится его прочность.
- Любые работы, затрагивающие специализированные помещения дома. Например, нельзя трогать помещения, которые находятся под контролем Штаба ГО (Гражданская оборона) без предварительного согласования с начальником этого Штаба.
- Нельзя замуровывать газовые коммуникации в стены.
- Замуровывание окон, в результате чего будет полностью ликвидирован доступ к естественному освещению в помещение.
- Минимальная площадь одной комнаты, образованной в результате перепланировки не должна быть меньше 9 кв.м. (по ширине – не менее 2,25 метра).
- Расширение подсобных помещений за счет жилой площади.
- Любые работы, идущие вразрез с общим архитектурным стилем строения (актуально только относительно работ, затрагивающих внешнюю часть дома).
Подобных ограничений очень много. Перечислены далеко не все. Чтобы не получить отказ от согласования перепланировки, рекомендуется обращаться за составлением проекта перепланировки в специализированную компанию.
Процедура согласования перепланировки
Заказать проект
Поскольку к заявлению в Межведомственную комиссию по техническому надзору администрации, должен быть приложен проект, о наличии которого вы должны позаботиться заранее. Обратившись в частную компанию по организации и выполнению ремонтных работ, можно заказать составление проектной документации по вашему жилому объекту.
Специалисты, осмотрев объект, подскажут, можно ли в вашем случае разрушить перегородки, перенести кухню (иногда, если квартира находится на первом этаже, это могут разрешить), соединить туалет с ванной, с какими трудностями может быть связано получение разрешения. Стоимость проектной работы варьируется от 10000 до 150000 рублей.
Получение согласия от проживающих и если требуется соседей
Нужно получить согласие от проживающих совместно с заявителем граждан, а если жилье коммунальное – от всех соседей. Кроме того, от соседних квартир понадобится письменное согласие, если каким-то образом затрагиваются их интересы: например, при изменении фасада, а также конструкций, соединенных с местами общего пользования, многоквартирного дома.
Образец согласия на перепланировку
СОГЛАСИЕ
На перепланировку квартиры
Я, Петрова В.В., проживающая по адресу: г.________, ул.___________, д.___, кв.____, являющаяся собственником ½ доли указанной квартиры, паспорт серии____ номер____ выдан 01.01.2016 ОУФМС ______района, не возражаю против планировки в данной квартире, согласно представленному Петровым П.П. проекту.
Для представления по месту требования.
Подпись _____________ дата _____________
Обращение в в Межведомственную комиссию по техническому надзору с заявлением
Первое, что нужно сделать – написать заявление в Межведомственную комиссию по техническому надзору администрации населенного пункта, где вы проживаете.
Образец заявления о перепланировке
В Межведомственную комиссию по техническому надзору
администрации Ленинского района
г.________________(указать)
Петрова П.П., проживающего по адресу:
г._______________(указать), ул._________, д.___, кв.___(указать)
тел.______________(указать)
ЗАЯВЛЕНИЕ
о перепланировке жилого помещения
Прошу выдать мне разрешение на перепланировку (проект прилагаю) квартиры, находящейся по адресу:________(указать), площадью _____м2, состоящей из трех комнат, двух санузлов и двух лоджий.
Данная квартира принадлежит мне на праве собственности.
Ремонтные работы запланированы в объеме, соответствующем проекту, с 01.01.2018 г. по 01.03.2018 г., ежедневно с 08:30 до 17:00, кроме выходных.
Обязуюсь обеспечить доступ должностных лиц в указанное жилое помещение для контроля работ и соответствия проектной документации.
Приложение: копия права собственности;
- копия домовой книги;
- копия проекта;
- копия технического паспорта на жилое помещение;
- акт о техническом состоянии квартиры;
- согласие всех проживающих лиц.
Петров П.П. ___________ подпись _________ дата.
Перечень документов, которые необходимо приобщить к заявлению, не исчерпывающий: можно также приложить копии любых правоустанавливающих материалов, а также документы, подтверждающие проживание членов семьи по адресу, где находится квартира.
Получение заключения
После рассмотрения заявления (на это отведено 45 дней), вам должны выдать заключение о возможности проведения перепланировочных работ или об отказе. Основаниями для отказа могут быть не только запрещенные законом изменения конструкций, но и состояние самого дома, а также проведенные ранее существенные изменения несущих конструкций в соседних квартирах. Так, если выездная бригада установит опасность обрушения здания, в выдаче заключения о возможности перепланировки будет обоснованно отказано.
При отсутствии препятствий для проведения заявленных работ, можно, с учетом мнений ТСЖ (ЖЭКа) приступить к ремонту. Иногда необходимо дополнительно получить согласие других органов. К примеру, если планируемые изменения касаются переноса газовой плиты, должно быть дополнительное согласование с представителем газовой службы. Или, допустим, дом является памятником истории, тогда согласие необходимо от комитета культуры.
После выполнения работ комиссией составляется акт, который является основанием для внесения изменений в технический паспорт квартиры, а при необходимости в госреестр.
Перепланировка квартиры: что нельзя делать
На законодательном уровне запрещается перепланировка, последствием которой могут стать:
- Ухудшение условий эксплуатации дома и проживающих в нем граждан. Сюда относятся затруднение доступа к различным инженерным коммуникациям;
- Переустроенное или прилегающее к нему помещение в результате перепланировки становится непригодным для проживания;
- В ходе перепланировки затрагиваются помещения, состоящие на учебе штаба по чрезвычайной ситуации, без получения разрешения начальника такого штаба;
- Ухудшение прочности и устойчивости несущих конструкций, в результате чего может произойти их обрушение;
- Происходит установка регулирующих или полностью отключающих устройств на общие домовые сети;
- Уменьшение количества вентиляции;
- Увеличение нагрузки на несущие конструкции сверх установленной проектом этого дома нормы.
При перепланировке в панельных домах, не допускается:
- Вырубка ниш и устройство различных проемов;
- Штрабление в швах дома;
- Устройство различных проемов в стеновых панелях, а также любых смежных по высоте помещениях.
Если подобная перепланировка планируется без проекта, необходимо проведение дополнительной экспертизы.
Некоторые ограничения, обязательные к соблюдению при перепланировке:
- Проведение перепланировки не должно происходить без получения согласия от владельца квартиры;
- Перепланировка должна проводиться с согласия всех совершеннолетних собственников этой квартиры;
- Не допускается проведение мероприятий, которые нарушают установленные на законодательном уровне требования санитарно-гигиенических, строительных и технических документов;
- Не допускается проводить перепланировку, в результате которой будет нарушен архитектурный облик дома;
- Запрещено проводить мероприятия, требующие оформления и реализации в порядке, присущем для проведения реконструктивных работ жилого дома;
- Запрещается самостоятельное устройство балконов, козырьков и эркеров, без получения соответствующего разрешения на проведение таких работ;
- Запрещается самостоятельное создание эркеров.
Если запланированная вами перепланировка возможна, следует внимательнее рассмотреть специальную документацию, касающуюся этого вопроса.
Как сделать студию из комнаты в коммуналке
Легализовать «кухню в комнате» и индивидуальный санузел вы можете только в том случае, если под ними нет жилых комнат. Таким образом, верный шанс сделать все по закону есть только у тех, чья квартира расположена на первом этаже, а также на втором или (реже) на третьем, если под ней находятся только объекты нежилого фонда – офисы и магазины.
Комнаты от 20 кв. м в домах старого фонда смотрите в нашем каталоге
В остальных случаях, чтобы, поступившись фрагментом просторной комнаты, разместить в ней «удобства», вы можете выкрутиться за счет легких разборных «недоперегородок» и мобильной кухни-островка с микроволновкой. Легализовать подвод воды и установку сантехприборов, увы, не получится. Если они установлены нелегально – придется пользоваться аккуратно, а в случае ЧП «задабривать» соседей снизу. Конечно же, это сомнительный выход.
Совет
Вне зависимости от того, собираетесь ли вы делать перепланировку или просто ремонт в комнате старого фонда, сделайте вентиляцию: приточную (клапан, встраиваемый в стену или окно) и вытяжную (для этого поищите в стенах дымоходы – возможно, они сохранились). Это заметно улучшит качество жизни в коммуналке.
















































