Проекты с пристроенным гаражом
Среди проектов домов и коттеджей наиболее востребованы, как способ одновременного разрешения сразу двух проблем. Еще недавно в тренде было размещать машину под капитальным навесом, однако он не предохраняет машину от природных воздействий и создает дополнительные сложности в сооружении.
Дом с террасой и гаражом
Построен из кирпича, общей площадью в 279 квадратных метров, поэтому под силу людям с хорошими финансовыми возможностями. Он потребует не только большой стройплощадки, но и затрат на балконы и террасу, в совокупности занимающих 33 квадратных метра. Чердачная крыша, отделка лицевым кирпичом, фальцевая кровля придают ему дорогой и стильный вид, но некоторые потребители недовольны отсутствием цоколя, хотя, возможно, эта особенность продиктована необходимостью создания единого целого с гаражом.

В доме есть 3 спальни, у одной из которых – собственная ванная и гардеробная, а у двух они находятся в совместном пользовании. Просторный гараж, постирочная и котельная находятся в противоположном крыле, там же, где и столовая, гостиная и холл.

Среди проектов одноэтажных домов и коттеджей, бесплатно предоставленных потребителю, выгодно выделяется габаритами и внешним видом, но назвать такой проект бюджетным и бесплатным сложно из-за использованных стройматериалов, особенностей постройки и декоративных элементов.
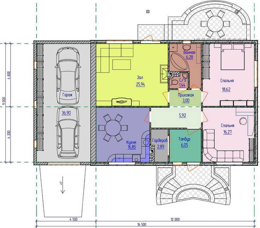
Проект №3 — «Z200»
Среди предоставленных бесплатно фото одноэтажных домов позиционируется, как пример особенно удачно спланированной постройки загородного дома, предназначенного для отдыха с приехавшими гостями. Гараж рассчитан на два автомобиля, поэтому аккуратная и стильная постройка может использоваться, как жилой дом в пригороде, где машина есть у каждого супруга.

По сравнению с предыдущим проектом, он небольшой – всего 170 квадратных метров, но зато гараж выступает перед фасадной стеной и позволяет перейти в жилые помещения сразу из автомобиля по крытому переходу. Это особенно удобно в дождливую погоду. Комфортность такой планировки усугубляет прихожая, которая оснащена шкафом купе и расположена рядом с небольшим подсобным помещением.
Есть и другие приятные особенности – кладовая рядом со столовой, раздвижная стеклянная дверь между гостиной и кухней, крытая терраса и три раздельные спальни, в которые можно пройти из просторного коридора.

В качестве наглядных примеров приведены фото новинок, разработанных архитектурными бюро по самым частым запросам потребителей. Это только эскизы того, как может выглядеть одноэтажный дом, на который потрачено чуть больше денег, чем при режиме строгой экономии. Авторы проекта могут перепроектировать применение строительных материалов, планировку, расположение террасы или подсобных помещений, добавить или убрать количество входов.
Что касается бюджетных проектов небольшой площади, то они всегда востребованы, но отличаются меньшей индивидуальностью, хотя и предусматривают намного меньше расходов. Каждый человек, намеренный строить собственное жилище может объяснить архитектору, чего он хочет от будущего дома, или попросить внести изменения в уже распланированную заготовку.
Post Views: Статистика просмотров
237
Преимущества дома с гаражом
Расположение гаражного отделения на территории дома имеет массу преимуществ. Как мы уже говорили – это возможность значительно сэкономить территорию придомового участка, которую в дальнейшем можно использовать под оформление клумбы, зоны отдыха или других необходимых построек. Кроме того, стоящий отдельно гараж не будет портить эстетику ландшафтного дизайна, а аккуратно вымощенная дорожка, ведущая к нему, поможет содержать газон в порядке. Также преимуществами обустройства гаража в доме являются следующие моменты:
— Наиболее эффектное решение проблемы стоянки автомобиля, вследствие которого авто будет защищено от непогоды и угонщиков;
— Возможность проводить ремонтные работы с комфортом в любое время года;
— Возможность использования крыши гаража для обустройства террасы, оранжереи и т. п.;
— Внутренняя обстановка гаража может включать небольшую мастерскую, систему хранения, куда можно свободно перейти из теплого дома;
— Слияние гаража с домом экономит расходы на строительство, так как не нужно возводить второй фундамент с коробкой и кровлей, а помещение можно присоединить к единой системе отопления, водоснабжения и даже организовать здесь зону отдыха, небольшую кухню.
Помимо достоинств, расположения гаража в доме имеет и свои недостатки. В первую очередь, это риск проникновения неприятных запахов в жилое помещение. Чтобы этого избежать, рекомендуется провести в помещении гаража качественную систему вентиляции, а также обустроить небольшой коридор-тамбур, кладовую или котельную. Также нужно позаботиться о дополнительной шумоизоляции гаражного помещения.


Ключевые моменты строительства
Если человек решил возвести одноэтажный жилой коттедж с пристройками на собственном участке, понадобиться решить ряд важных вопросов, сопутствующих затее. Начинают работу с создания проекта, включающего чертеж, план одноэтажного строения. Но как его составить? Какие моменты при этом учитывать, а воздействие, каких факторов можно игнорировать?
Пример одноэтажного дома с гаражом.
Существует два способа составления проектов одноэтажного дома с гаражом:
-
Справиться со всеми актуальными задачами самостоятельно.
Наиболее экономный, но и сложный вариант, так как проектирование строений потребует достаточно глубоких профильных знаний. Ошибки в работе могу поставить под угрозу возможность проживания в жилом строении, пользования гаражом. Чтобы устранить недочеты потребуется новые материальные затраты, поэтому без полной уверенности в собственных силах идти этим путем, специалисты не рекомендуют. -
Воспользоваться помощью соответствующих строительных организаций, которые разрабатывают индивидуальные проекты на основе пожеланий заказчиков.
При таком расположении дел заказчик получает полное техническое описание строительного объекта, чертежи, описывающие характеристики всех деталей объекта, план дома со всеми подробностями.
Важно! Если принято решение самостоятельно разрабатывать проект, стоит воспользоваться помощью компьютерной программы. Многие пользователи отмечают ArchiCAD как качественный и функциональный продукт
Подобный подход предоставит вам возможность реализовать сокровенные фантазии, мельчайшие детали, оригинальные задумки.
Планы на будущее у всех людей разные. В любом варианте, стоит решить для себя, нужен ли вам уникальный проект или подойдут готовые проекты стандартного типа. Второй вариант отличается более низкой стоимостью для реализации, но может строиться не на всяком участке.
Это может быть простой вариант постройки проект 6х10 м или строение повышенной сложности, но рельеф участка придется учитывать в любом варианте. Готовые идеи оптимально реализовать на ровной территории, без особенностей ландшафта, грунта. В противном случае проект потребует корректировки.
Также важно при выполнении работы придерживаться следующих правил:
- рациональное планирование инженерных коммуникаций;
- наделение пространства автодома максимальным уровнем функциональности;
- выделение достаточного по площади свободного пространства;
- наделение жилой и гаражной площади высокой эргономичностью путем правильного планирования, разделения и максимального удаления жилой и хозяйственной части;
- организация и благоустройство приусадебного участка, подъезда к автодому.
Как выбрать оптимальный вариант? Будет ли это проект коттеджа с пристроенным или отдельным автодомом? А может выбрать вариант с гаражом, располагающимся под коттеджем?
Только после решения этих вопросов можно выполнять расчеты актуального количества строительного, отделочного материала, отправляться проводить закупки в магазины. Иначе можно ошибиться, закупив слишком мало материалов.
Поговорим о том, какие проекты одноэтажных коттеджей и пристройками в виду автодома, стоят внимание заказчиков, почему
Планировка коттеджа 10Х10
Один из типовых вариантов планировки пеноблочного коттеджа размером 10Х10 такой:
Перед входом располагается небольшая терраса, имеющая общее с домом основание. Она ведёт в прямоугольный холл, в конце которого находится лестница.

Слева от холла располагаются изолированные друг от друга кухня и гостиная. Справа находятся довольно просторная детская и совмещённый санитарный узел.

На втором этаже также предусмотрен холл, который проходит насквозь и ведёт на балкон. Справа от холла — две спальни, одна из которых имеет размер 5,5Х5, а другая 5Х4,5. Слева также две маленькие спальни размером 3Х4,5.

Такой дом вполне подходит для жизни семьи в 4-6 человек.

Материалы для строительства зданий с гаражом: фото домов и особенности проектов
Для строительства одноэтажного здания с гаражом могут использоваться различные материалы. Выбор зависит от бюджетных возможностей владельца, архитектурных особенностей здания, от самого проекта, а также свойств грунта, на котором будет стоять дом.
Для строительства домов используют кирпич, древесину и бетонные блоки
Для строительства загородного жилья обычно применяются такие материалы:
- кирпич;
- древесина;
- ячеистый бетон (газо- и пеноблоки).
Из каких блоков лучше строить гараж: проекты на основе газобетона и пеноблоков
Газо- и пенобетон представляют собой разновидности одного и того же материала – ячеистого бетона. Различие между ними заключается лишь в технологии изготовления, что в результате сказывается на технических и эксплуатационных параметрах этих блоков.
Проект одноэтажного блочного дома с гаражом для автомобиля
Материалы для строительства газобетонных зданий имеют стандартную толщину:
- 200 мм;
- 375 мм;
- 400 мм;
- 500 мм.
При разработке проекта одноэтажного дома с гаражом из пеноблоков или газоблоков обязательно нужно учитывать климатические особенности региона. Дело в том, что бетон обладает гигроскопичными свойствами, поэтому стены здания нужно защитить от воздействия неблагоприятных факторов окружающей среды. Для этого используются такие отделочные материалы, как:
- сайдинг;
- искусственный камень;
- облицовочный кирпич;
- декоративная штукатурка и т. д.
Газо- и пеноблоки идеально подходят для строительства одноэтажных зданий
Минимальная плотность материала – 300 кг/м². Этот показатель подбирается с учетом тех задач, для решения которых будут использоваться блоки. Например, для строительства несущих стен потребуются изделия, плотность которых составляет не меньше 400 кг/м². Перегородки внутри дома, не выполняющие несущих функций, можно соорудить из менее плотного материала, покупка которого обойдется дешевле.
Как реализовать проект одноэтажного дома с гаражом из кирпича
В проектную документацию таких зданий в основном закладывается силикатный или керамический кирпич. Выбор материал зависит от климатических особенностей региона, где будет располагаться дом. С учетом этого критерия толщина кладки на несущих стенах может варьироваться в пределах 250-640 мм.
Проект одноэтажного дома из кирпича с гаражом на два авто
Применение инновационных технологий, направленных на энергосбережение, позволяет снизить массу кирпича в стенах готового дома. Если проектом одноэтажного кирпичного дома с гаражом предусмотрена сплошная кладка внешних стен толщиной 640 мм, характеристики здания можно улучшить, изменив подход к его строительству. Для этого толщина кладки уменьшается до 250 мм, а в качестве утеплителя добавляется экструдированный пенополистирол (150 мм). Для отделки стен можно использовать облицовочный кирпич (120 мм).
Чаще всего для строительства загородных коттеджей применяется пустотелый керамический кирпич. Пустоты в изделиях, наполненные воздухом, усиливают теплосберегающие свойства кладки. Полнотелый кирпич в большей степени подходит для обустройства вентиляционных стояков. Этот вариант материала более эффективен, чем керамзитобетонные модули. Полнотелый кирпич также подойдет, если проектом предусмотрено наличие камина в доме.
Особенности проектов одноэтажных каркасных домов с гаражом
Дома, построенные по каркасной технологии, менее надежны и долговечны, чем кирпичные или газобетонные сооружения. Однако стоимость реализации подобных проектов гораздо ниже, а сроки ‒ значительно короче. Кроме этого, каркасные здания имеют относительно легкую конструкцию, поэтому их можно устанавливать на фундаменты столбчатого или свайного типа. Такие основания не требуют высоких затрат и возводятся очень быстро.
Строительство каркасного дома выйдет дешевле и быстрее, чем кирпичного или блочного
Проектная документация каркасных зданий обычно включает чертежи внешних и внутренних стен. Подробная информация обо всех нюансах конструкции просто необходима, поскольку она используется непосредственно в процессе строительства. Поэтому стоимость самих проектов может быть выше, чем в случае строительства кирпичных или газобетонных зданий.
Каркасные дома преимущественно имеют деревянную конструкцию. В качестве несущих стоек используется брус, который обшивается досками сечением 40х150 или 50х200 мм. На западе каркасные постройки очень популярны, однако у нас такие здания эксплуатируются лишь сезонно.
Выбору готового проекта или разработке нового нужно уделить немало времени. Чем тщательнее будет продумана планировка и учтены все нюансы, тем более удобным и комфортным получится дом в итоге.
Дома без гаража
С некоторых пор необходима регистрация построек на земельном участке, и в отношении гаража она обходится двумя способами – пристройкой для автомобиля к дому или сооружением отдельного строения без фундамента. Эти проекты без гаража предназначены любителям тишины и комфорта, не желающим слышать, как машина проезжает недалеко от окон и вдыхать выхлопы отработанного топлива. Предполагается, что гараж дистанцирован на достаточном расстоянии, но не капитален.
Проект дома AS-2071-2, недорогого и стильного
Бюджетный, но очень удобный, красивый с виду дом непременно станет предметом внимания прохожих и соседей из-за своего минималистически-экологического дизайна. Особенный вид ему придают слуховые окна округлой формы и деревянная облицовка, крыша, которая гармонирует по цвету с кованными перилами крылечка.

Оно не только дополнительная уютная деталь декора, но и средство оградить внутренность дома от уличной грязи, поэтому проект можно смело рекомендовать в регионах, где частные дожди туманы и слякоть.
В тамбуре у входа можно сразу оставлять верхнюю одежду и зонтики, переобуваться в домашнюю обувь. В холле достаточно места для платяных шкафов.

Планировку можно рассмотреть на приведенном чертеже.
Слева находятся просторная и светлая гостиная, расположенная рядом с кухней (это очень удобно и для семейных трапез, и для приема гостей). В левой части дома находятся две спальни и санузел
Одна их особенностей планировки – глухая стена без окон, которая позволяет ограничить назойливое внимание соседей и сэкономить площадь своего земельного надела, заботясь о соблюдении расстояний по СНиПам и строительным правилам
Дом AS-2300
Проект с общей площадью в 157,5 кв. м, особенно оригинально визуализирующийся на фото благодаря двум предусмотренным архитектором террасам с обеих сторон постройки. Авторы предусмотрели возможность внесения изменений в проект по использованным материалам или планировке, но именно эта особенность придает просторному дому уникальность и воздушность.

В нем есть котельная, с двумя входами, снаружи и внутри. Есть три спальни, причем одна даже с собственным санузлом, и еще отдельный общий кабинет для удобств. Предусмотрена кладовая, рядом с кухней, а в гостиной есть эркер. Хозяева могут сделать вместо трех спален детскую и кабинет или мастерскую (см. чертеж).

Проект одноэтажного дома создан с учетом максимального удобства жильцов, выверен по площади и эргономичен, поэтому смело рекомендуется как для семейной пары без детей, постоянно принимающей гостей, так и для семьи с двумя детьми, которая любит свежий воздух и уединение.
Стройматериалы – железобетонные плиты для монолитного фундамента, пеноблоки (газобетон) и мягкая черепица.
Выбор основных параметров дома
Чтобы вам легче было определиться с проектом, то заранее продумайте основные требования к дому вашей мечты. Так вы сможете подобрать идеально подходящий проект и не ошибиться.
Прежде всего определитесь с размерами участка. Какой его частью вы готовы пожертвовать ради дома? Хотите ли вы оставить место для сада или огорода или же планируете построить большое здание?
Основной параметр, о котором вам следует задуматься до начала подбора проекта — это площадь дома. Вы можете использовать приблизительные значения. Этот параметр представляет собой сумму всех отапливаемых помещений. И он очень важен для расчетов затрат на отопление.

Общая площадь дома включает в себя все постройки (отапливаемые и неотапливаемые), именно этот параметр поможет приблизительно оценить расходы на постройку дома.
Обратите внимание на состояние участка и его особенности. Большой перепад высот на месте, которое предназначено под застройку — повод проконсультироваться со специалистом
Также стоит решить вопрос с грунтовыми водами. Если уровень высокий, то позаботьтесь о дополнительной гидроизоляции.
Оцените желаемое количество комнат, также определитесь с количеством санузлов и кухонь. Если вам нужен встроенный гараж, то этот пункт также необходимо продумать заранее. Он влияет на планировку дома
Вам следует с особым вниманием отнестись к тем помещениям, для обустройства которых необходим вывод канализации, вентиляции и водопровода. После начала постройки перенос этих комнат потребует дополнительных расходов и будет сопряжен с заметными сложностями

Преимущества дома с гаражом
Расположение гаражного отделения на территории дома имеет массу преимуществ. Как мы уже говорили – это возможность значительно сэкономить территорию придомового участка, которую в дальнейшем можно использовать под оформление клумбы, зоны отдыха или других необходимых построек. Кроме того, стоящий отдельно гараж не будет портить эстетику ландшафтного дизайна, а аккуратно вымощенная дорожка, ведущая к нему, поможет содержать газон в порядке. Также преимуществами обустройства гаража в доме являются следующие моменты:
— Наиболее эффектное решение проблемы стоянки автомобиля, вследствие которого авто будет защищено от непогоды и угонщиков;
— Возможность проводить ремонтные работы с комфортом в любое время года;
— Возможность использования крыши гаража для обустройства террасы, оранжереи и т. п.;
— Внутренняя обстановка гаража может включать небольшую мастерскую, систему хранения, куда можно свободно перейти из теплого дома;
— Слияние гаража с домом экономит расходы на строительство, так как не нужно возводить второй фундамент с коробкой и кровлей, а помещение можно присоединить к единой системе отопления, водоснабжения и даже организовать здесь зону отдыха, небольшую кухню.
Помимо достоинств, расположения гаража в доме имеет и свои недостатки. В первую очередь, это риск проникновения неприятных запахов в жилое помещение. Чтобы этого избежать, рекомендуется провести в помещении гаража качественную систему вентиляции, а также обустроить небольшой коридор-тамбур, кладовую или котельную. Также нужно позаботиться о дополнительной шумоизоляции гаражного помещения.


Нюансы и важные моменты строительства одноэтажных домов с гаражом
Комфортная жизнь за городом невозможна без автомобиля, поэтому строительные компании проявляют изобретательность при создании проектов зданий с гаражом. Независимо от площади будущего дома и его планировки, наличие помещения для транспортного средства требует соблюдения определенных правил.
Гараж должен соответствовать всем требованиям и быть необходимого размера.
Обязательно нужно уделить внимание таким нюансам, как:
- безопасность;
- надежность и прочность фундамента;
- система вентиляции;
- оптимальные размеры помещений, в частности гаража;
- архитектурная форма здания;
- материал для строительства.
На заметку! Подъезд к дому с гаражом должен быть удобным, а размеры самого помещения ‒ соответствовать габаритам транспортного средства.
Ни один проект красивого одноэтажного дома с гаражом не обходится без ворот. Эта конструкция считается одним из основных элементов обустройства здания и влияет на его внешний облик. В большинстве случаев владельцы загородного жилья отдают предпочтение автоматизированным системам, которые отличаются высокой надежностью и удобством.
Проект одноэтажного дома с гаражом, рассчитанным на два автомобиля.
Минимальная ширина ворот составляет 2,5 м. Этот показатель можно немного превысить. Если предполагается строительство гаража для двух машин, помещение придется оборудовать воротами увеличенного размера. При этом высота конструкции остается стандартной, она равна 2,1 м.
Проекты комнат с панорамными окнами
Панорамные предметы монтируются практически в любых помещениях:
- кухне;
- спальне;
- ванной;
- гостиной;
- прихожей;
- кабинете;
- детской;
- бассейне;
- лоджии;
- балконе.
Важно, чтобы в комнате было мало крупных, высоких предметов (мебели, декора), способных перекрывать вид из окна, а беспорядок в помещении не эстетично смотрится при взгляде с улицы

При составлении проекта, предусматривающего большие окошки, учитывается ряд важных моментов:
- размеры оконных проемов;
- какого типа будет остекление – теплое либо холодное;
- материалы изготовления рам;
- разновидности стекол;
- способы открывания окон;
- количество самих камер;
- как будут обслуживаться конструкции.

Остекление выполняется по одной из двух технологий:
- холодное – монтаж окошек производят на алюминиевые профили безрамным методом. Обычно так оформляют веранды частных особняков, балконы и лоджии многоэтажек;
- теплое – в процессе установки используют деревянные либо пластиковые профили. Монтируются подобные элементы в городских, деревенских домах, офисных зданиях. Сама конструкция собирается из двух-трехкамерных стеклопакетов.
Панорамные окна выполняются на каркасе из винила, ПВХ, алюминия, дерева, армированного металла. Цены и качество тут весьма различны – наиболее дешевыми выходят пластиковые предметы, для которых существуют ограничения по размеру. Деревянные, выполняемые из клееного бруса, в разы дороже, металлические – самые прочные.
Спальня
Приватность в спальне очень важна, так как здесь человек спит, переодевается, делает некоторые другие вещи, которые не принято выставлять на всеобщее обозрение. Потому шторы типа «блэкаут» вешают здесь наиболее часто. Больше, чем одну стенку, стеклянной делать не желательно.
Самыми удобными будут ленточные варианты, максимально практичные в плане энергосбережения. Окна размещают на уровне самого пола, высоте 60-80 см либо потолком. Последний вариант не требует штор, используется без них в любое время. Угловые конструкции в спальном помещении делают обычно, если комната северная, северо-западная. Когда окна обращены на юг, здесь будет слишком жарко, плотные занавески придется использовать часто, уровень освещенности – максимален.

Кухня
В стандартной кухне имеются как минимум три зоны – рабочая, столовая, для хранения. Одно из мест размещают у окна, при этом сами панорамные конструкции сильно различаются:
- на полную высоту помещения – для больших комнат, квартир-студий, частных особняков со свободной планировкой. Места хранения у окна здесь не размещают;
- окошко начинается в 40-55 см от пола. Наиболее часто используется в эркерах, реже – в угловых кухнях, где «встречаются» две стеклянные стенки;
- в 70-85 см от уровня пола – однородными окнами оформлено все пространство. Под ними ставят обеденный либо рабочий стол, мягкие диваны;
- узкие окна – ленточные или располагаемые сразу над столешницей. Такие предметы иногда «переходят» на потолок, обеспечивая огромное количество дневного света.

Гостиная
Крупные окна в гостиной позволяют отдыхать с друзьями и близкими, как будто находясь на веранде, будучи при этом в тепле собственного особняка. Расстановка мебели здесь наиболее важна, но зависит она от площади конкретного помещения. Зонирование просторных комнат необходимо – если в комнате планируется спать, такое место размещается на максимальном удалении от окна. Непосредственно рядом со стеклянной «стеной» размещают невысокий диван, журнальный столик – крупных преград дневному свету быть не должно.
Иногда меблировку размещают П-образно – вдоль трех стен, но исключая оконный проем, полностью свободный от близко расположенных предметов. В очень маленьких залах кресла ставят у окна, при необходимости поворачивая их к окну или обратно. Здесь же допустимо разместить телеэкран, пианино, телескоп, прочие приятные, функциональные вещи.

Детская
В детских панорамные окна делают редко – это вопрос безопасности малышей, пачкаться стекла в такой комнате будут сильно. Если же все-таки конструкцию решено установить, потребуется установить защитное заграждение, высотой не менее 60 см с часто расположенными прутьями, чтобы малыш не смог сунуть туда голову. Сами же стекла ставят небьющиеся, отопление, безопасная система проветривания продумываются отдельно.

Проектирование
Стоит внимательно продумать расположение всех комнат. Необходимо грамотно определить размеры помещений, их назначение, расположение и связь друг с другом.

Основа проекта — создание фундамента. Чтобы не усложнять процесс проведением расчетов, можно воспользоваться стандартными чертежами. Это уменьшит затраты времени и денег.







При составлении проекта стоит учесть:
- расположение сторон света;
- наличие грунтовых вод;
- особенности почвы;
- наличие на территории других строений;
- удобство подключения к коммуникациям;
- форма здания;
- количество комнат.

Рационально проектировать кухню рядом с ванной. Это упростит монтаж водопровода и канализации.

Основы планирования
Проект дома буквой Г или L подойдет владельцам небольшого участка. В одноэтажном здании проектируется несколько зон: в одном крыле спальня и кабинет, в другом кухня, столовая, гостиная, игровая. При разработке чертежей следует придерживаться правил:
- крылья бывают одинаковыми или разными по длине;
- в зависимости от стилистики дизайнерского проекта угол г-образного здания может быть тупым, острым или прямым;
- во внутренний дворик делают один вход или два из каждого крыла;
- на более коротком крыле фронтон делают шире;
- на чертеже можно включить гараж, мансарду, террасу;
- гараж создается в виде крыла или его продолжения. Вход в него располагается одновременно с улицы и постройки.
При планировке г-образного дома образуется угол. Его внешняя сторона располагается на север. Внутри участка получается уютный дворик, который защищен от ветра благодаря стенам. В этом месте устанавливается фонтан, бассейн, детская площадка, элементы ландшафтного дизайна.
Не стоит строить многоэтажный коттедж такой формы. Чтобы увеличить площадь, пристраивается мансарда или застекленная терраса. На цокольном этаже оборудуют бильярдную, сауну, игровую или подсобное помещение. Но такой вариант не подойдет для неустойчивого грунта с подземными водами.
Одноэтажные дома: ожидаемые бонусы и некоторые недостатки
Еще недавно особенным спросом у населения пользовались двух- и даже трёхэтажные дома, как способ сэкономить драгоценные квадратные метры земельного надела. Особенно востребованными стали такие проекты после официального разрешения строить капитальные строения для круглогодичного проживания в дачных кооперативах. Искушение заполучить жилье большой площади и сэкономить на грядки сподвигало население на строительство мини-особняков, пока не начались судебные тяжбы из-за того, что дом затеняет половину соседского участка.

У одноэтажных домов и коттеджей обнаружились весомые преимущества при постройках на наделах значительного размера в частном секторе в городе или отведенных под строительство загородного особняка. У некоторых владельцев все еще осталось желание разместиться на двух разных уровнях, но оно с недавних пор в проектах воплощается в виде мансарды, а не полноценных двух этажей.
На интернет-порталах, где бесплатно размещаются для пользователей чертежи и фото, которые можно использовать в воплощении давней мечты о собственном жилье, а не квартире в человеческом муравейнике, все большим спросом пользуются постройки одноэтажные. Это вполне объяснимое явление, если вспомнить их многочисленные достоинства:
-
- При разработке проектов домов и коттеджей, человек, разумеется, учитывает не только свои многочисленные запросы, но и состояние финансов. Не все, кто строит загородный или частный дом, относятся к числу нефтяных или газовых магнатов, отсюда закономерное стремление сэкономить хоть немного на постройке. Дом с двумя этажами предполагает оборудование мощного фундамента, рассчитанного на значительные нагрузки в то время как в одноэтажном варианте можно сделать попроще и не особенно тратиться.
- Дом в один этаж – прекрасный способ избавиться от большинства ограничений, связанных с типами грунта. Там, где результаты геодезических изысканий препятствуют постройке, если речь идет о масштабном проекте, редко вводятся какие-то особенные барьеры, когда нет существенного давления на почву. Можно использовать облегченное основание и препятствий к постройке не будет.
- Еще одна возможность сэкономить – отсутствие необходимости усиления нижнего яруса, который должен выдержать верхний, не нужно думать о переходах и лестницах, которые тоже стоят немало.
- Есть возможность бесплатно найти чертежи и фото от любителей и профессионалов в самых прихотливых вариантах, воплощающих любые фантазии, внести в них минимальные изменения при необходимости и начинать постройку в облюбованном месте, используя практически весь ассортимент недорогих строительных материалов.
- Множество других весомых бонусов – проведение простых коммуникаций, соображения безопасности, если в семье есть маленькие дети, отопление в холодное время года, конечная себестоимость.

И это только некоторые причины, по которым стали особенно востребованными проекты одноэтажных домов и коттеджей.
Рассматривая фото построек, сделанных своими руками и с гордостью выложенными на интернет-порталах пользователями, можно воочию убедиться, что и одноэтажная постройка может выглядеть стильно и дорого. А глядя на предоставленные бесплатно чертежи и рекомендации, построить собственный дом без особенных сложностей и капитальных затрат.


















































