Виды качелей
Разнообразие данное конструкции можно разделить на несколько классификаций:
- По наличию осей подвижности.
- По назначению и возрасту.
- По типажу механизма.

Чтобы самостоятельно построить один из этих пунктов, требуется нарисовать или скачать в интернете чертежи садовых конструкций. Перед выбором подходящей качели убедитесь в качественно подготовленном месте для нее.

Во-первых, должно быть много площади, чтобы при раскачивании не биться о лишние элементы сада. Минимум 3 на 3 метра необходимо для традиционной и самой простой постройке.
Во-вторых, следует правильно выбирать материал, и всегда ухаживать за ним. Деревянные качели требуется обрабатывать лаком, противогрибковым и противопаразитарным средством. Железо же нуждается в постоянной покраске во избежание появления ржавчины, приводящей к поломке.

В-третьих, закупка материала также должна происходить с особым вниманием. Надежный поставщик предоставит письменную гарантию, а также, по вашей просьбе, покажет необходимые документы и сертификаты.


Строим на годы: детские уличные качели своими руками из металла
Для металлической конструкции тоже вполне подойдет А-образная схема. В этом случае можно обойтись даже без заглубления опор – достаточно добавить внизу перекладины, создавая прочную и жесткую треугольную призму.
Для фиксации на грунте будет достаточно, как показано на схеме, вогнать в 4…10 местах (в зависимости от типа грунта) анкерные болты или штыри.
Важно: углы конструкции необходимо усилить приваренными косынками из листового металла.
Конструкция собирается с помощью сварки из металлического профиля (круглой или квадратной трубы) диаметром примерно 1 дюйм.
Если есть желание разнообразить досуг не только детей, но и взрослых, можно сварную (сборную) конструкцию детских уличных качелей для дачи своими руками дополнить шведской стенкой с турником.
В данном варианте используется труба 1 дюйм и специальные фитинги с болтовой фиксацией. Подвес качелей – на металлизированном тросе или цепи с карабинами, нижняя часть лесенки усилена раскосами с опорами для ног.
В качестве усиливающих и одновременно декоративных элементов часто применяют кованые детали. Они привариваются к основному каркасу, создавая дополнительные связи и увеличивая жесткость конструкции. Уместным дополнением качелей станет небольшой навес из поликарбоната или аналогичного материала.
Само сидение также часто изготавливают из металла. Удобнее всего использовать круглую или квадратную трубу с деталями из материала с низкой теплопроводностью – дерева, пластика, в противном случае в жару или мороз сидеть на качелях будет крайне неприятно.
Крепить сидение на цепях к перекладине стоит через специальные проушины. Лучше, чтобы они могли вращаться вокруг оси или, как минимум, не ограничивали движение цепи при раскачивании качелей.
Более простой вариант – ввареный (ввинченный) в поперечину крюк, на который цепляют карабин с цепью.
Для жестких подвесов из трубы или другого вида профиля используют подшипники.
Важно: подшипники, особенно открытого типа, нуждаются в периодической смазке.
Деревянные качели на опорных стойках
Деревянные качели на опорных стойкахДеревянные качели на опорных стойкахДеревянные качели на опорных стойках
Для сборки деревянных качелей на стойках готовим следующее:
- крепкий канат;
- древесину;
- штакетник и фанеру для изготовления лавочки;
- крепежные элементы.
В качестве крепежа для таких качелей используем оцинкованные болты. От простых шурупов и гвоздей воздерживаемся.
Схема крепления анкерных крюков
Для дополнительной защиты материала от порчи и сохранения его естественного вида используем лессирующий антисептик. Предварительно покрываем им все деревянные элементы конструкции.
Готовые качели подвешиваются на прочную ветку либо же закрепляются на стойках с уложенной поверх них поперечной балкой. Для сборки опорной конструкции используйте деревянный брус.
Нижние концы деревянных стоек обрабатываем битумом. Для фиксации стоек достаточно вырыть пару ям глубиной порядка 1 м, установить в них стойки, засыпать 20-30 см высоты ямы смесью песка и щебня, а затем залить бетон.
При желании можете сделать отдельно бетонные столбы и прикрепить к ним деревянный брус анкерными болтами. Делайте, как вам удобнее. При использовании второго способа между металлом и древесиной обязательно прокладываем влагоизоляционный материал. Для придания раме большей устойчивости подпираем стойки раскосами.
Варианты крепления сиденья для качели
Сами качели изготавливаем в соответствии со следующей пошаговой инструкцией.
Схема сиденья для качели
Первый шаг. Делаем опорные дуги-клюшки. Для этого используем доски толщиной 22 мм (лучше всего из сосны) и фанеру толщиной 12 мм. В соответствии со схемой чертим шаблон и выпиливаем 6 клюшек.
Опорные дуги
Второй шаг. По заготовкам из фанеры обрисовываем очертания сердцевины. Слой в середине делаем из клееного щита. В наружных слоях крайних клюшек создаем вырезы для концов каната.
Обрисовываем дуги для середины
Третий шаг. Скрепляем части опоры с помощью водостойкого клея. Стягиваем опору струбцинами. Их убираем только после полного высыхания клея.
Склеиваем фанеру
Четвертый шаг. Обрабатываем кромки опор шлифмашинкой, придавая им округлую форму.
Шлифовка
Пятый шаг. Вырезаем из сосновой доски кругляши для держателей каната. Это проще всего сделать при помощи соответствующей насадки на дрель.
Кругляши для держателей каната
Шестой шаг. Обрабатываем опоры и готовые кругляши грунтовкой либо атмосферостойкой краской.
Грунтовка
Седьмой шаг. Через кругляши ввинчиваем в опоры металлические держатели каната, а после покрываем деревянные элементы акриловой краской.
Окрашивание
Восьмой шаг. Переходим к созданию сиденья для самодельных деревянных качелей. Прежде всего, выравниваем штакетник.
Выравнивание штакетника
Девятый шаг. Далее сверлим отверстия для шурупов в каждой планке. Чтобы отверстия были сделаны максимально аккуратно, надеваем на края штакетин уголок (можно сделать из фанеры) по размеру планок с предварительно сделанными отверстиями в нужных местах.
Сверловка по шаблону из фанеры
Десятый шаг. Привинчиваем штакетины к опорам. Для обеспечения ровного шага размещаем между планками дощечки.
Сверловка отверстий в планах
Одиннадцатый шаг. Фиксируем подлокотники к опорам. Их также делаем из штакетин. Вкручиваем металлические болты в торец планок. Укладываем между опорой и подлокотником деревянный кругляш.
Крепление планок шурупамиКрепление подлокотников
Двенадцатый шаг. Продеваем канат в отверстия держателей, зафиксированных в опоре качелей. Канат завязываем на морской узел, после этого наматываем на него проволоку, прочную нить либо шнур.
Канат завязан на узел
Тринадцатый шаг. Отрезаем свободный край каната с помощью ножа.
Четырнадцатый шаг. Продеваем канат через овальное отверстие в подлокотниках. Сам подлокотник опираем на колодки, установленные на стянутую болтами пару полуколец.
Пятнадцатый шаг. Обвиваем канат по коушу для тросов и связываем веревкой.
В завершение останется подвесить кольцо к альпийскому карабину, зафиксированному к перекладине опоры либо толстой ветке дерева. Ваши качели готовы!
Примерный расчет стоимости качели
Лучшее – детям
Качаться на подвесных качелях начинают не сразу. Малышам, только-только научившимся переставлять как следует свои нижние две, впору покататься на качелях-маятнике. Что, кстати, также развивает моторику и укрепляет опорно-двигательный аппарат. Родители, соорудившие своим отпрысками детские качели-маятник, скоро убеждаются: ссадин на коленках и локтях, разбитых носов, реву и обиды от того и другого заметно поубавилось. Хотя, конечно, все равно не без того
Но качели помогут детям выработать разумную осторожность и здравый смысл, не допуская серьезного травматизма
Как устроены качели-маятник, известно. Представленный на рис. вариант интересен тем, что металлического крепежа на него требуется аж 11 гвоздей:

Детские качели-маятник
Детали, отмеченные (!), выполняются из твердого мелкослойного лиственного дерева – дуба, бука, граба, ореха. Концы оси маятника можно не обтачивать до идеально круглого: достаточно обстругать более-менее ровно, чтобы встали в гнезда с небольшим натягом, и несколько раз покачать доску, приработаются. Если же волокна в оси и опорных стойках ориентированы взаимно перпендикулярно (что соблюсти элементарно, вырезав их из одной доски), то качели прослужат много лет, а трущиеся поверхности скоро станут зеркально-гладкими и прочными, как из стали на станке выточены.
Качели-маятник можно сделать переносными, чтобы, скажем, на зиму заносить на веранду. 2 способа для этого показаны там же, поз. а и б. По способу а концы стоек бетонируют в негодной шине; способ б очевиден и проще, но оба седока могут повалиться набок вместе с качелями. Кстати, из старых шин для качелей можно извлечь немало другой пользы; далее мы к ним еще вернемся.
Качели для детей постарше делают подвесными, как для взрослых (см. далее), с некоторыми особенностями:

Детские качели для школьников
- Несущую балку качелей из бруса делают с выносом, на который ведет лестница, см. рис. справа.
- Еще лучше, если места достаточно, поставить сбоку дополнительную опору пониже, чтобы в придачу получился и турник, см. рис. ниже. В таком случае весь спортивный уголок, кроме перекладины турника, предпочтительнее сделать из профильной трубы, тогда все сооружение получается прочнее, дешевле и проще технологически.
- Подвес качалки детям, уже умеющим раскачиваться, лучше всего подойдет веревочный схемы 2-2 (см. далее). Тогда можно не нем можно будет, не рискуя защемить, а то и сломать палец цепью, раскачаться, аж дух захватывает. А правильно выбранные материалы и конструкция подвеса не позволят «крутнуть солнце» и спикировать вниз из его верхней точки, или превратиться в выпущенный из пращи снаряд, не умея группироваться для приземления, как акробаты.

Детский спортивный уголок из профильной трубы с качелями
Качели для маленьких детей
Существуют еще качели для новорожденных и грудничков. Пользы от них немало, но – это медицинское оборудование. Делать такие качели самому настоятельно не рекомендуется, а выбирать покупные и пользоваться ими нужно только по назначению педиатра.
Для малышей примерно от полугода, глазенки которых смотрят уже осмысленно (это значит, что зрение сформировалось и видят они отчетливо), полезны будут детские качели для маленьких, см. рис. справа. Стоят они немало, но сделать подобные самому очень просто из труб, ПВХ или пропиленовых, и обрезка фанеры, см. видео:
Видео: детские качели для малышей
Не забудьте только заглушить концы труб пенопластом: в таком возрасте пальчик в мелкую дырочку пролазит, и сунуть его туда хочется. Качают ребенка в таких качелях, держа подвес руками; в квартире в качестве поперечины подойдет такая же пластиковая труба, вес невелик.
Фото детских качелей для дачи своими руками и особенности их изготовления
Даже если вы совершенно не дружите с рубанком и сварочным аппаратом, это вовсе не значит, что качели на дачном участке так и останутся для вас роскошью. Существует масса простейших конструкций, с изготовлением которых вы сможете справиться. Причем большая часть из них не требует закупки каких-то дорогостоящих материалов. Вы всегда можете вооружиться подручными средствами.
Простые детские качели для дачи, подвешенные на веревках к ветке дерева
Качели из подручных материалов: поддоны
Поддоны – очень популярный вид материала, из которого изготавливается мебель для дома и сада. Благодаря своей универсальности они могут быть использованы и для организации качелей на загородном участке. Для этого следует иметь под рукой один поддон, веревку и дерево, где будет подвешиваться конструкция.
Полезный совет! В качестве замены дереву можно установить крепкие опорные столбы.
Поддоны – превосходный материал для создания оригинальной садовой мебели
Даже изделие, созданное на основе одного поддона, может иметь несколько модификаций. Цельный элемент можно зафиксировать в подвешенном состоянии за четыре угла с помощью веревок. Этого достаточно, чтобы качели выполняли свою функцию. Чтобы создать уют, поверх поддона достаточно положить небольшой матрас и застелить его пледом или простыней. Несколько подушек сверху станут своеобразным решением проблемы отсутствия спинки.
Уютные детские качели из паллет с мягким матрасом и подушками
Конструкции подобного типа можно эксплуатировать не только для чтения книг на открытом воздухе, но и для элементарного отдыха от полуденного зноя в тени. Их можно использовать даже для сна.
Для создания своими руками детской качели с полноценной спинкой потребуется два поддона. Как и в случае с деревянными конструкциями из досок и бруса, здесь также следует обработать поверхность шкуркой, чтобы избавиться от заусенцев. Изделие нужно хорошо очистить и окрасить с помощью красителя, предназначенного для древесины и уличных условий эксплуатации. Достаточно воспользоваться и влагостойким лаком, который не испортит красоту дерева.
Подвесные качели для дачи, устроенные из поддонов
Другие виды детских качелей своими руками
Самым простым вариантом качелей считается сиденье в виде доски, подвешенное с помощью веревок. Чтобы не допустить быстрого перетирания веревки, по бокам доски можно прибить еще две детали. После этого выполняется 4 отверстия, через которые продеваются веревки. Для фиксации на концах завязываются крепкие и тугие узлы. Сама конструкция может крепиться как на дерево, так и на опорное основание П-образной формы.
Красивые подвесные качели станут украшением приусадебного участка
Качели, подвешиваемые на веревки, могут изготавливаться и другим способом. Вместо отверстий в доске формируются пазы: пара в торцовой части и пара по краям в угловой зоне. Сиденью (доске) можно придать форму полукруга или оставить его прямым. За счет силы натяжения веревка не будет выскакивать из пазов, несмотря на то, что они открыты.
Безопасные детские качели из текстиля и дерева можно создать своими руками
Полезный совет! Если у вас имеется непригодный скейтборд или доска для катания по снегу, ее можно использовать вместо сиденья, придав качелям оригинальный внешний вид.
Для создания качелей на дачном участке можно использовать большое количество различных материалов вплоть до автомобильных покрышек. Достаточно подвесить шину на ветку дерева с помощью веревки. Если вы заботитесь о природе, не стоит использовать цепь – она слишком сильно травмирует кору.
Подвесные качели из плетеного стула, украшенные яркими лентами
Некоторые умельцы придают качелям из шины затейливые резные формы. Для получения оригинального дизайна достаточно обзавестись острым режущим инструментом и готовыми схемами. Раскрой шины можно делать с помощью строительного ножа. Предварительно нанесите на ее поверхность разметку для надрезов, используя мел или темный маркер. Готовое изделие можно окрасить в яркий цвет или покрыть рисунками.
Качели из двух бревен небольшого размера, связанных между собой веревкой, очень популярны среди дачников. Главное, чтобы древесина была очищенной, выровненной и крепко связанной.
Схема создания качелей в виде лошадки из старой покрышки
Разновидности деревянных качелей
На своем участке можно установить различные конструкции:
- Детские мини-качели, для которых не нужно много места. Стульчик или сиденье со спинкой подвешивают на горизонтальную балку, мощную ветку дерева или любую прочную опору. Главное — минимизировать опасность получения травм ребенком при соскальзывании и падении.
- Качели «Гнездо», где в качестве сиденья используют металлические кольца, оплетенные шнуром или обтянутые тканью. Собственноручно изготовить такие конструкции можно из гимнастического обруча или профильной гнутой трубы.
- Качели-скамья для катания одновременного нескольких человек, достигающая длины 2-2,5 м. Материалом служат дерево, металл, пластик или их комбинации. Для защиты от дождя и солнца устраивают козырек из поликарбоната или непромокаемой тентовой ткани.
- Подвесное кресло-шар — оригинальная конструкция в виде сферы с местом для сидения внутри. В традиционном исполнении плетется из гибкого ротанга. В домашних условиях используют гнутые металлические трубки и прочный пластиковый шнур.

Проявив фантазию, можно сделать деревянные качели своими руками из чего угодно. У домашних умельцев в ход идут различные предметы, отслужившие свой век, — автомобильные покрышки, плетеные корзины, старые стулья, кресла и даже диваны.
Особенности самодельных качелей
Обустройство территории, правильный выбор и соответствующее оформление мест отдыха – одна из важных задач, стоящая перед владельцем придомового участка. Украшая свои владения клумбами, беседками, искусственными водоемами, не стоит пренебрегать таким предметом, как качели. Это один из немногих вариантов обстановки, с помощью которого можно дополнить ландшафт, получить удовольствие от комфортного и уютного пребывания на свежем воздухе.
Выбирая готовые покупные конструкции, не всегда можно найти и подобрать модели, удовлетворяющие всем запросам, подходящие по стилю оформления к конкретной обстановке. В таком случае лучшим вариантом станет изготовление своими руками, ведь самодельные качели имеют следующие особенности:
- Стоимость. Изготовленные своеручно экземпляры обойдутся на порядок дешевле покупных аналогов, а для работы можно использовать любой подручный материал.
- Оригинальность. Такая мебель, сделанная собственными силами, будет эксклюзивной, выгодно отличаться, станет предметом гордости.
- Качество. Каждый сам решает, насколько изделие будет добротным.
- Выбор модели. На этапе проектирования можно самостоятельно определить вид качелей, для кого они предназначены, будут ими пользоваться только дети или все члены семьи. Конструкция будет представлять собой подвешенное сиденье или целый диван, установленный под навесом, имеющий регулируемую спинку.
- Выбор материала. Изготовить качели можно из разных пород древесины, металла, резины, пластика, комбинировать сырье, дать вторую жизнь старым вещам.
- Опыт. При сооружении конструкций человек получает опыт, который впоследствии можно использовать для возведения других построек.

3 этап: Установка планок спинки и сидения
Теперь работаем с планками сидения. Их мы должны подготовить 8 штук. Две передние будут плотно огибать опоры подлокотников.
Шаг 1: Первую планку приложите заподлицо с внешней поверхностью опор подлокотников. На кромке планки отметьте позицию подлокотника карандашом. Также не забудьте отметить внутреннюю позицию бруска на планке. Планка будет выступать за брусок на 20 мм. Пометьте секцию, которую необходимо удалить ножовкой. Срезы отшлифуйте и обработайте антисептиком. Теперь планку можно прикрепить гвоздями (смотрите фото).
Шаг 2: Вторую планку помещаем за передней. Ее паз на передней грани к бруску равен 15 мм. Также прибиваем и все остальные планки сидения, оставляя между ними зазоры в 5 мм. Каждая планка должна выступать за край бруса на 17 мм. Последние планки подгоните к задним стойкам подлокотников.
Шаг 3: На верхней планке спинки отступите с обоих краев по 100 мм и отметьте прямыми перпендикулярными линиями. Используя рейсмус, отступите 70 мм и проведите линию от кромки до отмеченного перпендикуляра. С помощью стакана или банки начертите внутренний и внешний изгибы и пропилите их лобзиком. Прикрепите верхнюю планку к задним опорам гвоздями. Она должна выступать за верхнюю грань и торцы на 5 мм.
Шаг 4: Прибивайте все верхние планки по очереди. Третья доска будет огибать подлокотник, как и на сидении. Между планками также оставляйте зазор 5 мм.
Что необходимо учитывать?
Чтобы сделать качели для дачи, обязательно принимают во внимание предназначение конструкции — для взрослых или для детей. Разница обусловлена не только вопросом безопасности, но и вариацией возможностей.
Задействуют тросы, веревки, цепи и крепления. Преимуществом металла является надежность, а недостатком — подверженность коррозии и необходимость задействовать сварочный аппарат. Металлические качели с козырьком своими руками.









Сделать такую конструкцию, если есть чертежи садовых качелей и определенный опыт проведения сварки, не представляется сложным. Процесс состоит из двух этапов: подготовительные работы; сборка конструкции. Каждый имеет первостепенное значение.
Делаем опоры
В помещении
Перед тем как сделать качели-гнездо своими руками, нужно подготовить место, где они будут висеть. Если для их размещения выбрана садовая веранда или беседка, нужно быть уверенным, что потолок достаточно прочен. Следует учесть, что постоянное раскачивание постепенно ослабит несущие деревянные балки и стропила. Железобетон и кирпич прекрасно справляются с внешними воздействиями, но и у этих материалов есть свой предел стойкости. Надежность плиты перекрытия в квартире сомнений не вызывает. Она запросто выдержит вес в 100 кг, но для летнего домика больше подойдут детские качели.
Для крепления используются анкерные крюки. Если в доме есть потолочные деревянные балки, к которым можно привязать канат, лучше задействовать их.

Kampfer Качели Гнездо среднее
Стойки, расположенные на полу, нужно прикрутить шурупами, чтобы придать им устойчивость. Собираются они из деревянных реек или металлических трубок. Прямоугольный профиль применять не стоит — при ударе об угол можно получить травму. Легкие передвижные конструкции желательно снабдить снизу мягкими демпферами, чтобы они не портили напольное покрытие.
На улице
Уличные опоры должны обладать стойкостью к воздействию влаги, жары, холода и солнечных лучей. Дерево, даже после обработки лаком и антисептиком, по своим свойствам значительно уступает стальному каркасу. Оно тяжелее и выглядят массивнее. Его единственный плюс — декоративные качества. Обычно применяется брус сечением 10х10 см либо профилированная труба диаметром от 3 до 5 см.
Деревянные стропила устанавливают по бокам от сиденья и крепят между ними перекладину. Их делают в форме буквы «А». П-образные стропила массивны. Они менее устойчивы. Нижнюю часть лучше собрать из стали — она более долговечна и не боится воздействия влаги. Проще всего взять широкие уголки и присоединить их снизу к стойкам с помощью болтов. Длина стоек составляет 2-3 м.
Конструкция не требует создания надежного фундамента — опоры достаточно врыть в землю. При большой массе можно забетонировать стойки или прикрепить их на анкеры к вбитым в землю сваям.
Вопрос, как повесить качели-гнездо своими руками, на мастер-классах часто сводится к поиску дизайнерских решений
Устройству подходящего основания редко уделяется должное внимание. Например, если вешать гнездо на ветку, необходимо сначала выяснить, насколько она надежна
Если ветка сломается и упадет на голову, есть шанс получить серьезные травмы. В процессе эксплуатации основание нужно постоянно проверять.
Площадка должна бать рассчитана на то, что ребенок может упасть. Трава постепенно вытаптывается, поэтому дерн — не самый удачный вариант. Лучше засыпать ее песком или корой. Существуют специальные мягкие плитки для детских площадок.
Изготовление качели из металла для дачи

Чтобы сделать качели из металла своими руками для дачи, берут уголок, круглые трубы или тавры. Мастера предпочитают профильную трубу, как прочный и надежный материал.


Применяют:
- профиль квадратный или прямоугольный для стоек, распорок;
- овальный для гнутых элементов;
- плоский – для вспомогательных деталей.
По фиксации различают стационарные и переносные изделия. В первом случае устройства ставят на бетонированные стойки, во втором – опоры крепят к раме, заглубленной в грунт. Переносные железные качели удобны, если на зиму их убирают в дом.
Конструкцию выбирают в виде букв «А», «П», для переносных изделий применяют Л-образные опоры. Сиденья подвешивают на хомуты, анкерные болты или шариковые подшипники. Детали для навешивания проверяют на прочность, смазывают.
Необходимый инструмент и расходные материалы
Чтобы соорудить металлические уличные качели для дачи своими руками, пригодятся:
- сварочный аппарат;
- электроды 2,6 мм;
- профильные трубы шириной стенки 40-70 мм, толщиной 1-2 мм для сооружения стоек, перекладины;
- брус деревянный для лавочки 30х30 мм (сечение может быть больше или меньше);
- тросы, цепи;
- 6 рым-болтов с шайбами, гайками для фиксации;
- краска, лак.
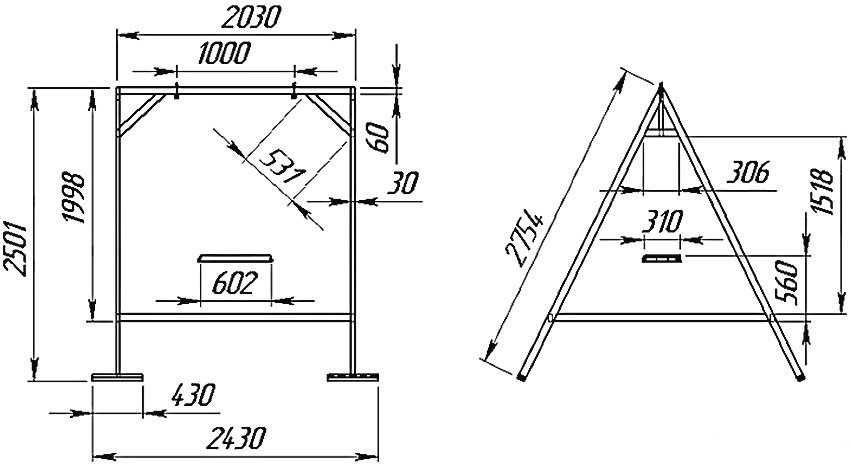
Чертежи качелей из металла
Продумывая, как сделать сварные качели, исходят из параметров ширины одного посадочного места – не менее 0,5 м на человека. Высота на выбор хозяина, а между опорами и скамейкой оставляют расстояние в 35 см для веревочного крепления, 25 см для цепного.
Простой чертеж выглядит так:

Пошаговая инструкция по сборке
Как сделать сварную конструкцию А-образной формы:
- Нарезают 4 трубы по 2,5 м для стоек. Перекладины делают по 2,1 м.
- Обрезают края трубы под углом в 30 градусов, сваривают попарно в форме равнобедренного треугольника.
- Откладывают от вершины 2 м, приваривают горизонтальную перемычку длиной в 1,038 м.
- К вершинам стоек, разведенных на 2 м, приваривают горизонтальную перекладину так, чтобы концы выступали с обеих сторон на 5 см.
- Нарезают брус для скамейки, ошкуривают, лакируют, сушат.
- Деревянный брус крепят к каркасу сиденья. Фиксация на болты с шагом от 2 см.
- Сиденье навешивают на перекладину. Крепят на рым-болты, предварительно просверлив в перекладине отверстия.

Чтобы поставить взрослые или детские качели для дачи своими руками, делают так:
- роют 4 ямы глубиной до 50 см;
- делают бетонную смесь из готового порошка или цемента, воды, песка (1:2:3);
- на дно ям насыпают песок слоем до 10 см;
- ставят опоры;
- пространство между опорами и грунтом засыпают камнями и заливают бетоном;
- дают бетону высохнуть минимум 3-4 дня.
После просушки раствора конструкцию тестируют, окрашивают.
Изготовление навеса для летней качели
Полог или навес защитит от солнца, дождя. Самый простой вариант – натянуть на конструкцию тканый материал в виде маркизы. Такие применяют, устанавливая диван качели для дачи. Рейки держат плотную ткань, не давая ей сместиться.
Второй вариант – лист поликарбоната с фиксацией на металлопрофиль. Форму определяют боковые части навеса – классическая в виде пирамиды или полукруглая. Для второго вариант профиль гнут трубогибом.
Для сооружения навеса поперечные планки профиля фиксируют к основным балкам сваркой или болтами. Затем на деревянную раму натягивают полотно, фиксируют лист поликарбоната (на прессшайбы, болты). В конструкции верху качелей делают отверстия, фиксируют навес.
Качели для дачи своими руками: фото и классификация изделий
Традиционными материалами для изготовления уличных качелей для дачи своими руками являются металл и древесина. В целях улучшения надежности и внешних характеристик можно совместить данные материалы, а также частично украсить металлическую конструкцию декоративной ковкой.

Яркие качели-кокон, подвешенные к ветке дерева
Полезный совет! Для изготовления сиденья могут быть использованы любые подручные материалы, которые могут остаться на участке после строительства дома или проведения ремонтных работ.
Для строительства можно использовать:
- брусья;
- пластик;
- прочный канат;
- металлические трубы;
- старые кресла или стулья, с которых необходимо предварительно удалить ножки
Комфортные качели подойдут для сна на свежем воздухе или чтения
Владельцы автомобилей могут пустить в ход старые автомобильные покрышки. Они отлично будут сочетаться с клумбами, изготовленными из аналогичного материала.
Классификация качелей для дачи своими руками
Существует большое количество оригинальных и удобных качелей, способных украсить ландшафт любого дачного участка.
Условно их можно разбить на три большие категории:
мобильные – изделия имеют облегченную переносную конструкцию, благодаря чему качели можно перемещать по участку в любое удобное место, например, в дом, на веранду, в беседку или под навес во время дождя;
Мобильный вариант качелей с основой из металла
семейные – изделия с массивной и увесистой конструкцией. По своему устройству они напоминают скамейки без ножек с большой и высокой спинкой. За счет больших габаритов на сиденье может уместиться вся семья. Чтобы эксплуатация подобных качелей была безопасной, их надежно закрепляют на раме П-образной формы. В качестве фиксаторов используются прочные тросы или толстые цепи. Если организовать над качелями крышу или тентовый навес, ими можно пользоваться даже под дождем;
Уютные качели, расположенные на открытой террасе
детские – особая категория изделий, как правило, имеющих форму лодочек или подвесных кресел. К конструкциям выдвигаются особые требования в отношении каркаса, который должен соответствовать всем нормам безопасности. Совсем маленькие дети могут пользоваться качелями только в присутствии взрослых и при применении специальных ремней. С их помощью малыш фиксируется на сидении и потому не сможет выпасть.
Детские качели с металлическим каркасом, покрашенные в яркие цвета
Разновидности и фото качелей на даче своими руками
Качели могут быть классифицированы и по другим признакам. Различают следующие виды изделий по типу конструкции:
гамачные – подвешиваются на перекладину из металла. В качестве заменителя перекладины может служить дерево с толстой и прямой нижней веткой. Во время использования такой конструкции у человека создается впечатление будто он парит над землей. Подобные качели пользуются большим спросом у тех, кто увлекается чтением книг;
Качели-гамак – отличный вариант для релаксации и любования природой
Обратите внимание! Гамачные изделия, при условии соблюдения технологии изготовления, способны выдерживать весовую нагрузку до 200 кг. одиночные – изделия с различными видами конструкций, не нуждающиеся в установке дополнительных перекладин
Эти качели характеризуются быстрой системой монтажа, при этом они могут устанавливаться в любом месте. Для изготовления применяются самые разные материалы;
одиночные – изделия с различными видами конструкций, не нуждающиеся в установке дополнительных перекладин. Эти качели характеризуются быстрой системой монтажа, при этом они могут устанавливаться в любом месте. Для изготовления применяются самые разные материалы;
Красивые подвесные качели в саду частного дома
подвесные – конструкции представляют собой сиденье, подвешиваемое на несколько веревок или цепей. Веревки крепятся по бокам. Благодаря применению различных материалов, которые позволяют сделать изделие прочным, комфортным и легким, качели подвесного типа могут иметь различную форму и размеры;
Уютные подвесные качели из ткани, созданные своими руками
шезлонги – изделия могут вместить семью, состоящую из двух взрослых и одного ребенка. Качели обладают особой конструкцией, которая предполагает фиксацию в единственной точке крепления, что позволяет устанавливать их в комнате. Материалом для изготовления служит специальный сплав металлов. Несмотря на кажущуюся воздушность, эти изделия очень прочны.
Большие семейные качели с металлическим каркасом
Чертежи и размеры
Составляя чертежи садовых качелей, надо показывать их габариты в трех плоскостях. Начинают с суммарной ширины (которая определяется по фасадной части конструкции). Вторая цифра показывает, какова глубина каркаса. Третье число означает высоту. Нежелательно использовать большие качели в уличных навесах или беседках.
Но в любом случае требуется ориентироваться на особенности конкретного ландшафта или помещения, чтобы схема была составлена правильно
Если предстоит поставить качели просто под деревьями, где есть свободное место, можно обращать внимание на одну ширину. При этом стоит учитывать, что сиденье на 400-500 мм меньше, чем расстояние между боковыми стойками
Планируя сделать подвесную скамейку для семейной пары с 1 ребенком, можно ограничиться шириной 1,6 м. А вот для троих взрослых потребуется уже от 180 до 200 см.


Точно такие же габариты стараются придать задним сиденьям автомобилей, так как они позволяют свободно рассаживаться всем без намека на стеснение. Если планируется пользоваться качелями в одиночку, хватит и сиденья шириной 1 м. Делать конструкцию крупнее — значит, уже тратить зря строительные материалы. В чертежах требуется отразить толщину круглых труб для изготовления стоек и иных деталей. Их диаметр может варьироваться от 3,8 до 6 см.
Допустимая толщина стенок колеблется от 0,1 до 0,15 см. Увеличивая эти показатели, можно нарастить прочность. Однако общая плата тоже существенно вырастает. В частном саду уместно монтировать качели из трубы сечением 3,8-4,5 см. При этом толщина трубки может ограничиться 1,2 мм. Более серьезные параметры нужны уже для качелей, вывешиваемых в общественных местах.


На чертеже А-образного каркаса указывают:
- фланцы;
- рым-гайки;
- простые гайки;
- болты;
- стягивающие раму элементы;
- перекладины;
- стойки опорных рам.

Строительство деревянных качелей для дачи своими руками: чертежи и подбор материалов
Размерная таблица для создания заготовок:
| Деталь в конструкции | Размеры поперечной части заготовки, см | Конечная длина, см | Необходимое количество заготовок, шт. |
| Каркасная часть конструкции | |||
| Распорка (верхняя) | 4,5х14 | 23 | 2 |
| Распорка (нижняя) | 4,5х14 | 96 | 2 |
| Ножка | 4,5х9 | 198,7 | 4 |
| Ригель | 4,5х14 | 210 | 1 |
| Детали для сиденья | |||
| Задняя стойка | 3,5х7 | 60 | 2 |
| Брусок (опорный) | 3,5х7 | 95,5 | 2 |
| Брусок (для сиденья) | 3,5х7 | 120 | 2 |
| Подлокотник | 3,5х7 | 60 | 2 |
| Планка спинки | 2,5х7 | 130 | 2 |
| Опора для подлокотника | 3,5х7 | 27,5 | 2 |
| Планка сиденья | 2,5х7 | 128,4 | 8 |
| Верхняя планка | 2,5х9 | 130 | 1 |
Кроме этого, для соединения между собой вышеуказанных заготовок в единую конструкцию, потребуется наличие крепежных элементов с различными параметрами.



















































