3 Строим каркас – какие материалы нужны?
Строительство хорошего начинается с покупки стройматериалов. Чтобы каркас был прочным и надежным, нужен хороший брус 100*100 мм – высушенный, без гнили и трещин. В любом случае, весь материал должен быть пропитан антисептиком и антипиреном – первый защищает от грибка, второй состав препятствует возгоранию. Если это не сделал производитель, то сделайте вы своими руками. Желательно, чтобы длина бруса соответствовала длинной стороне сарая – в этом случае не придется делать нижнюю обвязку из кусков, и помещение будет прочнее.
К слову, если брус какое-то время будет храниться на стройплощадке, обеспечьте надежную защиту от промокания
При этом важно обеспечить и хорошую вентиляцию – если накрыть материал плотной пленкой со всех сторон, влага из древесины и грунта послужит отличной базой для грибка. Потемневшую от сырости древесину придется срочно спасать специальным отбеливателем – он не только возвращает материалу прежний вид, но и уничтожает возбудителя
Брусья нижней обвязки укладывают на столбики, предварительно сделав своими руками L-образный пропил. Для закрепления используют и торчащие из столбиков прутья арматуры – в брусьях проделывают сверлом отверстия в нужной точке и набивают их на штыри. Благодаря пропилу, брусья с разных сторон надежно состыковываются друг с другом, и дополнительно закрепляются саморезами и металлическими уголками. Если ширина сарая превышает 2 метра, то по центру пола укладывают еще один брус, который концами стоит на столбиках и состыковывается благодаря L-образному пропилу.
На нижнюю обвязку укладываются лаги – доски 100*50 мм, на которых будет держаться пол. Лаги укладываются на ребро, желательно, чтобы они устанавливались на брусья обвязки, хотя некоторые строители сознательно своими руками делают их короче и крепят их с помощью уголков и саморезов, устанавливая между брусьями. Таким образом пол будет находиться немного ниже.
Далее устанавливаются угловые стойки – для удобства их закрепляют временными укосинами из обычных досок и реек, которые есть под руками
Стойки выравниваются по отвесу или уровню – очень важно, чтобы они стояли к брусьям нижней обвязки строго под углом 90°. Стойки можно также укрепить снизу металлическими уголками и саморезами, хотя профессионалы рекомендуют пользоваться строго деревянными штырями – нагелями
По правде говоря, саморезы и уголки ничуть не хуже, особенно в руках начинающих строителей и найти их можно в любом магазине. С их помощью можно даже откорректировать угол наклона бруса, закрепить его так, что он не пошевелится даже от сильного ветра. А с нагелем нужно уметь обращаться, да и не в каждом магазине найдешь готовые крепежи.
По такому же принципу устанавливаются и промежуточные стойки – регулируем угол, корректируем и закрепляем. Не жалейте временных укосин – они потом уберутся. Расстояние между стойками – около полутора метров. Для удобства дальнейшей работы на лаги можно разложить доски для чернового пола – крепить их не нужно, а передвигаться станет гораздо легче.
Возведение красивого сарая

постройку оригинального вида
Однако для возведения красивого сарая своими руками на участке потребуется больше времени. Кроме этого, возрастут и ваши денежные затраты на его сооружение. Нужно сразу приготовить не менее 20 000 р. Затраты времени на строительство хозяйственной постройки также возрастут.
Придётся выделить два дня на строительство сарая. Однако эти затраты не будут напрасны. При правильном выполнении работ вы сможете получить сооружение, которое будет служить в течение 20 лет.
Занимаясь возведением красивого сарая на даче, вы во время работ можете попробовать себя не только в качестве строителя, но и на время стать архитектором. Каким в результате будет сарай, во многом зависит от вашего желания, а также количества средств, которые вы готовы потратить на его строительство.
Этапы строительства

необходимо построить фундамент
Для его сооружения необходимо вкопать на глубину 1,5 метра асбестовые трубы. После этого они заливаются бетоном. Для его приготовления смешивают песок, щебень и цемент. Эти компоненты берутся в соотношении 3:4:2.
Потом необходимо добавить воду и довести бетонную смесь до консистенции сметаны. Далее, необходимо оставить фундамент на несколько дней, чтобы он схватился и набрал необходимую прочность.
- Подготовленные деревянные материалы, которые будут использоваться при возведении сарая, необходимо пропитать специальным антисептическим защитным средством. Это позволит избежать процессов гниения, и строение прослужит долго.
- Далее, можно переходить непосредственно к строительству хозяйственного сооружения. Начинают с сооружения деревянного каркаса. Нижнюю обвязку необходимо уложить на фундамент. Для её изготовления используются брусья.
- Когда это будет сделано, необходимо устроить лаги, на которые будет уложен пол. Его можно уложить сразу или заняться им на финальном этапе возведения сооружения.
- Затем необходимо к обвязке закрепить вертикальные стойки. После этого к ним фиксируется верхняя обвязка, которая также устраивается из брусьев. Достаточно просто узнать количество необходимых опорных стоек. Их установка выполняется по углам строения. Также они располагаются в месте, где будут находиться дверной и оконный проёмы.
- После этого можно переходить к сооружению крыши. Более простой задачей является устройство крыши односкатного типа. Однако, более привлекательный вид хозяйственное сооружение будет иметь с крышей двускатного типа.
- На следующем этапе необходимо обшить стены, используя подготовленные доски. Потом устанавливается дверь и окна. Затем можно переходить к обшиванию сарая вагонкой. Далее, можно переходить к внутренней отделке, устройству полок.
Выбор оптимальной планировки сарая по чертежам

Стандартный вариант – прямоугольная постройкаИсточник domicomfort.ru

Чтобы тепло лучше сохранялось, можно обустроить тамбурИсточник bankfs.ru
Сарай односкатный из бруса часто используется для душевой и туалета, как впрочем и для других целей. Прежде всего, потому что такая конструкция по сравнению с двускатной крышей стоит дешевле и строится проще. Преимуществом односкатной крыши является эффективная вентиляция.

Стропил для постройки односкатной крыши потребуется раза в 2 меньше, чем для двускатнойИсточник yurlkink.ru

Экономичный вариант санузла для дачного участкаИсточник domicomfort.ru
Гараж из пеноблоков для небольшой машины (мотоцикла, мопеда), предусмотрено небольшое подсобное помещение. Надежное строение хорошо защитит не только от осадков, но и от перепада температур, влажности и непрошеных гостей. Простой сарай из пеноблоков для хранения инвентаря и в кчестве мастерской также возможен.

Несмотря на легкость пеноблоков, для такого строения нужен фундаментИсточник plotnikov-pub.ru

Простой функциональный проектИсточник bankfs.ru

Еще один универсальный вариант: для стен можно использовать брус, кирпич, пеноблокиИсточник nemasterok.ru
Просторный сарай 6×3 м без перегородок. Благодаря простоте проекта и удобному для монтажа материалу (ДВП) постройка возводится за 1-2 дня.

Просторная постройка несложной конструкцииИсточник pinterest.ru

Монтаж обшивкиИсточник idn37.ru

Такую конструкцию несложно увеличитьИсточник pinterest.com
Сарай своими руками: пошаговая инструкция
Самым первым этапом строительства сарая считается подготовка места. Для этого:
- почва тщательно очищается от мусора;
- удаляется растительность;
- поверхность выравнивается.
Все строительные материалы, которые могут пострадать от влаги, укладываются под навесом. Если такой возможности нет, для них предусматривается укрытие. к
Создание фундамента
Легкие каркасные конструкции устанавливаются на столбчатом или свайном фундаменте. Для сарая из блоков потребуется создание более прочного основания. Выбор фундамента также зависит от особенностей почвы.
Использование столбчатого фундамента не рекомендовано на пучинистом грунте. В процессе подвижек опоры выдавливаются, что приводит к перекосу. На слабых грунтах, торфяникам стоит отдавать предпочтение сваям.

Разметка
Для проведения разметки потребуется шнур, рулетка, колья. Оперативно сделать правильную разметку можно, используя следующие методы:
- Используя теодолит — при помощи шнура, кольев, определяется расположение самой длинной стены сарая, близлежащих углов. При помощи рулетки, измерительного прибора отмечают местоположение остальных углов, натягивают шнур.
- Египетский треугольник — на натянутом шнуре отмечают точку, расположенную на 4 метра от угла. Перпендикулярно откладывают точку на расстоянии 3 метра. Между концами отрезков (точки 2 и 3) должно быть ровно 5 метров. Дальнейшая разметка осуществляется от прямого угла, правильность построения проверяется по теореме Пифагора.
Более точно зафиксировать геометрию сарая позволит обноска, созданная из стоек и поперечных реек. Шнур закрепляется на набитых гвоздях. Перед началом земляных работ его можно снять.
Особенности различных типов оснований
Для строительства сарая используются следующие виды фундамента:
- Ленточный — для его обустройства потребуется траншея глубиной около 50 см, обустройство опалубки. Для обеспечения прочности основания осуществляется армирование конструкции проволокой или арматурой. Продолжать работу можно через неделю после заливки бетона. Также можно сделать ленточный фундамент из блоков.
- Столбчатый — представляет собой отдельно стоящие опоры, установленные под углами коробки, по периметру, под перегородками. Для их монтажа также выкапываются ямки глубиной 40 см. Чтобы опоры не сдвигались в процессе эксплуатации здания, дно ямки выстилается песком, а сама опора заливается цементом.
- Свайный — требует использования специальных конструкций для вкручивания опор, отлично подходит для подвижных грунтов. После монтажа опор их верх срезается по уровню, а полость заливается цементным раствором.

Сарай без фундамента
Временное сооружение может быть возведено без обустройства фундамента. Если площадь строения не превышает 20 квадратных метров, а высота 2,5 метров, его можно установить непосредственно на землю.
Принимая подобное решение, учтите, что на глинистом грунте во время таяния снега, сезонных дождей большое количество влаги остается на поверхности почвы, что будет способствовать разрушению древесины. На песчаной почве сарай без фундамента простоит несколько сезонов, поскольку влажность быстро поглощается почвой. Прядок возведения строения будет следующим:
- Подготовка площадки, включающая выравнивание почвы, уплотнение, обустройство песчано-щебневой подушки.
- Заглубление угловых стоек на 60-70 см.
- Возведение каркаса из бруса 50х100 мм.
- Обшивка доской или другими отделочными материалами.
Для крыши рекомендуется использовать металлический профлист. Он красиво смотрится, имеет низкий вес, что исключает создание высокой нагрузки на стены конструкции или почву.

Такой сарай подойдет для сезонного использования, хранения инвентаря, дров.
Возведение каркаса
Каркас состоит из стоек, верхней, нижней обвязки, наклонных укосин, перемычек. Для его создания может использоваться брус с сечением 100х100 мм или доска размером 150х150 мм. В качестве крепежа можно использовать скобы, накладки, болты, гвозди, саморезы. Порядок проведения работ следующий:
- Брус нижней обвязки укладывается на слой гидроизоляции, закрепляется путем шпилек, болтов, анкеров.
- Монтируются лаги пола.
- От угла устанавливаются стойки, сверху скрепляются при помощи обвязки.
- Каркас укрепляется укосинами, прикрепленными к верхнему и нижнему брусу, проемы усиливаются досками.
Если в качестве отделки применяется ОСП, фанера, укосины можно не использовать.

Обустройство кровли
Крыша может быть односкатной, двускатной, угол ее наклона зависит от ветровой нагрузки в регионе
При возведении важно учитывать шаг, рекомендованный производителем кровельного материала.
1 Варианты хозблока – подбираем для своих потребностей
Возвести хозблок своими руками после приобретения участка – следующее задание для его владельца. Почему собственными силами, ведь можно купить бытовку или заказать строительство? Причин, почему многие предпочитают строить сами, несколько. Во-первых, финансовый вопрос: после покупки участка не у каждого найдутся деньги на приобретение хозблока или оплату строительства подрядчиками.
Во-вторых, многие имеющиеся в продаже бытовки часто вызывают недовольство купивших их из-за слишком короткого срока службы. И в-третьих, если есть опыт строительства, остатки материала, можно самому построить хозблок не стандартного вида, а исходя из своих потребностей. Хозяйственно построенная бытовка прослужит долго, а опыт, приобретенный при ее строительстве, пригодится в дальнейшем.

Надежно построенный хозблок сможет послужить для различных целей
Купив несколько соток, дачники стремятся сразу построить надежный хозблок для различных целей:
- как жилье, пока не построится дом, чтобы в дальнейшем переделать для других нужд;
- хозяйственная постройка для инвентаря и другого имущества;
- как раздевалка, кладовка, санузел, летняя кухня;
- в качестве сараев для кролей, птицы, скота.
Хозблок – универсальное помещение, каждый может приспособить его под свои нужды. Если на дачном участке хозяева проводят много времени, работая на земле, то подумают о комнате отдыха, о кровати в ней, чтобы переночевать. Небольшое компактное сооружение может выглядеть как простой сарай, так и домик из сказки. Все зависит от потребностей, возможностей, приоритетов хозяина.
Какой выбрать материал для кровли хозяйственной бытовки
Для односкатной крыши сарая не потребуется много материала. Именно поэтому владельцы могут не ограничиваться только бюджетной кровлей. К подходящим вариантам отделки крыши хозблока относятся:
Профнастил, широко применяется в монтаже кровель и облицовке фасадов, как бытовых (жилые дома, дачные домики, гаражи, беседки и т.д.), так и промышленных зданий (ангары, склады, цеха, торговые павильоны).
Металлочерепица, хороший и довольно недорогой вариант, позволяющий получить красивое и практичное строение. Долгий срок службы — один из главных плюсов такого материала.
Битумная черепица, дорогой стройматериал, обладающий выделяющимся дизайном, идеально подойдет для кровли сарая
Он поможет не только защитить его от осадков на долгие годы, но и исключит возникновение сильного шума во время дождя (очень важно для птичников и свинарников). Правда, под битумную черепицу обязательно потребуется монтаж фанеры или ОСП плит.
Шифер, позволит быстро и просто провести кровельные работы, относится к самым дешевым кровельным материалам. Правда, он недолговечен и, кроме того, не сможет дополнить красивый экстерьер строения.
Строим сарай для дачи своими руками
Оптимальный вариант, сочетающий долговечность и привлекательность, который по силам сделать своими руками, − это каркасный сарай. Рассмотрим пошаговую инструкцию, как самостоятельно построить деревянный хозблок на даче.
Закладка фундамента
На выбранном месте проводим разметку и очищаем место. Каркасный сарай можно установить на сплошной плитный или ленточный фундамент, но будет вполне достаточно столбчатого или свайно-винтового. Для этого по углам участка, в местах пересечения внутренних стен (или через 1,5 м) устанавливаем асбестовые трубы и заливаем их щебеночно-бетонной смесью (вариант – выкладываем кирпичные столбики, углубленные в почву на 70 см). После этого надо дать фундаменту пару недель устояться.
Закладка фундамента
Чтобы фундамент прослужил долго, столбики (асбестовые трубы) перед засыпкой необходимо обработать специальной мастикой, чтобы улучшить их гидроизоляцию.
Монтаж каркаса
Перед установкой каркаса деревянный брус необходимо обработать антисептиком и особой защитной пропиткой. Основание из бруса укладываем уже на устоявшийся фундамент, при этом между столбиками и брусом необходима прослойка из рубероида (толи). Пол можно постелить и сразу, и при проведении отделочных работ – такой вариант предпочтительнее, потому что проще будет устанавливать вертикальные стойки.
К нижней обвязке закрепляем вертикальные стойки – их количество и расположение определяем исходя из количества углов и мест установки дверных и оконных проемов. Перед окончательным закреплением стоек необходимо проверить, чтобы они располагались строго вертикально.
Монтаж стоек
После фиксации вертикальных стоек на них крепим верхнюю обвязку (верхнюю часть каркаса), при этом на брусьях необходимо предварительно приготовить пропилы по бокам и посередине. Все соединения проводим при помощи стальных уголков и саморезов.
Обустройство крыши
Для обустройства односкатной крыши необходимо предусмотреть, чтобы вертикальные стойки с одной стороны были выше – это придаст крыше необходимый уклон и обеспечит хорошее водо- и снегоотведение. Для стропил используем доску толщиной 40 мм, при этом длина стропил должна быть на 50-60 см больше, чем ширина каркаса. Размещение стропил – приблизительно на расстоянии 0,5 м друг от друга.
В точках, где стропила будут опираться на брус, для повышения прочности установки, делаем вырубки. После укладки стропил на подстропильный каркас, фиксируем их саморезами.
Сборка крыши сарая
Для обшивки стен и крыши сарая можно использовать доску размером 25х150 мм. На дощатую крышу укладываем гидроизоляцию – толь (рубероид). Впрочем, чтобы придать сараю более презентабельный и привлекательный вид, как финишное кровельное покрытие можно использовать профнастил или битумную черепицу. Размещая доски впритык друг к другу, сначала обшиваем фронтальную сторону сарая, а затем – боковые и заднюю части.
Обшив стены сарая досками, их наружную сторону необходимо дополнительно отшлифовать электрорубанком. Это не только добавит привлекательности конструкции, но и позволит дождевой воде, не задерживаясь на стенах, легко и быстро скатываться вниз по гладкой доске.
Что учитывать при постройке сараев для птиц и животных
Главным требованием при постройке сарая для скотины является правильная организация грамотной вентиляции (по необходимости и обогрева), соблюдение требований по размерам сооружения. К примеру, для одной курицы нормальным считается размер курятника в 1 кв. метр, для уток и гусей — по 2 кв. м на каждую птицу. Дополнительно к такому сараю можно пристроить вольер. В сарае, где будут содержаться коровы, свиньи, козы или лошади, применяются другие нормативы. На одну корову должен выделяться загон с размером 6 кв. м, на одну свинью — 5 кв. м. Для строительства используется дерево, поскольку животные будут грызть перекладины загонов. Обязательным условием является наличие окон, которые обеспечат достаточность естественного освещения и вентилирование помещения. Устройство пола производится из бетона и досок с организацией специальных желобов. Именно с их помощью будет осуществляться чистка отдельных загонов.

Пошаговая инструкция изготовления сарая
Построить сарай можно не только из деревянных досок. Для такой цели подойдут также деревянные поддоны и обрезки. Главное, подготовить их к строительным работам: убрать все гвозди, выровнять, обработать рубанком.
Инструкция по возведению сарая без фундамента:
-
Производят очистку территории под будущий сарай. С площадки убирают весь мусор, грязь, закапываются ямы, выравниваются холмы и бугры.
- Делают разметку местности, определяют, как будет расположен сарай.
-
По углам будущего строения закапывают 4 вертикальных бруска. Каждый из них должен быть углублён в землю на 20 сантиметров (не меньше).
- Чтобы бруски прочно стояли на своём месте, их заливают цементным раствором и оставляют подсыхать минимум на 24 часа.
- Участок засыпают щебнем, чтобы уплотнить грунт.
-
На площадку высыпают песок и разравнивают его.
-
Начинается возведение каркаса: к вертикальным брускам прибивают горизонтальные брусья. Стартуют от самого пола, заканчивают потолком. Расстояние между параллельными горизонтальными соединениями — 50 сантиметров. Точно такую же «решётку» делают на полу и потолке. Вертикальные брусья с горизонтальными скрепляют гвоздями или саморезами.
- На одной из коротких стен оставляют место для двери.
- На любой стене предусматривают место для окна, чтобы впоследствии вмонтировать туда раму со стеклом.
-
Начинается внутренняя обшивка досками, обрезками или поддонами. На каркасе их закрепляют гвоздями. Между соседними элементами не должно оставаться слишком больших щелей. На этом этапе оббить досками нужно все поверхности, кроме пола.
-
Когда внутренняя отделка завершена, по стенам проходятся рубанком, чтобы убрать зацепы и занозы опасные для скота.
-
Теперь происходит укладка утеплителя. Если выбран пенополиуретан, который реализуют в виде квадратов со сторонами в 50 сантиметров, то к дереву его крепят монтажным клеем. Выбирайте тот, что подходит для взаимодействия с деревом. Информация об этом должна быть указана на упаковке изделия. Покрывают все поверхности, кроме пола.
- Утеплитель покрывают гидроизоляцией. Если используются маты или мембраны, их крепят к утеплителю монтажным клеем. С самоклеящейся гидроизоляции удаляют защитный слой и прикладывают липким покрытием к утеплителю. Так закрывают стены и потолок. Также гидроизоляцию можно крепить степлером.
-
Теперь приступают к монтажу пола. Для этого на деревянные доски укладывают слой гидроизоляции. К нему крепят утеплитель (желательно в 2 слоя, даже если это пенополиуретан, чтобы внутри было максимально комфортно). Сверху утеплитель вновь гидроизолируют и закрывают деревянными досками. Дополнительный слой гидроизоляции необходим, чтобы продукты жизнедеятельности животных не просачивались к утеплителю.
-
Производят установку окна и дверей. Работа осуществляется в соответствии с прилагаемой инструкцией по установке.
-
Далее, доски крепят снаружи конструкции.
-
Конечный этап — укладка профнастила на крышу. Делают это внахлёст, чтобы вода не затекала под материал. Можно под профнастил уложить дополнительный слой гидроизолирующего покрытия. Лишним не будет.
- От разводки на улице тянут провода. Их закрепляют на стенах и потолке, чтобы сделать освещение. Внутри на одной из стен устанавливают выключатель и розетку. В розетку можно будет включить отопительный прибор в зимнее время, если в сарае станет очень холодно.
- Из ОСБ-плит делают перегородки и устанавливают в необходимых местах. Плиты распиливают пилой и прикрепляют к стенам и полу гвоздями.
Видео: строим сарай из деревянных досок без фундамента своими руками
Построить сарай из деревянных досок без фундамента достаточно просто. Главное, чётко следовать инструкции, ответственно относиться к каждому этапу работы. Грамотное утепление — залог того, что животным внутри будет уютно и комфортно, а хозяину не придётся волноваться за них.
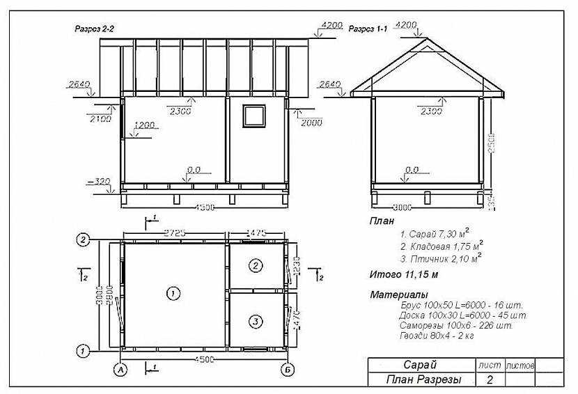
5 Простой и дешевый вариант – каркасный сарай
Когда столбчатый фундамент готов, начинаем возведение деревянного каркаса сарая.

Возведение каркасного сарая состоит из такой последовательности. Сначала делаем нижнюю обвязку из бруса сечением 150х150 мм. Брус между собой соединяем с помощью выпиленных на концах пазов в полдерева, фиксируя их шурупами по дереву. В изготовленной раме делаем отверстия для арматуры или анкеров, устанавливаем ее на фундамент. Столбы перед установкой рамы покрываем 1-2 слоями рубероида, чтобы изолировать от влаги. Раму перед установкой обрабатываем антисептическими средствами.
Для возведения каркаса берем брус сечением 100х100 мм и 100х150 мм. Чтобы было проще монтировать крышу, устанавливаем каркасный брус разной длины. С лицевой стороны длину бруса делаем 3 м, с обратной стороны – 2,4 м. В этом случае у нас будет односкатная крыша с наклоном для стока дождевой воды. Для сарая размером 6х3 м понадобится 6 вертикальных стоек. С помощью дрели делаем отверстия в углах рамы и монтируем нагели, на которые будут крепиться вертикальные стойки. Просверлив соответствующие отверстия в брусьях, надеваем их на нагели. Дополнительно фиксируем стойки с помощью металлических уголков и реек.
Далее делаем верхнюю обвязку. Прибиваем брус к верхним краям угловых стоек, отступив от будущей крыши на 10 см. Затем делим расстояние между нижней и верхней обвязкой пополам и прибиваем брус, делая среднюю обвязку. Для пола берем доску толщиной 40 мм, укладываем ее на нижнюю обвязку и прибиваем к брускам. Пол готов. Монтаж пола можно сделать на завершающем этапе.
Далее монтируем торцевые стены с учетом окон и лицевую, в которой будет вмонтирована дверь. Отступив от угловой стойки 1 м, крепим брусок с помощью металлических уголков и саморезов. Затем устанавливаем остальные брусья на расстоянии 60 см друг от друга, также закрепляя их с помощью уголков. Для жесткости конструкции устанавливаем подкосы сечением 100х100 мм, спилив их на торцах под углом 45 градусов и прикрепляя их к раме и столбам с помощью болтов. В местах будущих окон устанавливаем ригели на высоте 1 м от нижней обвязки и 1 м друг от друга.
Когда готов каркас, обшиваем его досками, предварительно выровняв края, чтобы не было щелей. Опытные мастера, чтобы избежать образования щелей, крепят доски «елочкой»: вставляют между первой и третьей доской вторую так, чтобы один ее край был под первой доской, а второй накладывался сверху третьей. Стропила для крыши крепим к верхней обвязке на одинаковом расстоянии друг от друга для равномерного распределения нагрузки. Достаточно прикрепить 3-4 бруска. Чтобы крыша имела свес, брус должен выступать спереди и сзади на 30-50 см.
Затем стропила обшиваем досками или монтируем обрешетку в зависимости от выбранного кровельного материала. Затем стелим на доски рубероид, фиксируя его брусками, или монтируем на обрешетку другой материал, предварительно уложив слой гидроизоляции. В качестве материала для кровли можно использовать профнастил или шифер. Обязательно делаем сток для воды. На завершающем этапе устанавливаем окна и двери. Всю конструкцию обрабатываем антисептическими средствами, чтобы защитить дерево от преждевременного гниения. Стены можно обшить отделочным материалом: вагонкой или сайдингом. В зависимости от назначения в сарае делаем полочки, стеллажи для хозяйственных нужд. Деревянный сарай прослужит около 10 лет.
Сараи для животных: особенности конструкций и требования к ним
Сараи для животных относятся к отдельной категории хозблоков, к которым предъявляются особые требования. Строение для домашней живности должно хорошо проветриваться. Это в первую очередь связано с большим количеством помета животных, находящегося внутри помещения. Он химически активен, выделяет аммиак. Консистенция помета и скорость его высыхания различны для разных видов животных. Сарай можно дополнительно оборудовать местом для складирования помета и навоза, которые являются ценным удобрением.
Сарай для животных должен хорошо проветриваться, быть экологичным и утепленным
Месторасположение сарая для живности на участке строго регламентировано нормативной документацией. Конструкция должна выдерживать значительные нагрузки и механические воздействия. Особенно это относится к коровникам. Также следует учитывать то, что некоторые виды животных любят грызть древесину. Поэтому не следует возводить сарай из дерева, дополнительно пропитанного бактерицидными и водоотталкивающими составами, которые могут стать губительными для некоторых видов животных.
Для кур строение должно быть выполнено из химически стойкого материала и оборудовано хорошей вентиляцией. Для свиней подойдет сборный деревянный сарай для дачи с усиленным каркасом. Для коз сарай из дерева нежелателен. Коровник должен быть теплым и надежным. Его можно выполнить на ленточном фундаменте из блочного материала с последующим утеплением.
Сарай на даче является незаменимым многофункциональным сооружением, которое можно возвести из любого строительного материала. Технология монтажа напрямую зависит от предназначения строения, его размеров и финансовых возможностей хозяев
Чтобы построить сарай на даче, цена работы которого будет зависеть от варианта здания, важно использовать качественный материал и соблюдать алгоритм действий при возведении сооружения выбранного типа. При хорошей финансовой возможности можно приобрести готовый мобильный сарай для дачи под ключ в виде контейнера или набора конструктивных частей для самостоятельной сборки
Деревянный каркасный сарай своими руками: пошагово с фото
Был построен каркасный сарай размером 6*3 метра. Крыша односкатная, крыта ондулином. Высота передней стены 3 метра, задней — 2,4 м. Эксплуатация показала, что при таком перепаде высот снега много не скапливается (Лен. область).
В качестве фундамента под сарай использованы стандартные блоки ФБС 600*300*200. Они уложены на песчано-гравийную подсыпку толщиной 25 см. Поверх блоков уложена отсечная гидроизоляция — слой рубероида, на битумную мастику. Сверху еще приклеен на ту же мастику слой «гидротекса». Такой пирог сделан потому что уровень грунтовых вод высокий, необходимо было гарантированно защитить постройку от сырости.

На гидроизоляцию укладывался брус сечением 150*150 мм (все пиломатериалы обработаны). Соединялся в полдерева, бился гвоздями — 100*4 мм. Для тех, кто незнаком с плотницким делом, можно соединить брусья встык, на места соединения прибить изнутри усиленные уголки, снаружи — монтажную пластину.
В данном варианте каркас к блокам ничем не крепился. В регионах с повышенными ветровыми нагрузками это неоправданно. Крепить можно при помощи шпилек: под них насквозь, через брус, в блок, сверлится отверстие такого же диаметра, (12-14 мм). В него загоняется шпилька, болт потом подтягивается ключом. Чтобы шляпка спряталась, под нее можно рассверлить отверстие.
Следующий шаг — крепление лаг пола. Установлены на ребро доски 150*60 мм. Крепятся к обвязке специальными скобами соответствующего размера. Крепились на гвозди 100*4 мм.

Лаги выравнивались по верхнему краю обвязочного бруса. Все должно быть ровно, иначе пол будет стелить тяжело. Возможно, придется ровнять рубанком или переделывать.
Каркас собирался по технологии «платформа»: сначала настелили пол, а на него монтировали стены. Каркас стены или ее часть собираются на полу. В некоторых случаях сразу обшиваются с наружной стороны, если выбран для обшивки плитный материал. И уже в таком виде (с обшивкой или без) поднимаются, выставляются вертикально и закрепляются.
Есть вторая технология «баллун». По ней каркас монтируется постепенно: на обвязку или даже сразу на блоки монтируются угловые стойки каркаса. Они выставляются в уровень во всех плоскостях. Между ними натягивают канат, по которому затем выставляют остальные стойки. Их также прибивают по одной, скрепляя между собой укосами и временными поперечинами.
В данном случае была выбрана технология «платформа» и на лаги настелили ОСП 18 мм толщины. Вообще, пол можно сделать из досок, фанеры (влагостойкой), ОСП и т.д. Доска потребуется 20, фанера — 13-15 мм, но нужна влагостойкая (ОСБ влагостойкая по умолчанию).

Далее началась сборка стен. Полностью сбивается каркас: нижняя обвязка, стойки, верхняя обвязка. В таком виде устанавливается ровно по краю бруса обвязки, выставляется, укрепляется страховочными распорками, упорами, укосами. Прибивается насквозь через настил пола к брусу обвязки. Гвозди брали 200*4 мм.

Для сборки каркаса использованы доски 100*50 мм, расстояние между стойками 600 мм, стропила установлены с таким же шагом. Стропильная система собиралась из 150*40 мм.
Оконные и дверные проемы усилены — прибиты по две доски, которые между собой сбиты гвоздями в шахматном порядке через 20 см. Нагрузка тут больше, потому требуется усиление. В одном из торцов предусмотрены ворота — для загрузки/выгрузки крупногабаритных вещей. Потому в этой стене (на фото видно) только угловые стойки и усиленные — для крепления створок.

Так как крыша односкатная, стропильная система простая: укладываются на ребро доски, которые выбраны под стропила. Их длина больше, так как необходим свес кровли. Он обычно 30-50 см с каждой стороны. В данном варианте при ширине сарая 3 метра, длина стропильных ног (с учетом уклона) составила 3840 мм.
Прибивались наискось гвоздями — по два с каждой стороны. Можно усилить установкой уголков: так выдержит даже значительные ветровые и снеговые нагрузки.

Далее — на крыше смонтирована обрешетка (100*25 мм). Шаг ее установки — по рекомендациям производителя «ондулина» — 40 см. И настелен кровельный материал (гвозди покупались вместе с покрытием).
Стены снаружи зашили ОСП 9,5 мм толщиной.

Установили двери, сделаны небольшие ступеньки.

Последними штрихами устанавливалась ветровая доска. Затем сарай был обшит вагонкой и покрашен краской в тон остальным постройкам на участке. Сарай своими руками на готовом фундаменте построен за два выходных дня. Обшивка вагонкой и покраска были значительно позже -почти через месяц.

Непривлекательный фундамент зашит нарезанным по размерам асбестовым листом. Красивый получился сарай.


















































